Vuokrataan toimistotilat - Espoo
Swing House, Miestentie 7, Keilaniemi, 02150 Espoo #10834564
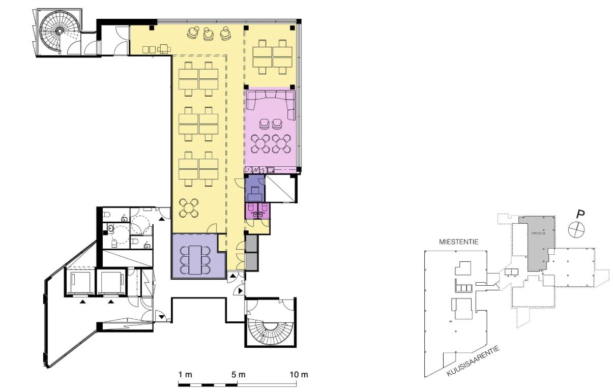
Moderni 229 m² toimisto innovaatioiden keskellä, start-up-osaajien ja kansainvälisen bisneksen solmukohdassa, Keilaniemessä
Swing House on hyvinvointia tukeva viiden tähden työympäristö Espoon Keilaniemessä ensiluokkaisilla kulkuyhteyksillä.
Vetovoimaisella paikalla Espoon Keilaniemessä sijaitseva Swing House tarjoaa yrityksille ensiluokkaisen, työhyvinvointia tukevan työympäristön. Swing House on kahden toimistorakennuksen ja hotellin muodostama kokonaisuus, jonka humaanit ja yhteisöllisyyttä tukevat tilaratkaisut tarjoavat ihanteelliset puitteet nykyaikaiseen työskentelyyn.
Swing House panostaa energiatehokkuuteen, ja sen energialuokitus on C. Kampus on kahden toimistorakennuksen ja hotellin muodostama kokonaisuus, jossa on sisäyhteys hotelliin viihtyisän loungen kautta.
Talon sydän on vihreä ja vastuullinen lounasravintola, joka valmistaa käsityönä kotimaista lähiruokaa vastuullisista raaka-aineista. Hyvinvointia tukevat lämmin pyöräparkki omalla rampilla pyörätieltä, huippuluokan suihku- ja pukeutumistilat, kuntosali sekä liikunta- ja hyvinvointitilat. Lisäksi tilassa on stressiä vähentävä ääniympäristö, vuorokausivalaistus ja upea seitsemänkerroksinen viherseinä, jossa kasvaa tuoreita yrttejä. Aulan avoin portaikko ja kiinteistön raikas ilme inspiroivat joka päivä.
Sijainti Keilaniemessä on erinomainen: vain 200 metrin päässä tulevalta metroasemalta ja Raide-Jokerin pysäkiltä. Autoilijoille on tarjolla pysäköintipaikkoja sekä talon parkkihallissa että pihassa, ja keskustaan on matkaa vain 6,7 kilometriä. Tule kokemaan tämä toimistotila paikan päällä!
Näkyvällä paikalla
Hissi
ScanReal Oy LKV
Opus Business Park
Hitsaajankatu 24
00810 Helsinki
info@scanreal.fi
Puh:
Näytä puhelinnumero
020 730 8830
Sopivat toimitilat yhdellä otolla!
Kartoitamme toimitilatarpeesi ja etsimme yrityksellesi parhaiten sopivat vapaat toimitilat. Koska vuokranantajat maksavat palvelumme, on tämä yrityksellesi veloituksetonta.
Palvelumme on tilanhakijalle ilmainen
Sopivat toimitilat yhdellä otolla!
Kartoitamme toimitilatarpeesi ja etsimme yrityksellesi parhaiten sopivat vapaat toimitilat. Koska vuokranantajat maksavat palvelumme, on tämä yrityksellesi veloituksetonta.
OTA YHTEYTTÄ - SOVI NÄYTTÖ!
Kaikki kohteemme eivät ole netissä, kerro tilatarpeesi niin kartoitamme vaihtoehdot.
Palvelumme on tilanhakijalle ilmainen
