Vuokrataan toimistotilat - Oulu
Yrttipellontie 6, Peltola, 90230 Oulu #10834498
Toimistotilaa Oulusta
Osoite
Yrttipellontie 6, 90230 Oulu
Tilatyyppi
Toimistotilaa
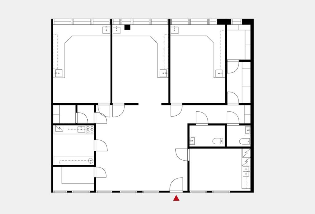
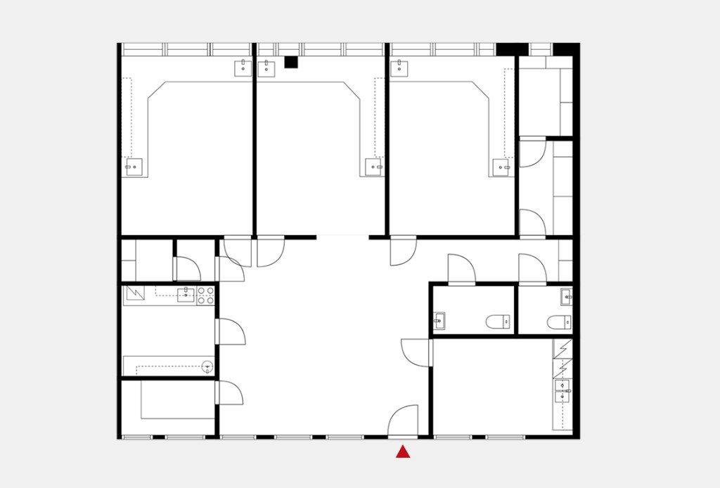
178 m2
Muuta
Vuokrattavana Oulusta hyvältä sijainnilta 178 m² toimistotila ensimmäisessä kerroksessa.
Tila vapautuu 1.1.2026.
Toimiston keskeinen sijainti mahdollistaa helpon saavutettavuuden eri puolilta kaupunkia, tarjoten sujuvat kulkuyhteydet sekä asiakkaille että työntekijöille.
Tervetuloa tutustumaan, varaathan välittäjältä oman esittelyaikasi. Voit kysyä meiltä myös muita sopivia vaihtoehtoja, kauttamme löydät juuri Teidän tarpeisiinne sopivat tilat.
Palvelumme on tilanhakijalle veloitukseton!
Tila vapautuu 1.1.2026.
Toimiston keskeinen sijainti mahdollistaa helpon saavutettavuuden eri puolilta kaupunkia, tarjoten sujuvat kulkuyhteydet sekä asiakkaille että työntekijöille.
Tervetuloa tutustumaan, varaathan välittäjältä oman esittelyaikasi. Voit kysyä meiltä myös muita sopivia vaihtoehtoja, kauttamme löydät juuri Teidän tarpeisiinne sopivat tilat.
Palvelumme on tilanhakijalle veloitukseton!
Vapautuu
Kysy
Kerros
1
Ota yhteyttä
Tuloskiinteistöt Oy
Rikhardinkatu 2 B 5, 00130 Helsinki
Näytä puhelinnumero
(09) 6841 620
Jorma Ryynänen
Commercial Real Estate Advisor LKV, LVV
Näytä puhelinnumero
+358 40 708 4064
Nina Meyke
Commercial Real Estate Advisor
Näytä puhelinnumero
+358 50 466 1519
Pyydä lisätietoa
