Vuokrataan toimistotilat - Oulu
Elektroniikkatie 3, Linnanmaa, 90590 Oulu #10834496
Siistiä toimistotilaa Oulusta
Osoite
Elektroniikkatie 3, 90590 Oulu
Tilatyyppi
Toimistotilaa
435 m2
Muuta
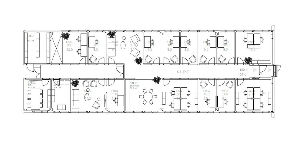
Vuokrattavana 435,5 m² toimistotilaa kiinteistön ensimmäisessä kerroksessa.
Pysäköintipaikkoja on tarjolla ulkopysäköintialueella aivan kiinteistön edustalla, mikä helpottaa pysäköintiä sekä henkilökunnalle että vieraille.
Tila koostuu tiimitiloista ja yksittäisistä huoneista.
Tervetuloa tutustumaan, varaathan välittäjältä oman esittelyaikasi. Voit kysyä meiltä myös muita sopivia vaihtoehtoja, kauttamme löydät juuri Teidän tarpeisiinne sopivat tilat.
Palvelumme on tilanhakijalle veloitukseton!
Pysäköintipaikkoja on tarjolla ulkopysäköintialueella aivan kiinteistön edustalla, mikä helpottaa pysäköintiä sekä henkilökunnalle että vieraille.
Tila koostuu tiimitiloista ja yksittäisistä huoneista.
Tervetuloa tutustumaan, varaathan välittäjältä oman esittelyaikasi. Voit kysyä meiltä myös muita sopivia vaihtoehtoja, kauttamme löydät juuri Teidän tarpeisiinne sopivat tilat.
Palvelumme on tilanhakijalle veloitukseton!
Vapautuu
Kysy
Kerros
1
Ota yhteyttä
Tuloskiinteistöt Oy
Rikhardinkatu 2 B 5, 00130 Helsinki
Näytä puhelinnumero
(09) 6841 620
Jorma Ryynänen
Commercial Real Estate Advisor LKV, LVV
Näytä puhelinnumero
+358 40 708 4064
Nina Meyke
Commercial Real Estate Advisor
Näytä puhelinnumero
+358 50 466 1519
Pyydä lisätietoa
