Vuokrataan toimistotilat - Oulu
Elektroniikkatie 3, Linnanmaa, 90590 Oulu #10834495
Siistiä toimistotilaa Oulusta
Osoite
Elektroniikkatie 3, 90590 Oulu
Tilatyyppi
Toimistotilaa
349 m2
Muuta
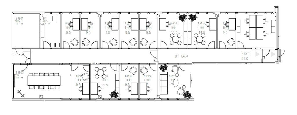
Vuokrattavana 349 m² toimistotilaa kiinteistön ensimmäisessä kerroksessa.
Erinomainen sijainti ja palvelut lähellä.
Pysäköintipaikkoja on tarjolla ulkopysäköintialueella aivan kiinteistön edustalla, mikä helpottaa pysäköintiä sekä henkilökunnalle että vieraille.
Tervetuloa tutustumaan, varaathan välittäjältä oman esittelyaikasi. Voit kysyä meiltä myös muita sopivia vaihtoehtoja, kauttamme löydät juuri Teidän tarpeisiinne sopivat tilat.
Palvelumme on tilanhakijalle veloitukseton!
Erinomainen sijainti ja palvelut lähellä.
Pysäköintipaikkoja on tarjolla ulkopysäköintialueella aivan kiinteistön edustalla, mikä helpottaa pysäköintiä sekä henkilökunnalle että vieraille.
Tervetuloa tutustumaan, varaathan välittäjältä oman esittelyaikasi. Voit kysyä meiltä myös muita sopivia vaihtoehtoja, kauttamme löydät juuri Teidän tarpeisiinne sopivat tilat.
Palvelumme on tilanhakijalle veloitukseton!
Vapautuu
Kysy
Kerros
1
Ota yhteyttä
Tuloskiinteistöt Oy
Rikhardinkatu 2 B 5, 00130 Helsinki
Näytä puhelinnumero
(09) 6841 620
Jorma Ryynänen
Commercial Real Estate Advisor LKV, LVV
Näytä puhelinnumero
+358 40 708 4064
Nina Meyke
Commercial Real Estate Advisor
Näytä puhelinnumero
+358 50 466 1519
Pyydä lisätietoa
