Vuokrataan toimistotilat - Oulu
Elektroniikkatie 6, Linnanmaa, 90590 Oulu #10834492
Toimistotilaa Oulusta
Osoite
Elektroniikkatie 6, 90590 Oulu
Tilatyyppi
Toimistotilaa
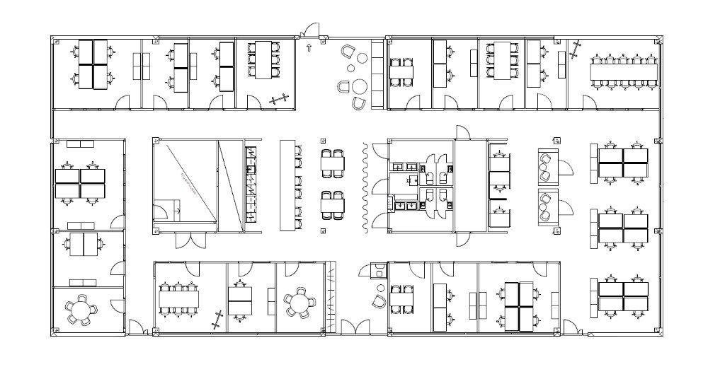
735 m2
Muuta
Vuokrattavana Oulusta Linnanmaalta 735 m² toimistotilaa kolmannessa kerroksessa.
Tila on heti vapaa.
Pysäköintipaikkoja on saatavilla kiinteistön edustalla sijaitsevalta ulkopysäköintialueelta, joten pysäköinti on vaivatonta niin henkilöstölle kuin asiakkaillekin.
Tervetuloa tutustumaan, varaathan välittäjältä oman esittelyaikasi. Voit kysyä meiltä myös muita sopivia vaihtoehtoja, kauttamme löydät juuri Teidän tarpeisiinne sopivat tilat.
Palvelumme on tilanhakijalle veloitukseton!
Tila on heti vapaa.
Pysäköintipaikkoja on saatavilla kiinteistön edustalla sijaitsevalta ulkopysäköintialueelta, joten pysäköinti on vaivatonta niin henkilöstölle kuin asiakkaillekin.
Tervetuloa tutustumaan, varaathan välittäjältä oman esittelyaikasi. Voit kysyä meiltä myös muita sopivia vaihtoehtoja, kauttamme löydät juuri Teidän tarpeisiinne sopivat tilat.
Palvelumme on tilanhakijalle veloitukseton!
Vapautuu
Kysy
Kerros
3
Ota yhteyttä
Tuloskiinteistöt Oy
Rikhardinkatu 2 B 5, 00130 Helsinki
Näytä puhelinnumero
(09) 6841 620
Jorma Ryynänen
Commercial Real Estate Advisor LKV, LVV
Näytä puhelinnumero
+358 40 708 4064
Nina Meyke
Commercial Real Estate Advisor
Näytä puhelinnumero
+358 50 466 1519
Pyydä lisätietoa
