Vuokrataan liiketilat - Helsinki
Nuijamiestentie 5 A, Haaga, 00400 Helsinki #10834460
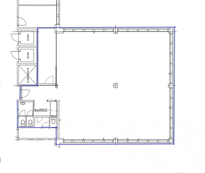
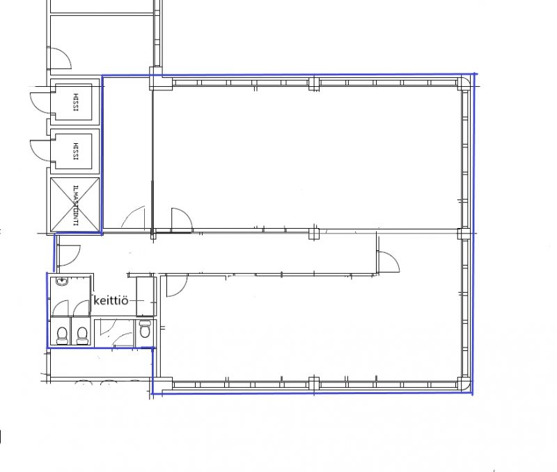
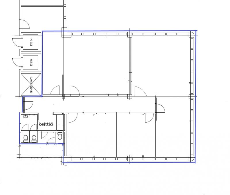
Vuokrataan 1.kerroksessa 4m korkea liiketila 166m2 Haagan Toimistoristikosta. Huoneistossa on useita erikokoisia huoneita, varastohuone, keittiökomero ja 2 wc. Huoneisto on muokattavissa vuokralaisen tarpeiden mukaan ja seinät ovat purettavissa, näin saa avaruutta.
Kiinteistössä on tehty merkittävä saneeraus.
Toimistoristikko sijaitsee Hämeenlinnanväylän vieressä ja Kehä I:n läheisyydessä.
Ilmaisia 2h parkkipaikkoja on pihalla ja kadun varrella, mahdollistaa vuokrata autopaikan pihalta että hallista, takapihalla löyty sähkölatauspisteet.
Kiinteistössä smartpost palvelu sekä kellaritilassa yhteiskäytössä suihkutilat. Naapurikiinetistöissä on lounasravintolat ja lähellä löytyy ruokakauppa K-Supermarket.
Etäisyydet:
Raitiovaunupysäkki 350m
Bussipysäkki 400m
Juna-asema 1,7km
Lentoasema 15km
Kysy lisää!
Katutasossa
Comreal Oy LKV
Salla Saraniemi
Näytä puhelinnumero
040 138 1081
P.
Näytä puhelinnumero
020 744 1000
Läkkisepänkuja 6, 00620 Helsinki
Comreal Oy on kasvava ja osaava kiinteistöalan palveluntuottaja kiinteistöjen omistajille ja käyttäjille.
Kiinteistö on sijoittajalle hyvä sijoitus vain, jos siellä on tyytyväiset asiakkaat, eli vuokralaiset. Siksi laadukas asiakaspalvelu on toiminnan lähtökohta.
