Vuokrataan toimistotilat - Helsinki
Porkkalankatu 20, Ruoholahti, 00180 Helsinki #10834449
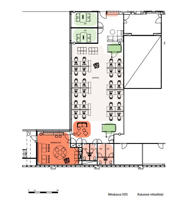
Vuokrataan muuttovalmis toimistotila hyvältä sijainnilta Ruoholahdesta. Yhdistelmä huonetoimistoa ja avotilaa varustettuna omalla keittiöllä ja sosiaalitiloilla. Tila mahdollistaa kalustuksesta riipuen 40-50 henkilön työskentelyn.
Talossa toimii aulapalvelu, joka vastaanottaa vieraat sekä lähetykset. Vuokrattavissa monia erikokoisia neuvottelutiloja ja saunatilat. Suosittu lounasravintola palvelee vuokralaisia lounasaikojen lisäksi myös catering-palveluilla.
Kiinteistöllä on huippusijainti riippumatta siitä millä töihin kuljetaan. Autopaikkoja vuokrattavissa lähes rajattomasti talon alta parkkihallista, jonne Länsiväylältä suora yhteys. Ruoholahden metroasema, linja-autopysäkki ja raitiovaunupysäkki ovat kaikki 200 metrin säteellä kiinteistöstä. Työmatkapyöräilijöille löytyy pyöräparkki sekä suhku- ja pukuhuonetilat.
Lisätietoja soita 020 730 4530 tai info@repoint.fi. Palvelumme on tilanhakijalle ilmainen.
Repoint Toimitilat Oy
Itälahdenkatu 22 B, 00210 Helsinki
Näytä puhelinnumero
020 730 4530
Lisätietoja soita Näytä puhelinnumero 020 730 4530 tai info@repoint.fi
https://repoint.fi/