Vuokrataan toimistotilat - Helsinki
Mestaritalo, Pursimiehenkatu 26, Punavuori, 00150 Helsinki #10834418
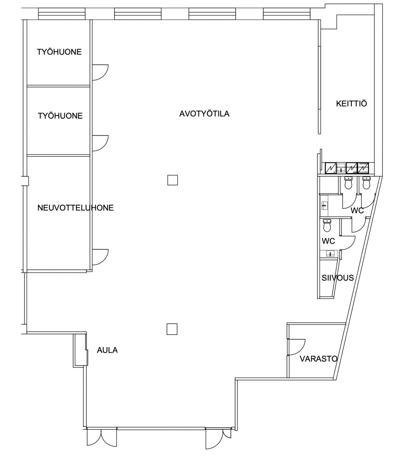
Siisti 300 m² toimisto Helsingin Punavuoressa, Mestaritalossa.
Osoite
Pursimiehenkatu 26, 00150 Helsinki
Tilatyyppi
Toimistotilaa
300 m2
Pohjapiirros
Kiinteistö
Trendikäs toimistotila, jossa iso avotila, kaksi työhuonetta sekä neuvotteluhuone.
Tila on remontoitu 2019. Tilaan pääsee sekä henkilö- että tavarahissillä. Kaksi erillistä ovea sisäänkäynnille.
Mestaritalo sijaitsee Helsingin Punavuoressa, Hietalahdenrannan läheisyydessä. Rakennus täyttää koko korttelin jota rajaavat Tehtaankatu, Perämiehenkatu, Pursimiehenkatu ja Telakkakatu. Nykyisen rakennuksen vanhimmat osat ovat vuodelta 1898 ja rakennus sai nykyisen hahmonsa vuoteen 1943 mennessä.
Alueella on runsaasti lounasravintoloita, päivittäistavarapalvelut ja erikoisliikkeitä. Helsingin keskustan palvelut sijaitsevat lyhyen matkan päässä. Kiinteistössä toimii lukuisia mainos- ja media-alan yrityksiä sekä mm. arkkitehtitoimistoja.
Tila on remontoitu 2019. Tilaan pääsee sekä henkilö- että tavarahissillä. Kaksi erillistä ovea sisäänkäynnille.
Mestaritalo sijaitsee Helsingin Punavuoressa, Hietalahdenrannan läheisyydessä. Rakennus täyttää koko korttelin jota rajaavat Tehtaankatu, Perämiehenkatu, Pursimiehenkatu ja Telakkakatu. Nykyisen rakennuksen vanhimmat osat ovat vuodelta 1898 ja rakennus sai nykyisen hahmonsa vuoteen 1943 mennessä.
Alueella on runsaasti lounasravintoloita, päivittäistavarapalvelut ja erikoisliikkeitä. Helsingin keskustan palvelut sijaitsevat lyhyen matkan päässä. Kiinteistössä toimii lukuisia mainos- ja media-alan yrityksiä sekä mm. arkkitehtitoimistoja.
Vapautuu
Heti
Kerros
5
Energiatehokkuusluokka
Ei lain edellyttämää energiatodistusta
Hissi
Ota yhteyttä
ScanReal Oy LKV
Opus Business Park
Hitsaajankatu 24
00810 Helsinki
info@scanreal.fi
Puh:
Näytä puhelinnumero
020 730 8830
Sopivat toimitilat yhdellä otolla!
Kartoitamme toimitilatarpeesi ja etsimme yrityksellesi parhaiten sopivat vapaat toimitilat. Koska vuokranantajat maksavat palvelumme, on tämä yrityksellesi veloituksetonta.
OTA YHTEYTTÄ - SOVI NÄYTTÖ!
Kaikki kohteemme eivät ole netissä, kerro tilatarpeesi niin kartoitamme vaihtoehdot.
Palvelumme on tilanhakijalle ilmainen
Pyydä lisätietoa
