Vuokrataan - Espoo
Finnoonniitty 7, Suomenoja, 02270 Espoo #10834404
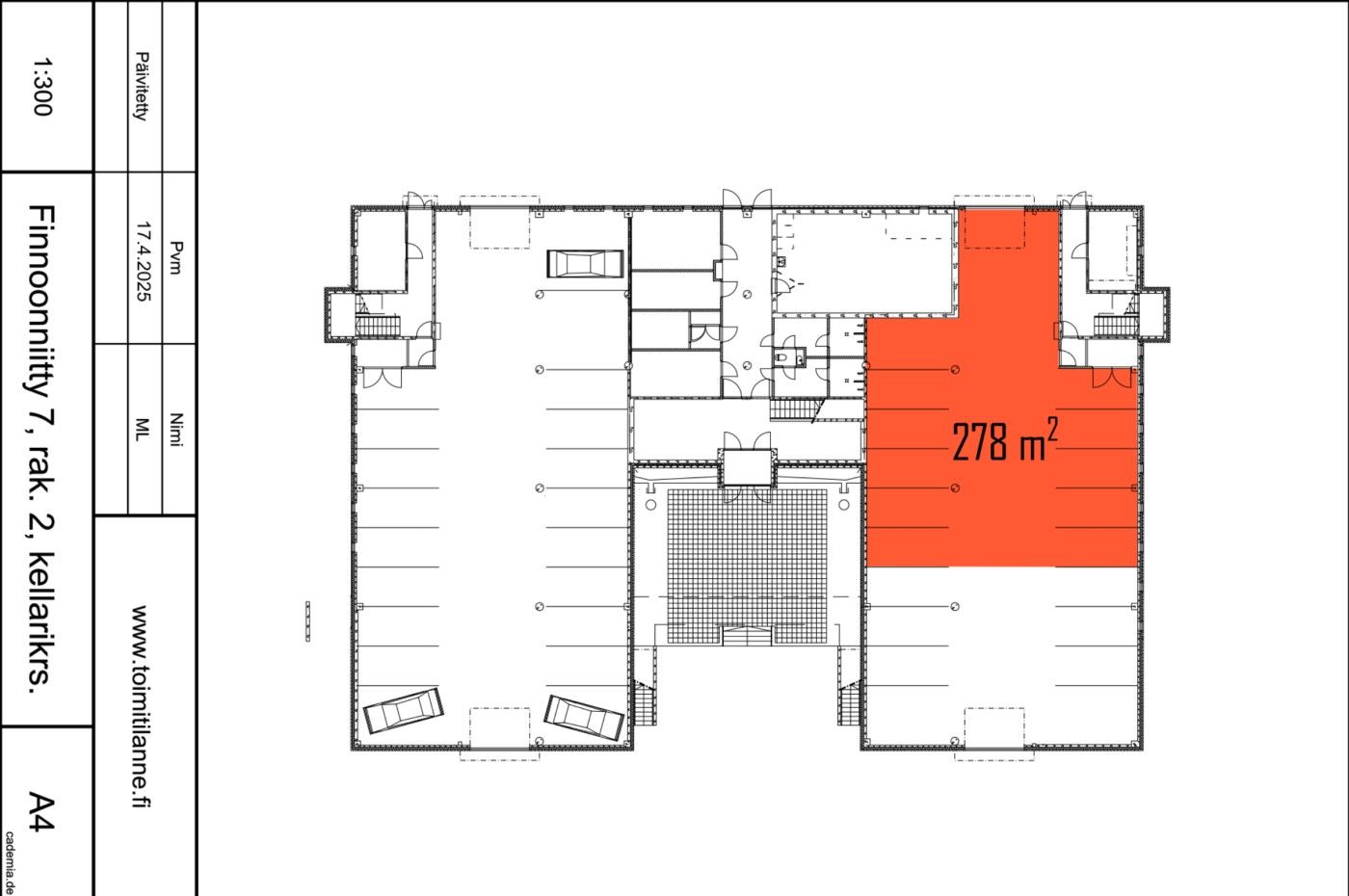
Vuokrataan helposti saavutettava noin 278 m2:n varastotila, jossa on suora sisäänajo nosto-oven kautta (leveys n. 3,6 m, korkeus n. 2,4 m). Tila soveltuu esimerkiksi varastointiin, huolto- ja pakkaustoimintaan tai kevyeen tuotantoon. Ei lattiakaivoa, eikä sovellu autopesulaksi.
Kysy lisää: jouko.raitanen@rhg.fi/0504695444
Osoite
Finnoonniitty 7, 02270 Espoo
Vapautuu
Kysy
Huoneiden lukumäärä
1
Energiatehokkuusluokka
Ei lain edellyttämää energiatodistusta
Ota yhteyttä
RHG Real Estate
Hämeenkatu 2 B20, 20500 Turku
Näytä puhelinnumero
020 734 4020
Jouko Raitanen
Näytä puhelinnumero
050 469 5444
Pyydä lisätietoa
