Vuokrataan - Helsinki
Hankasuontie 9, Konala, 00390 Helsinki #10834403
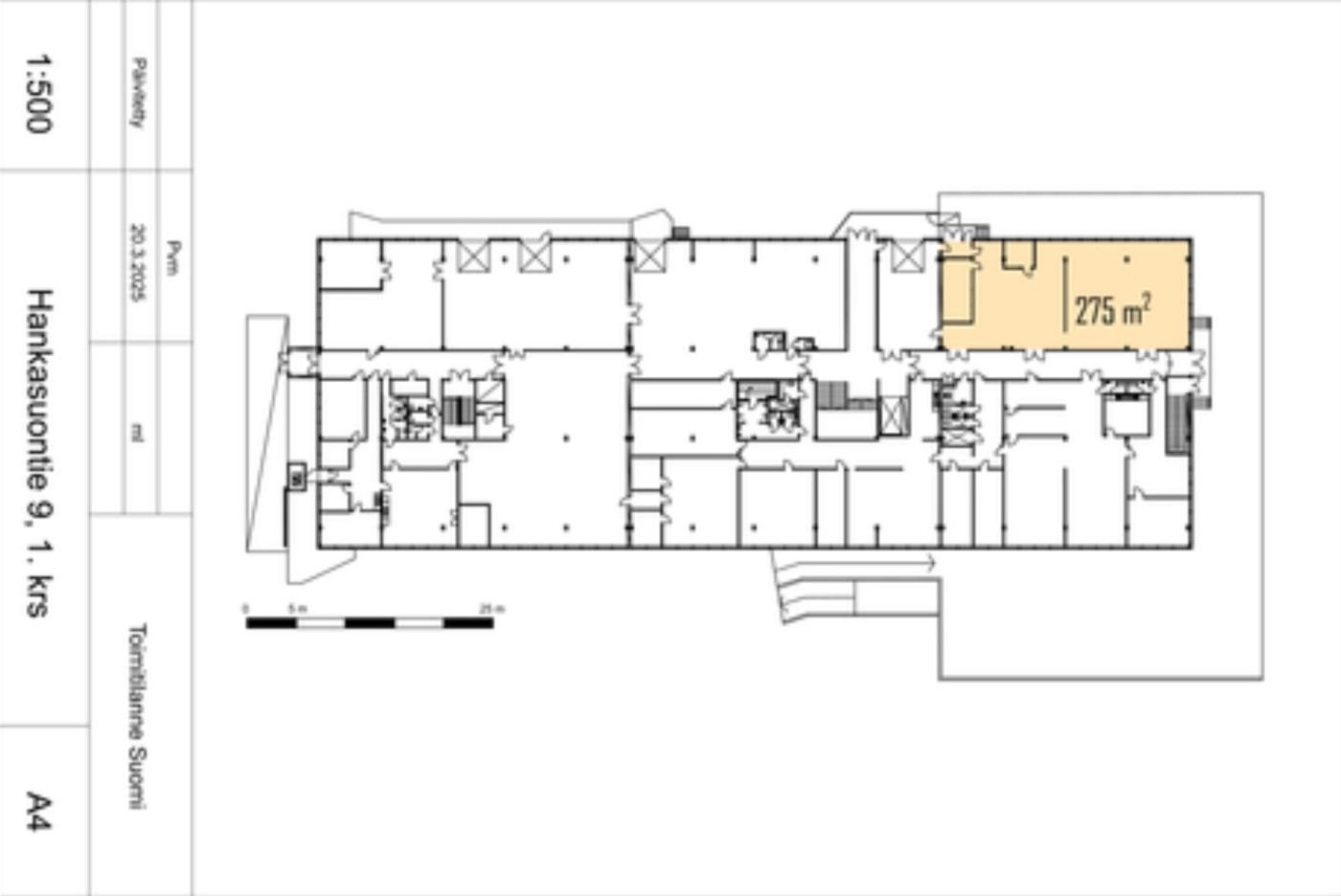
Vuokrataan toimitila 275 m2 ensimmäisestä kerroksesta. Väliseinä jakaa tilan noin puoliksi toimistolle ja varastolle. Kulkuyhteys ulkoa suoraan omasta ovesta tai lastauslaiturilta käytävän kautta. Varastopuolelle myös oma ovi käytävästä. Toimistossa keittiönurkka, wc:t käytävällä.
Kiinteistö sijaitsee Vihdintien tuntumassa vilkkaalla Hankasuontien teollisuus- ja yritysalueella. Rakennuksessa toimii tällä hetkellä yrityksiä mm. maahantuonnin, tukkukaupan, kokoonpanon ja B2B-toiminnan parista.
Kysy lisää: jouko.raitanen@rhg.fi/0504695444
RHG Real Estate
Hämeenkatu 2 B20, 20500 Turku
Näytä puhelinnumero
020 734 4020
Jouko Raitanen
Näytä puhelinnumero
050 469 5444
