Vuokrataan toimistotilat - Espoo
Piispantilankuja 2, Olari, 02240 Espoo #10834333
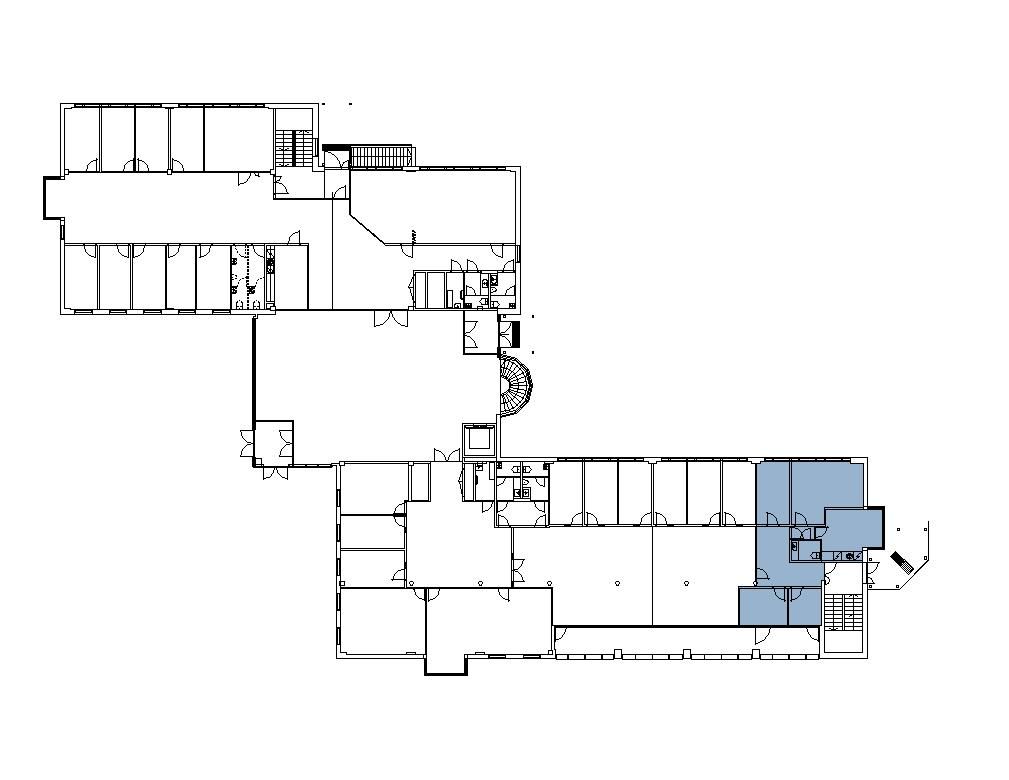
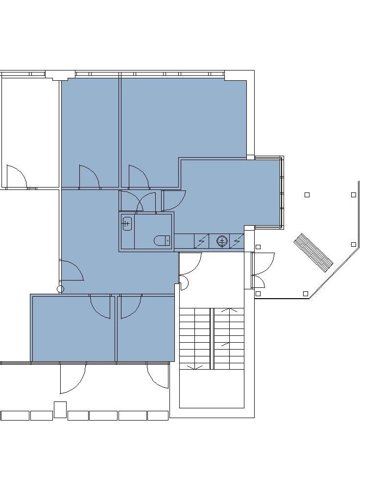
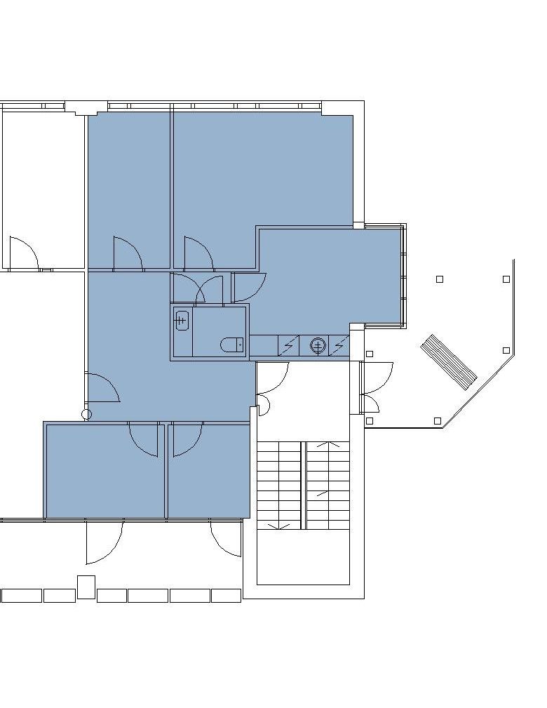
Katutasossa oleva siisti toimistotila, jossa erillisiä huoneita.
Osoite
Piispantilankuja 2, 02240 Espoo
Tilatyyppi
Toimistotilaa
80 m2
Pohjapiirros
Kiinteistö
Tämä Espoon Friisilässä sijaitseva kiinteistö tarjoaa valoisaa työskentelytilaa. Talossa on tyylikäs sisääntuloaula, sauna ja pysäköintihalli.
Kauniin puistomainen miljöö ympäröi tätä Espoon Friisilässä sijaitsevaa kiinteistöä. Taloon astuessa on vastassa tyylikäs sisääntuloaula, ja työskentelytilat ovat valoisat. Kiinteistössä on lisäksi sauna, jota vuokrataan kiinteistön kaikille asiakasyrityksille.
Busseilla pääsee kätevästi niin Tapiolaan kuin Helsingin keskustaan. Työpaikalle voi myös pyöräillä helposti läheisten kevyen liikenteen väylien ansiosta. Lähellä ovat Suomenojan liikekeskukset, esimerkiksi urheilu- ja rautakauppa. Myös kauppakeskus Iso Omena palveluineen ja lounaspaikkoineen on noin vartin kävelymatkan päässä. Noin viiden minuutin ajomatkan päässä Olarissa voi hoitaa ruokaostokset kätevästi kotimatkalla.
Kauniin puistomainen miljöö ympäröi tätä Espoon Friisilässä sijaitsevaa kiinteistöä. Taloon astuessa on vastassa tyylikäs sisääntuloaula, ja työskentelytilat ovat valoisat. Kiinteistössä on lisäksi sauna, jota vuokrataan kiinteistön kaikille asiakasyrityksille.
Busseilla pääsee kätevästi niin Tapiolaan kuin Helsingin keskustaan. Työpaikalle voi myös pyöräillä helposti läheisten kevyen liikenteen väylien ansiosta. Lähellä ovat Suomenojan liikekeskukset, esimerkiksi urheilu- ja rautakauppa. Myös kauppakeskus Iso Omena palveluineen ja lounaspaikkoineen on noin vartin kävelymatkan päässä. Noin viiden minuutin ajomatkan päässä Olarissa voi hoitaa ruokaostokset kätevästi kotimatkalla.
Sijainti
Kiinteistö sijaitsee Etelä-Espoossa noin 4,5 km Tapiolasta länteen. Kuitinmäentien bussipysäkit ovat lähellä ja ne palvelevat Espoon sisäisten bussien käyttäjiä. Länsiväylän varren pysäkiltä on yhteys Helsingin keskustaan.
Autopaikkoja löytyy kiinteistön autotallista ja pihalla.
Autopaikkoja löytyy kiinteistön autotallista ja pihalla.
Pysäköinti
Autopaikat kiinteistön pihassa ja autohallissa
Palvelut
Kauppakeskus Iso Omenaan on matkaa noin 1,5 km.
Kulkuyhteydet
Lähimmälle bussipysäkille 250 m
Lähimmälle metroasemalle 1,1 km
Lentokentälle 30 min
Lähimmälle metroasemalle 1,1 km
Lentokentälle 30 min
Vapautuu
Kysy
Rakennusvuosi
1991
Kerros
1
Energiatehokkuusluokka
C2018
Ympäristöluokitus
RESB Global Sector Leader 2025
Ota yhteyttä
Sponda Oy
Yrjönkatu 29C, 00100 Helsinki
Näytä puhelinnumero
020 43131
Anna Puhtila
Senior Manager, Value Add Portfolio
Näytä puhelinnumero
+358 50 407 9601
Sponda Oy
https://www.sponda.fiPyydä lisätietoa
