Vuokrataan toimistotilat - Helsinki
Pursimiehenkatu 29-31, Punavuori, 00150 Helsinki #10834273
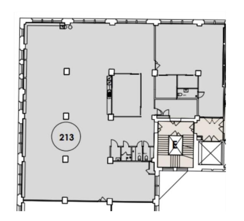
Vuokrattavana 2. kerroksen siistiä, upeaa toimistotilaa, jossa on avotilaa ja tiimitiloja.
Osoite
Pursimiehenkatu 29-31, 00150 Helsinki
Tilatyyppi
Toimistotilaa
569 m2
Kiinteistö
Vuokrattavana 2. kerroksen siistiä, upeaa toimistotilaa, jossa on avotilaa ja tiimitiloja. Tila on muokattavissa aivan asiakkaan tarpeiden mukaisesti. Kiinteistössä on uusittu, jäähdytetty koneellinen ilmanvaihto.
Sijainti
Punavuori, Helsinki
Pysäköinti
Kiinteistön parkkihallissa
Palvelut
-Ravintoloita
-Kaffaroastery paahtimo-kahvila
-Päivittäistavarakauppa
-Kaffaroastery paahtimo-kahvila
-Päivittäistavarakauppa
Kulkuyhteydet
-Raitiovaunu
-Bussi
-Metro
-Oma auto
-Bussi
-Metro
-Oma auto
Vapautuu
Heti
Kerros
2
Energiatehokkuusluokka
Ei lain edellyttämää energiatodistusta
Näkyvällä paikalla
Hissi
Ota yhteyttä
REALIUM OY LKV
Tammasaarenkatu 1, 00180 Helsinki
Vaihde:
Näytä puhelinnumero
010 326 346
Tuomo Mäkelä
tuomo.makela@realium.fi
p.
Näytä puhelinnumero
044 050 1158
Joel Keto
joel.keto@realium.fi
p.
Näytä puhelinnumero
045 317 0330
KAIKKI TILAVAIHTOEHDOT KERRALLA!
SOITA - MEILAA JA TILAA NÄYTTÖ!
Ilmainen palvelu tilanhakijoille.
Kartoitamme parhaat tilavaihtoehdot.
Kaikki kohteet eivät ole netissä.
Pyydä lisätietoa
