Vuokrataan toimistotilat - Helsinki
Huudi, Huopalahdentie 24, Munkkivuori, 00350 Helsinki #10834265
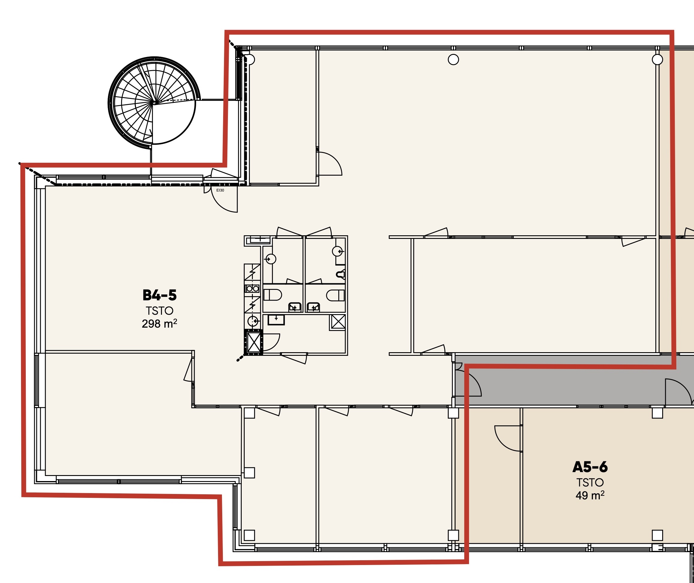
Viihtyisä 298 m² toimistotila hyvien kulkuyhteyksien varrelta Helsingin Munkkivuoresta.
Osoite
Huopalahdentie 24, 00350 Helsinki
Tilatyyppi
Toimistotilaa
298 m2
Kiinteistö
Munkkivuoren Huudi on kahdesta rakennuksesta koostuva toimiva ja tunnelmallinen yrityspuistokokonaisuus. Huudi tarjoaa yrityksille viihtyisät tilat ja ajanmukaiset palvelut sekä loistavan sijainnin perinteikkään Munkkivuoren ostoskeskuksen kupeessa.
Kiinteistössä tarjoillaan maistuvaa lounasta ja aulassa tulijat vastaanotetaan iloisesti. Huudista löytyy kuntosali, sosiaalitilat, erinomainen pyöräparkki ja tarvittaessa järjestämme paikan suksille, jos haluaa talvella hiihtää töihin. A-talon ylimmässä kerroksessa pääsee myös saunaan työkavereiden kanssa.
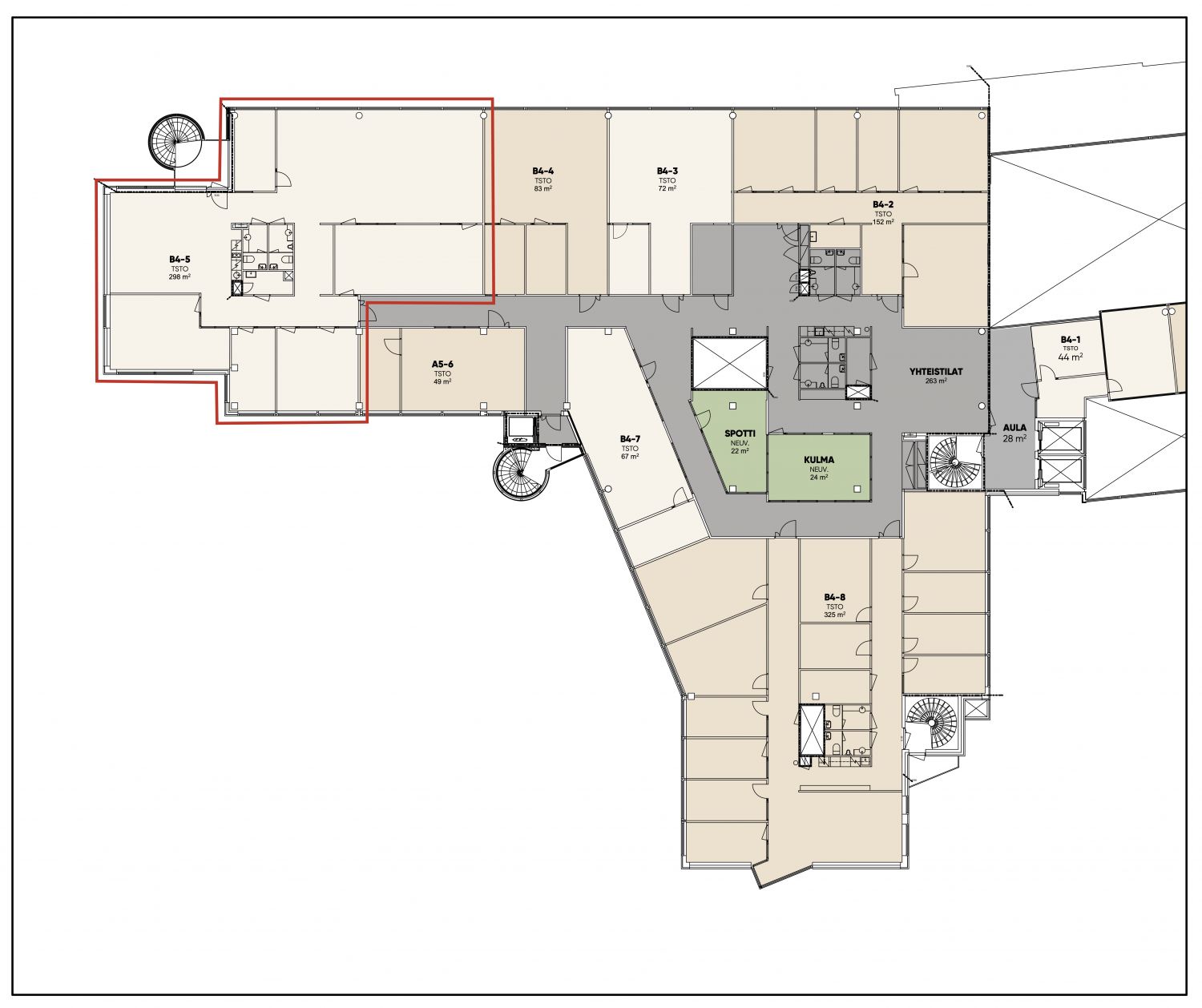
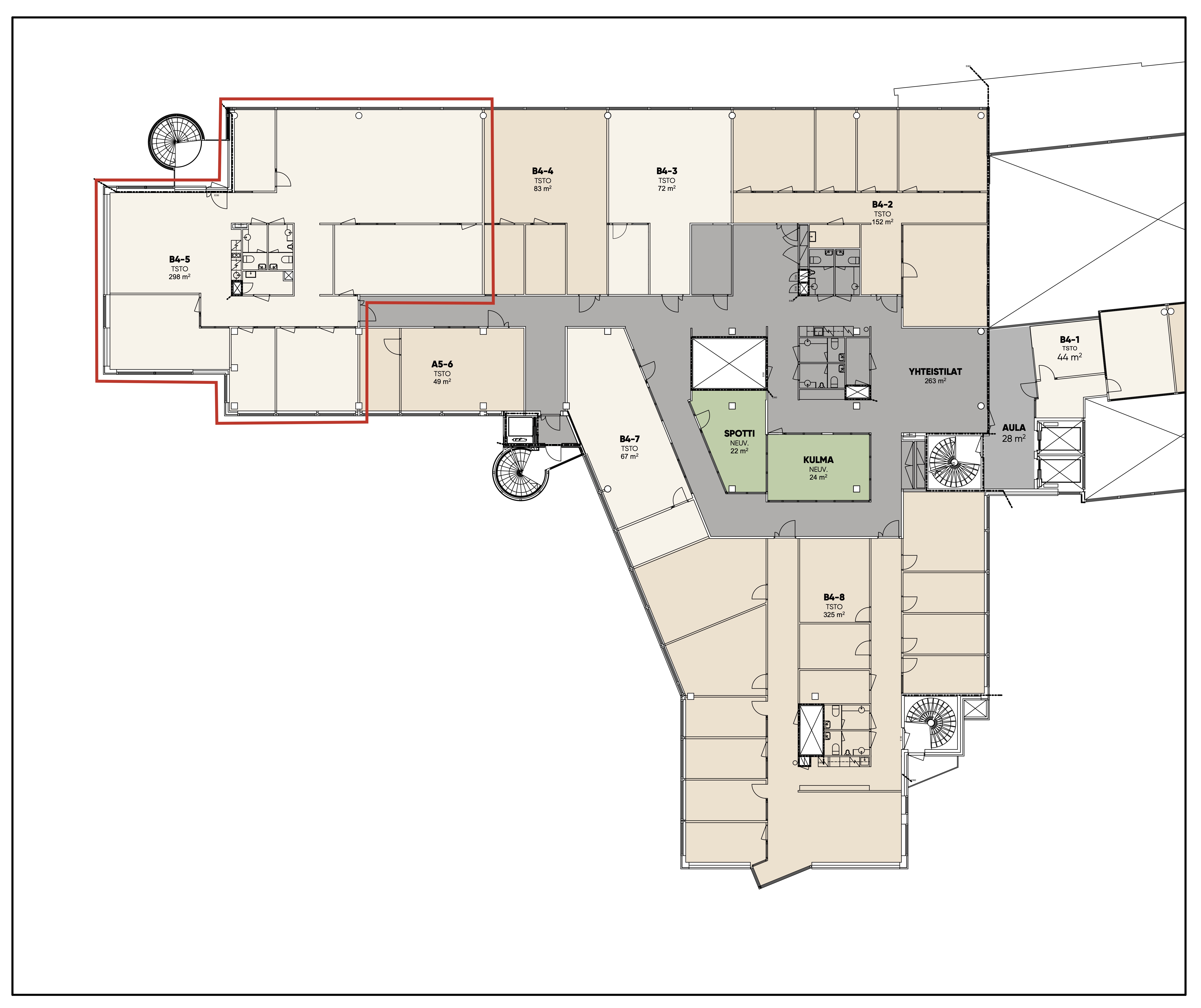
Toimistohuoneistojen pinta-alat vaihtelevat noin 40 neliön pientoimistoista 1 460 neliön koko kerroksen tiloihin. Huoneistot ovat muunneltavissa vuokralaisen työskentelytapaan sopivaksi. Sisäpihan toimistoista voi ihailla rauhoittavaa metsämaisemaa, kun taas Huopalahdentien puolen tiloissa voi kylpeä valossa. Kiinteistössä on myös erillisiä neuvottelutiloja.
Erinomainen sijainti näkyvällä paikalla Huopalahdentien varrella takaa hyvät julkisen liikenteen palvelut, joita täydentävät kohteen hyvät henkilökunnan pysäköintitilat.
Kiinteistössä tarjoillaan maistuvaa lounasta ja aulassa tulijat vastaanotetaan iloisesti. Huudista löytyy kuntosali, sosiaalitilat, erinomainen pyöräparkki ja tarvittaessa järjestämme paikan suksille, jos haluaa talvella hiihtää töihin. A-talon ylimmässä kerroksessa pääsee myös saunaan työkavereiden kanssa.
Toimistohuoneistojen pinta-alat vaihtelevat noin 40 neliön pientoimistoista 1 460 neliön koko kerroksen tiloihin. Huoneistot ovat muunneltavissa vuokralaisen työskentelytapaan sopivaksi. Sisäpihan toimistoista voi ihailla rauhoittavaa metsämaisemaa, kun taas Huopalahdentien puolen tiloissa voi kylpeä valossa. Kiinteistössä on myös erillisiä neuvottelutiloja.
Erinomainen sijainti näkyvällä paikalla Huopalahdentien varrella takaa hyvät julkisen liikenteen palvelut, joita täydentävät kohteen hyvät henkilökunnan pysäköintitilat.
Vapautuu
Heti
Rakennusvuosi
2002
Kerros
4 / 5
Energiatehokkuusluokka
Ei lain edellyttämää energiatodistusta
Näkyvällä paikalla
Hissi
Ota yhteyttä
ScanReal Oy LKV
Opus Business Park
Hitsaajankatu 24
00810 Helsinki
info@scanreal.fi
Puh:
Näytä puhelinnumero
020 730 8830
Sopivat toimitilat yhdellä otolla!
Kartoitamme toimitilatarpeesi ja etsimme yrityksellesi parhaiten sopivat vapaat toimitilat. Koska vuokranantajat maksavat palvelumme, on tämä yrityksellesi veloituksetonta.
OTA YHTEYTTÄ - SOVI NÄYTTÖ!
Kaikki kohteemme eivät ole netissä, kerro tilatarpeesi niin kartoitamme vaihtoehdot.
Palvelumme on tilanhakijalle ilmainen
Pyydä lisätietoa
