Vuokrataan liiketilat - Lohja
Korjaamokuja 3-5, Tynninharju, 08200 Lohja #10834212
Vuokrattavana modernia ja monikäyttöistä liiketilaa Tynninharjun alueella Lohjalla.
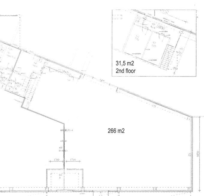
Tämän liiketilan kokonaispinta-ala on 297,5 m² ja se jakautuu kahteen kerrokseen, sisältäen 31,5 m² parven. Alakerrassa on avara ja helposti muunneltava 266 m² myymälä-/liiketila, johon sisältyy myös henkilökunnan sosiaalitilat: pukuhuone, wc, suihku, taukotila ja keittiö. Yläkerran 31,5 m² parvella on kaksi toimistohuonetta, jotka soveltuvat hyvin esimerkiksi hallinnolliseen työhön. Vapautuminen 1.1.2026.
Korjaamokuja 3-5 sijaitsee erinomaisella paikalla vilkkaassa yrityskeskittymässä Tynninharjun alueella Lohjalla. Kiinteistö sijaitsee aivan Hangontien varrella, tarjoten helpon saavutettavuuden niin asiakkaille kuin tavaratoimituksillekin. Alueelta löytyy mm. K-Rauta, autoliikkeitä ja päivittäistavarakauppoja. Lohjan keskustaan on n. 4km matka.
Kysy lisää numerosta 044 723 4700 tai info@bref.fi. Palvelumme on tilanhakijoille ilmainen.
Bureau Real Estate Finland Oy
Lars Sonckin kaari 16, 02600 Espoo
Näytä puhelinnumero
0447234700
Bureau Real Estate Finland Oy
https://www.bref.fi