Vuokrataan liiketilat, tuotantotilat, varastotilat - Tampere
Messukylänkatu 50, Messukylä, 33700 Tampere #10834208
Osoite
Messukylänkatu 50, 33700 Tampere
Tilatyyppi
Liiketilaa
440 m2
Tuotantotilaa
440 m2
Varastotilaa
407 m2
Yhteensä
407 - 1287 m2
Tilajako
Jaettavissa
Muuta
Vuokrataan liike-, toimisto- ja varastotilaa Messukylästä. Näkyvä ja vilkas sijainti Messukylänkadun ja Ristinarkuntien risteyksessä.
Yhteensä noin 1.287 m2 käsittävät tilat jakautuvat kolmeen kerrokseen:
- kellarikerros noin 407 m2 työ- ja varastotilaa
- katutaso noin 440 m2 liiketilaa
- 2. kerros noin 440 m2 toimisto/työ/varastotilaa
Kellarikerrokseen sijoittuu varasto- ja työtiloja. Kellariin on kulku sisäportaasta sekä rakennuksen eteläpuolelle sijoittuvan ajoluiskan kautta. Ajoluiskan yhteydessä on nosto-ovi.
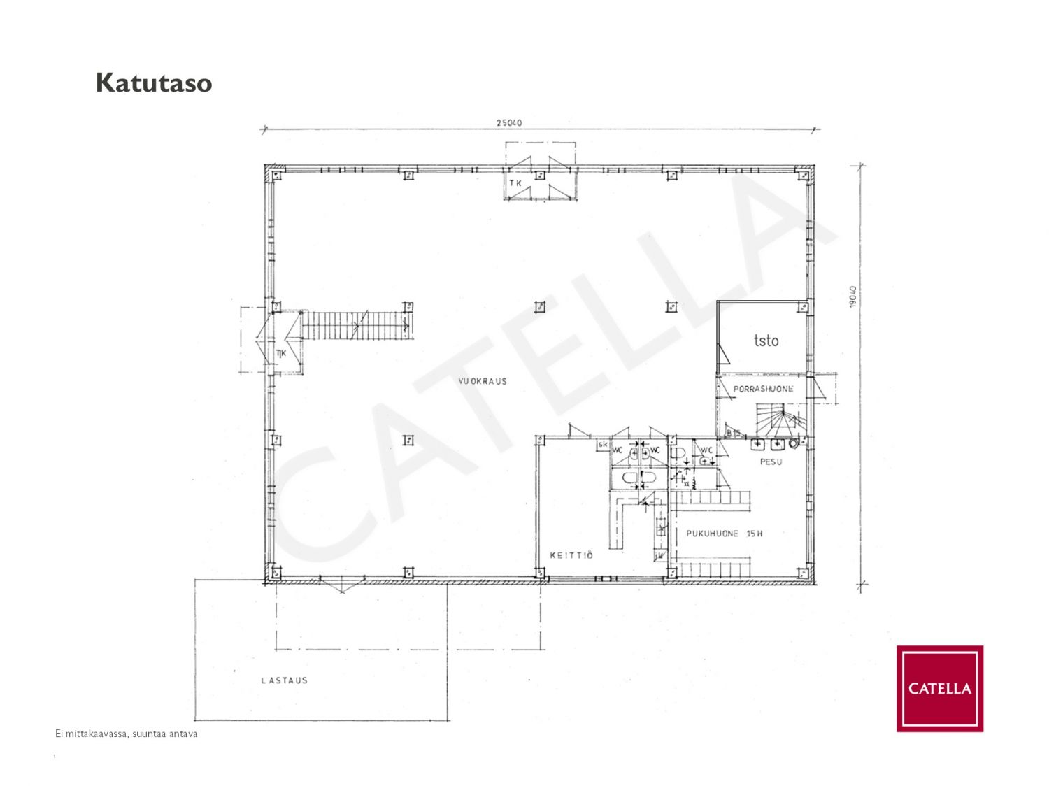
Katutasokerros käsittää avointa liiketilaa, keittiön (noin 30 m2), sosiaalitilat (noin 40 m2) sekä yhden toimistohuoneen (noin 13 m2).
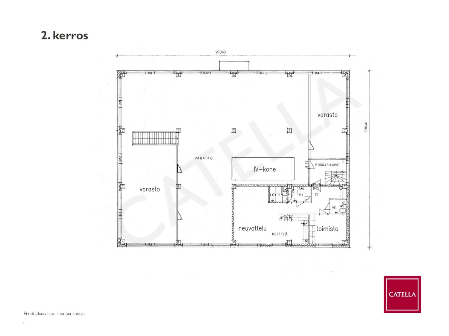
2. kerroksessa on avointa työtilaa, kaksi kevyillä väliseinillä jaettua varastotilaa sekä viimeksi toimistokäytössä olleen entisen asunnon (noin 85 m2).
Tilat voidaan vuokra yhtenä kokonaisuutena tai tiloja voidaan jakaa pienempiin osiin.
Kysy lisää!
Sovitaan käyntiaika paikan päälle.
Annina Niemi
Myyntipäällikkö, LKV
annina.niemi@catella.com
p. 040 4812 220
Tilanhakijalle palvelumme ovat maksuttomia.
Catella Property Oy on valtakunnallinen toimitilojen vuokraukseen ja myyntiin keskittynyt kiinteistönvälitysyritys.
Kysy paikallisilta ammattitaitoisilta välittäjiltämme myös muita välityksessämme olevia toimitilakohteita.
Välittäjiemme yhteystiedot ja lisää välitettäviä tilakohteita verkkosivuillamme: www.toimitilat.catella.fi.
Ota yhteyttä!
Yhteensä noin 1.287 m2 käsittävät tilat jakautuvat kolmeen kerrokseen:
- kellarikerros noin 407 m2 työ- ja varastotilaa
- katutaso noin 440 m2 liiketilaa
- 2. kerros noin 440 m2 toimisto/työ/varastotilaa
Kellarikerrokseen sijoittuu varasto- ja työtiloja. Kellariin on kulku sisäportaasta sekä rakennuksen eteläpuolelle sijoittuvan ajoluiskan kautta. Ajoluiskan yhteydessä on nosto-ovi.
Katutasokerros käsittää avointa liiketilaa, keittiön (noin 30 m2), sosiaalitilat (noin 40 m2) sekä yhden toimistohuoneen (noin 13 m2).
2. kerroksessa on avointa työtilaa, kaksi kevyillä väliseinillä jaettua varastotilaa sekä viimeksi toimistokäytössä olleen entisen asunnon (noin 85 m2).
Tilat voidaan vuokra yhtenä kokonaisuutena tai tiloja voidaan jakaa pienempiin osiin.
Kysy lisää!
Sovitaan käyntiaika paikan päälle.
Annina Niemi
Myyntipäällikkö, LKV
annina.niemi@catella.com
p. 040 4812 220
Tilanhakijalle palvelumme ovat maksuttomia.
Catella Property Oy on valtakunnallinen toimitilojen vuokraukseen ja myyntiin keskittynyt kiinteistönvälitysyritys.
Kysy paikallisilta ammattitaitoisilta välittäjiltämme myös muita välityksessämme olevia toimitilakohteita.
Välittäjiemme yhteystiedot ja lisää välitettäviä tilakohteita verkkosivuillamme: www.toimitilat.catella.fi.
Ota yhteyttä!
Vapautuu
Heti vapaa
Jaettavissa
Ota yhteyttä
Catella Property Oy
Hämeenkatu 13b A, 33100 Tampere
Näytä puhelinnumero
010 5220 100
Annina Niemi
Näytä puhelinnumero
040 4812 220
Pyydä lisätietoa
