Vuokrataan toimistotilat - Helsinki
Työpajankatu 9, Kalasatama, 00580 Helsinki #10834180
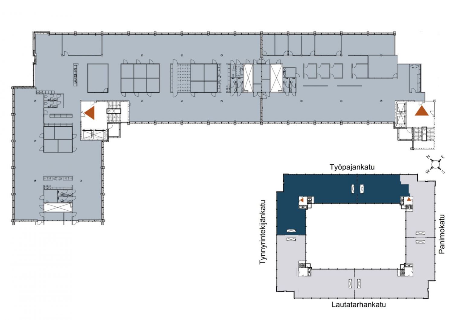
Vuokrataan viidennen kerroksen n. 1 628 m² toimistokokonaisuus Kalasatamassa.
Kalasataman Trooli on moderni ja muuntojoustava toimitilakortteli erinomaisella sijainnilla, vain muutaman minuutin kävelymatkan päässä metroasemalta. Kolmesta kiinteistöstä muodostuva kokonaisuus tarjoaa nykyaikaiset ja teknisesti korkeatasoiset tilat monenlaisten yritysten tarpeisiin.
Monipuoliset palvelut ja tilat
Troolin kiinteistössä on aulapalvelu, vuokrattavia neuvottelutiloja, lounasravintola, kuntosali, sauna- ja suihkutilat sekä suuri pyöräparkki. Vuokrattavissa on myös pienvarastotilaa. Liikkuminen tilojen välillä on sujuvaa sisäpihan ja autohallin kautta.
Keskeinen sijainti ja hyvät kulkuyhteydet
Trooli sijaitsee loistavien liikenneyhteyksien äärellä, metron, bussien ja pyöräreittien solmukohdassa. Kiinteistössä on laaja parkkihalli, sisäpihan autopaikkoja ja latauspisteitä sähköautoille.
Vireä ympäristö
Lähialue tarjoaa runsaasti palveluita, ravintoloita ja kulttuuritapahtumia. Troolin naapurustossa sijaitsevat mm. Teurastamon ja Suvilahden alueet sekä Kauppakeskus REDI, jotka tuovat elinvoimaa ympäristöön.
Kestävä kehitys ja energiatehokkuus
Trooli on sitoutunut vastuullisuuteen ja ekologisuuteen. Kaikilla kiinteistöillä on LEED-ympäristösertifikaatti, ja rakennuksen elinkaaren aikana suositaan kestäviä ratkaisuja ja kierrätysmateriaaleja.
Bussipysäkki: 50 m
Metroasema: 500 m
Raitiovaunupysäkki: 500 m
Juna-asema: 3,2 km
Lentoasema: 16,5 km
Kysy lisätietoja tai sovitaan käynti kohteelle jo tänään!
Hissi
Hausala Oy
Erkkilänkatu 11, 33100 Tampere
Näytä puhelinnumero
050 472 7077
Mikko Ranta
Näytä puhelinnumero
050 360 6500
Mika Savikko
Näytä puhelinnumero
050 472 7077
