Vuokrataan toimistotilat - Helsinki
Malminkatu 28, Kamppi, 00100 Helsinki #10834170
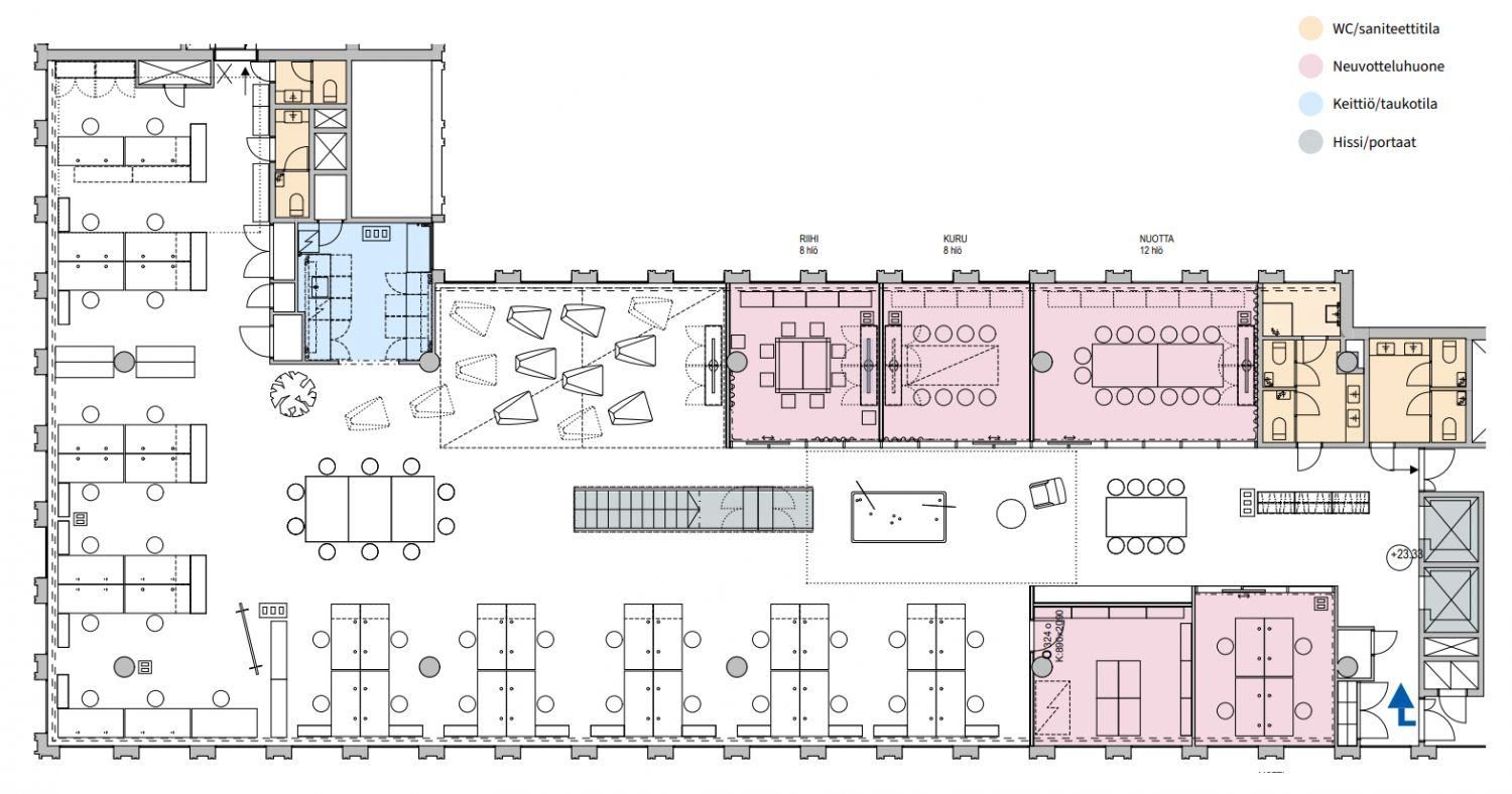
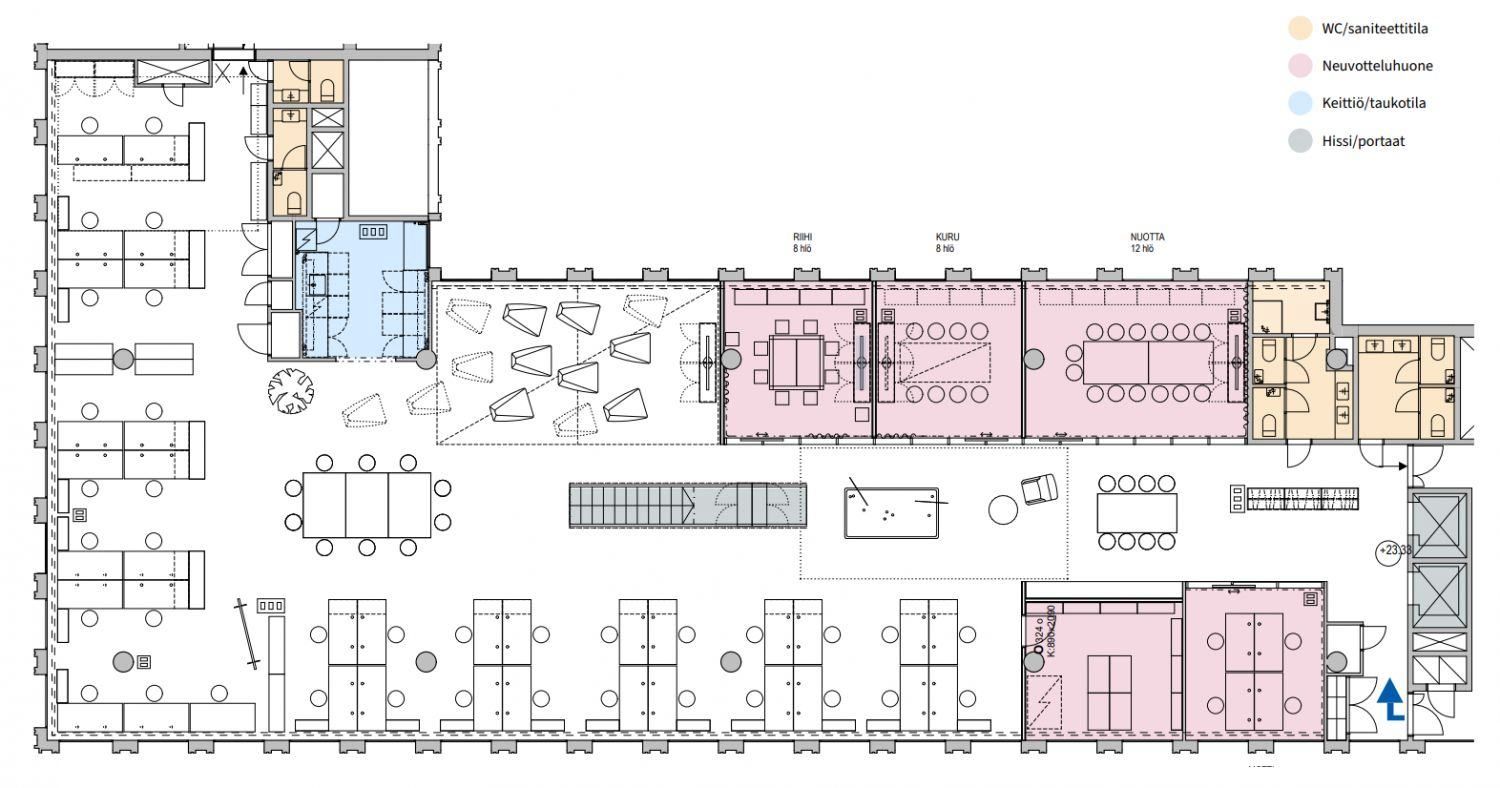
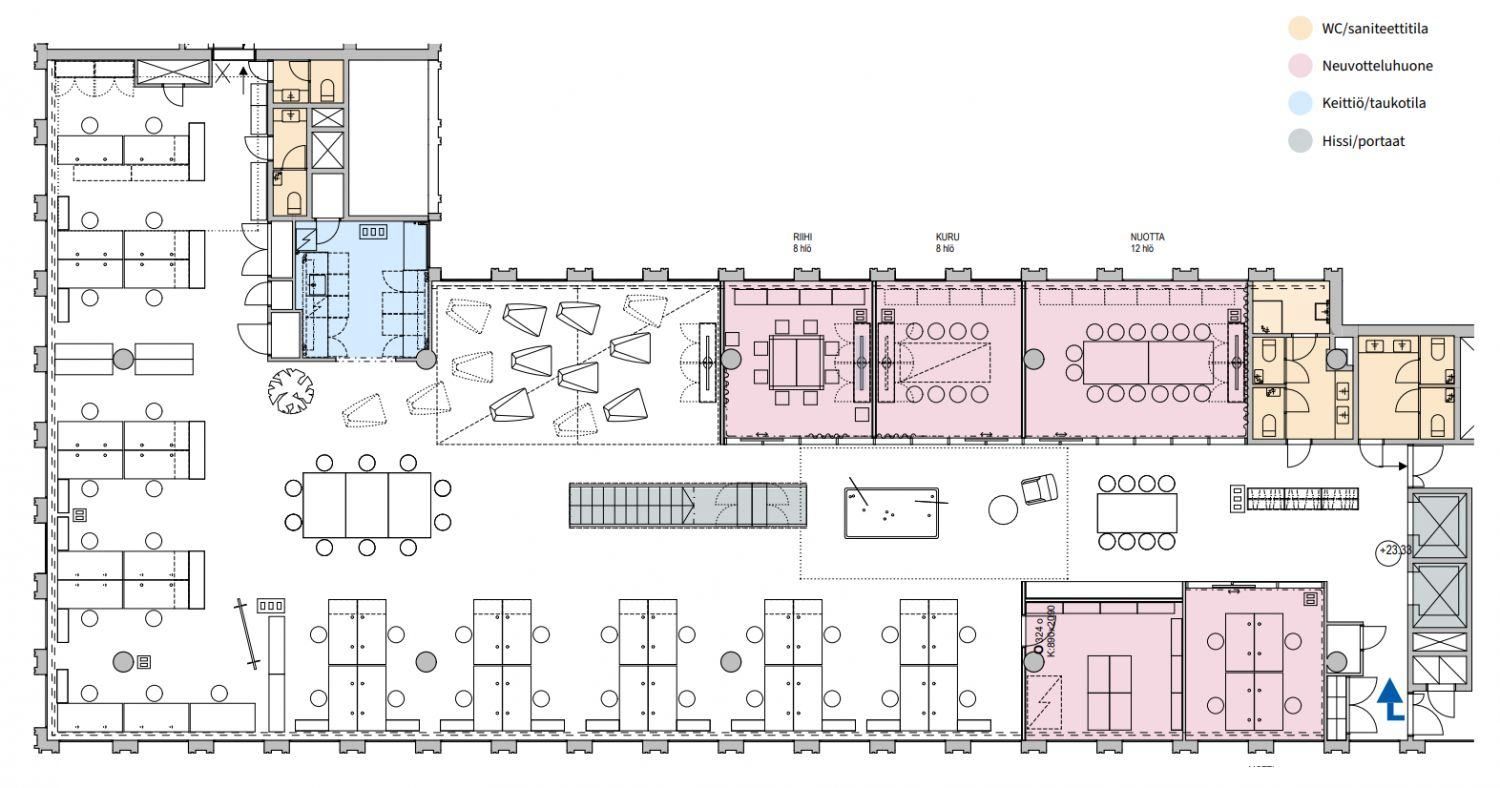
Vuokrataan Helsingin Kampista kolmannen kerroksen 525 m² toimistotila.
Toimiston pohjakuva on esimerkkiratkaisu! Avaraa avokonttori tilaa muokataan tarpeiden mukaisesti.
Keskeisen sijaintinsa ansiosta kiinteistöön on helppo saapua ja kaikki Kampin palvelut ovat lähettyvillä. Metro-/bussiasema sijaitsee aivan kiinteistön kupeessa, ja Helsingin rautatieasemalle on vain lyhyt kävelymatka.
Kiinteistöstä löytyy parkkipaikkoja autolle sekä polkupyörille. Forumin parkkihalli on vieressä.
Kysy rohkeasti lisätietoja ja sovitaan käynti kohteella jo tänään!
Hissi
Hausala Oy
Erkkilänkatu 11, 33100 Tampere
Näytä puhelinnumero
050 472 7077
Mika Savikko
Näytä puhelinnumero
050 472 7077
Mikko Ranta
Näytä puhelinnumero
050 360 6500
