Vuokrataan toimistotilat, liiketilat - Helsinki
John Stenbergin Ranta 2, Hakaniemi, 00530 Helsinki #10834149
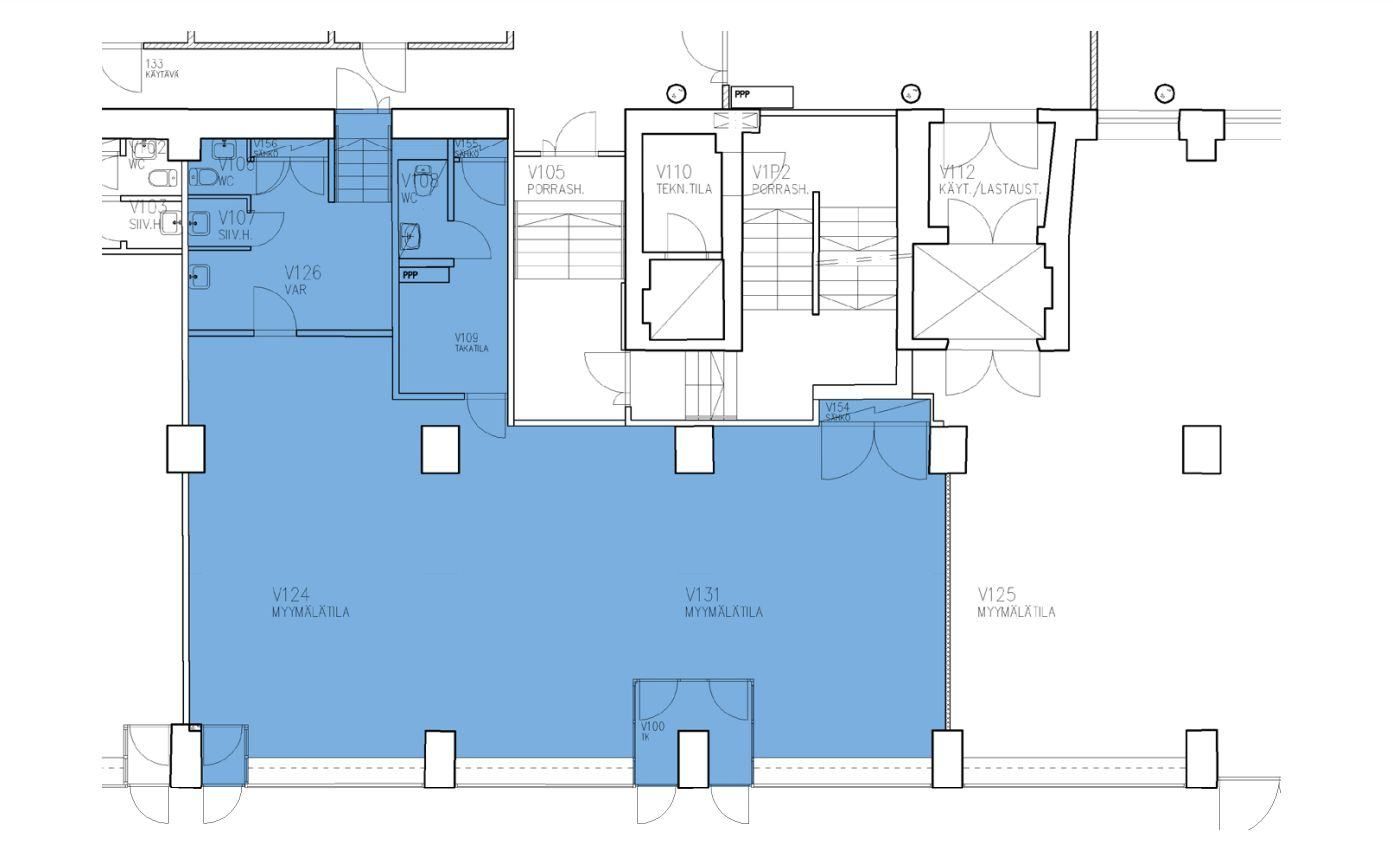
Vuokrataan Helsingin Hakaniemestä katutason 153 m² liiketila.
Tila on näkyvällä paikalla kivijalassa missä runsaasti ohikulkuliikennettä. Tila ei kuitenkaan sovellu ravintolaksi tai kahvilaksi. Toimistoksi taipuu hyvinkin.
Keskeisen sijaintinsa ansiosta kiinteistöön on helppo saapua ja kaikki Hakaniemen palvelut ovat lähettyvillä. Bussit kulkevat aivan kiinteistön kupeessa, ja Helsingin rautatieasemalle on vain lyhyt kävelymatka.
Kiinteistön palveluina mm. aulapalvelut, lounasravintola, kokoustilat sekä kuntosali. Autohallista on vuokrattavissa pysäköintipaikkoja ja sähköautojen latauskin onnistuu.
Kysy rohkeasti lisätietoja ja sovitaan käynti kohteella jo tänään!
Katutasossa
Hausala Oy
Erkkilänkatu 11, 33100 Tampere
Näytä puhelinnumero
050 472 7077
Mika Savikko
Näytä puhelinnumero
050 472 7077
Mikko Ranta
Näytä puhelinnumero
050 360 6500
