Vuokrataan toimistotilat - Helsinki
Lapinlahdenkatu 1 Ab, Kamppi, 00530 Helsinki #10834134
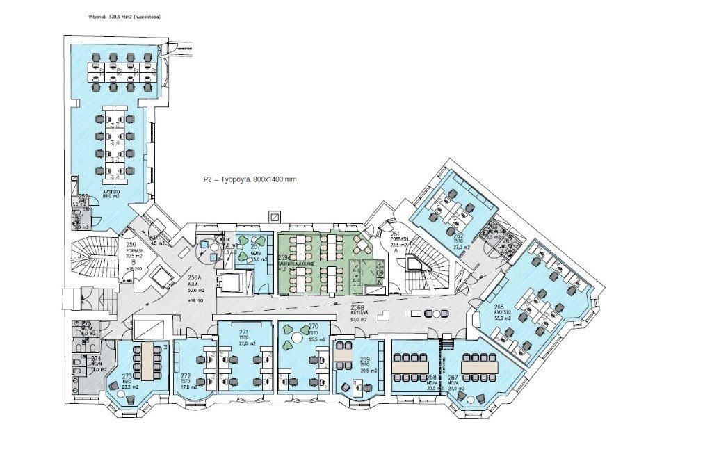
Vuokrataan Helsingin Kampista toisen kerroksen 539 m² toimistotila.
Toimisto koostuu avotilasta, työ-/neuvotteluhuoneista sekä erillisestä keittiöllisestä taukotilasta. Tilaa voidaan muokata tarpeiden mukaisesti.
Keskeisen sijaintinsa ansiosta kiinteistöön on helppo saapua ja kaikki Kampin palvelut ovat lähettyvillä. Kohteesta on hissiyhteys Kampin luolastoihin mistä pääsy mm. kauppakeskukseen ja rautatieasemalle.
Kiinteistön palveluina mm. aulapalvelut, lounasravintola, kokoustilat sekä kuntosali. Autohallista on vuokrattavissa pysäköintipaikkoja.
Kysy rohkeasti lisätietoja ja sovitaan käynti kohteella jo tänään!
Hissi
Hausala Oy
Erkkilänkatu 11, 33100 Tampere
Näytä puhelinnumero
050 472 7077
Mika Savikko
Näytä puhelinnumero
050 472 7077
Mikko Ranta
Näytä puhelinnumero
050 360 6500
