Vuokrataan toimistotilat - Helsinki
Tukkutorinkuja 5, Kalasatama, 00580 Helsinki #10834127
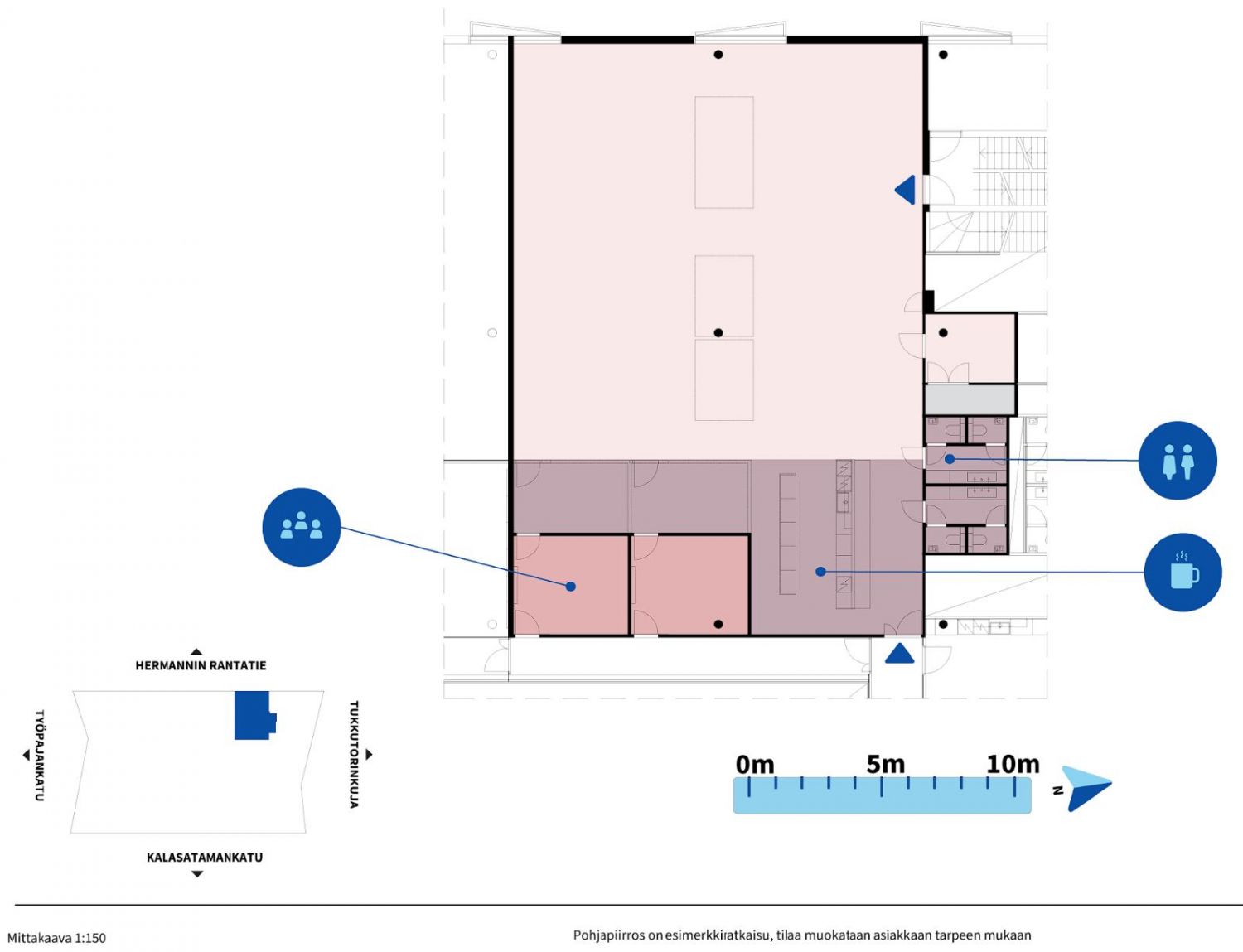
Vuokrataan Helsingin Kalasatamasta kuudennen kerroksen 371 m² toimistotila.
Toimisto koostuu avotilasta, työ-/neuvotteluhuoneista sekä erillisestä keittiöllisestä taukotilasta. Tilaa voidaan muokata tarpeiden mukaisesti.
Keskeisen sijaintinsa ansiosta kiinteistöön on helppo saapua ja kaikki Kalasataman palvelut ovat lähettyvillä. Kalasataman metroasemalle on vain lyhyt kävelymatka.
Kiinteistön palveluina mm. aulapalvelut, lounasravintola, kokoustilat sekä auditorio. Autohallista on vuokrattavissa pysäköintipaikkoja ja sähköautojen latauskin onnistuu.
Kysy rohkeasti lisätietoja ja sovitaan käynti kohteella jo tänään!
Hissi
Hausala Oy
Erkkilänkatu 11, 33100 Tampere
Näytä puhelinnumero
050 472 7077
Mika Savikko
Näytä puhelinnumero
050 472 7077
Mikko Ranta
Näytä puhelinnumero
050 360 6500
