Vuokrataan toimistotilat - Tampere
Finlaysoninkatu 5, Keskusta, 33210 Tampere #10834111
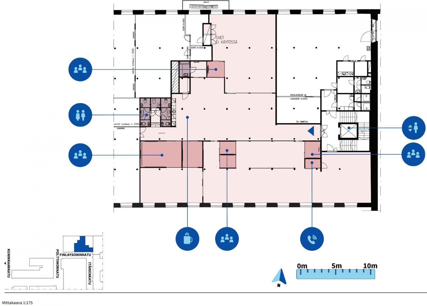
Vuokrataan Tampereen keskustasta Finlaysonin alueelta kolmannen kerroksen 548 m² toimistotila.
Toimisto koostuu avotilasta, työ-/neuvotteluhuoneista sekä erillisestä keittiöllisestä taukotilasta. Tilaa voidaan muokata tarpeiden mukaisesti.
Keskeisen sijaintinsa ansiosta kiinteistöön on helppo saapua ja kaikki keskustan palvelut ovat lähettyvillä. Ratikka ja bussit kulkevat aivan kiinteistön läheisyydessä, ja Tampereen rautatieasemalle on vain lyhyt kävelymatka.
Kysy rohkeasti lisätietoja ja sovitaan käynti kohteella jo tänään!
Hissi
Hausala Oy
Erkkilänkatu 11, 33100 Tampere
Näytä puhelinnumero
050 472 7077
Mikko Ranta
Näytä puhelinnumero
050 360 6500
Mika Savikko
Näytä puhelinnumero
050 472 7077
