Vuokrataan toimistotilat - Helsinki
Bulevardi 7, Kamppi, 00120 Helsinki #10834088
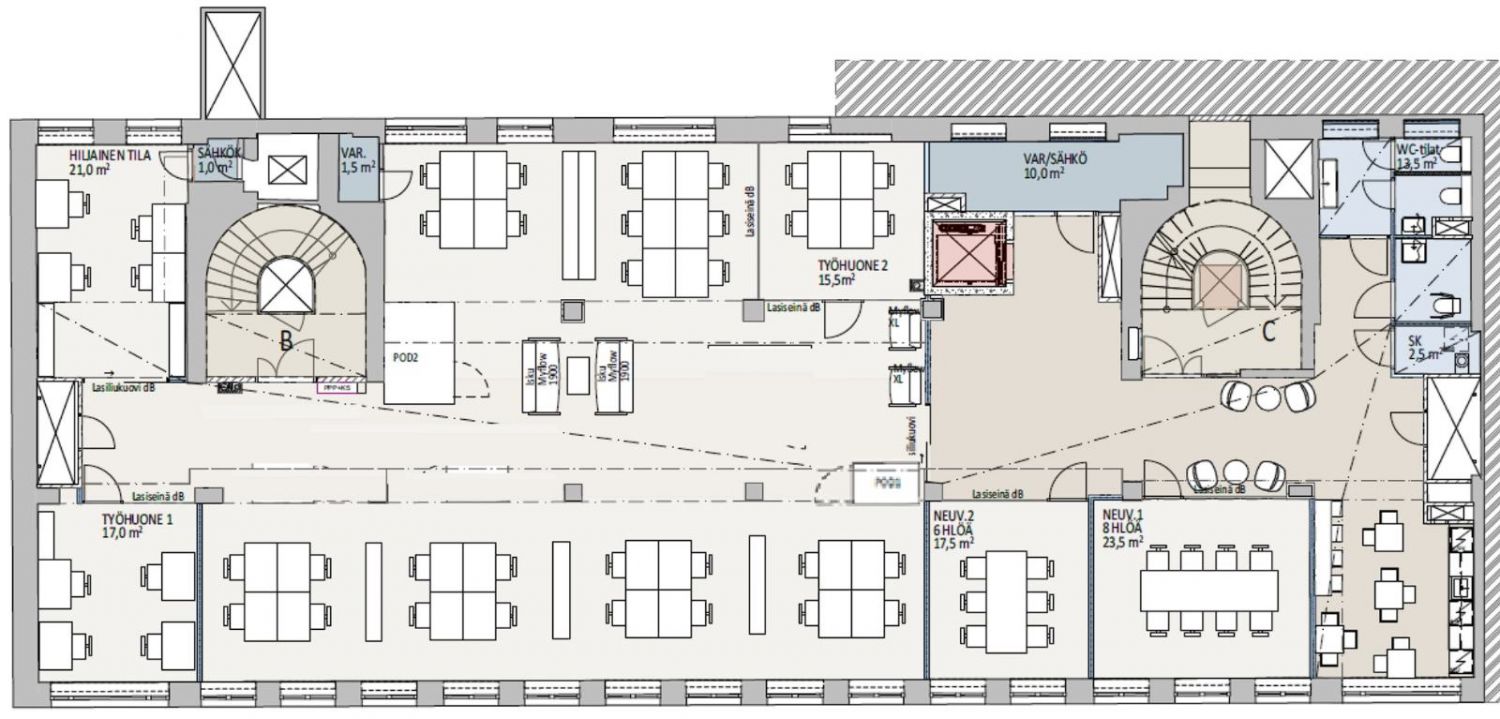
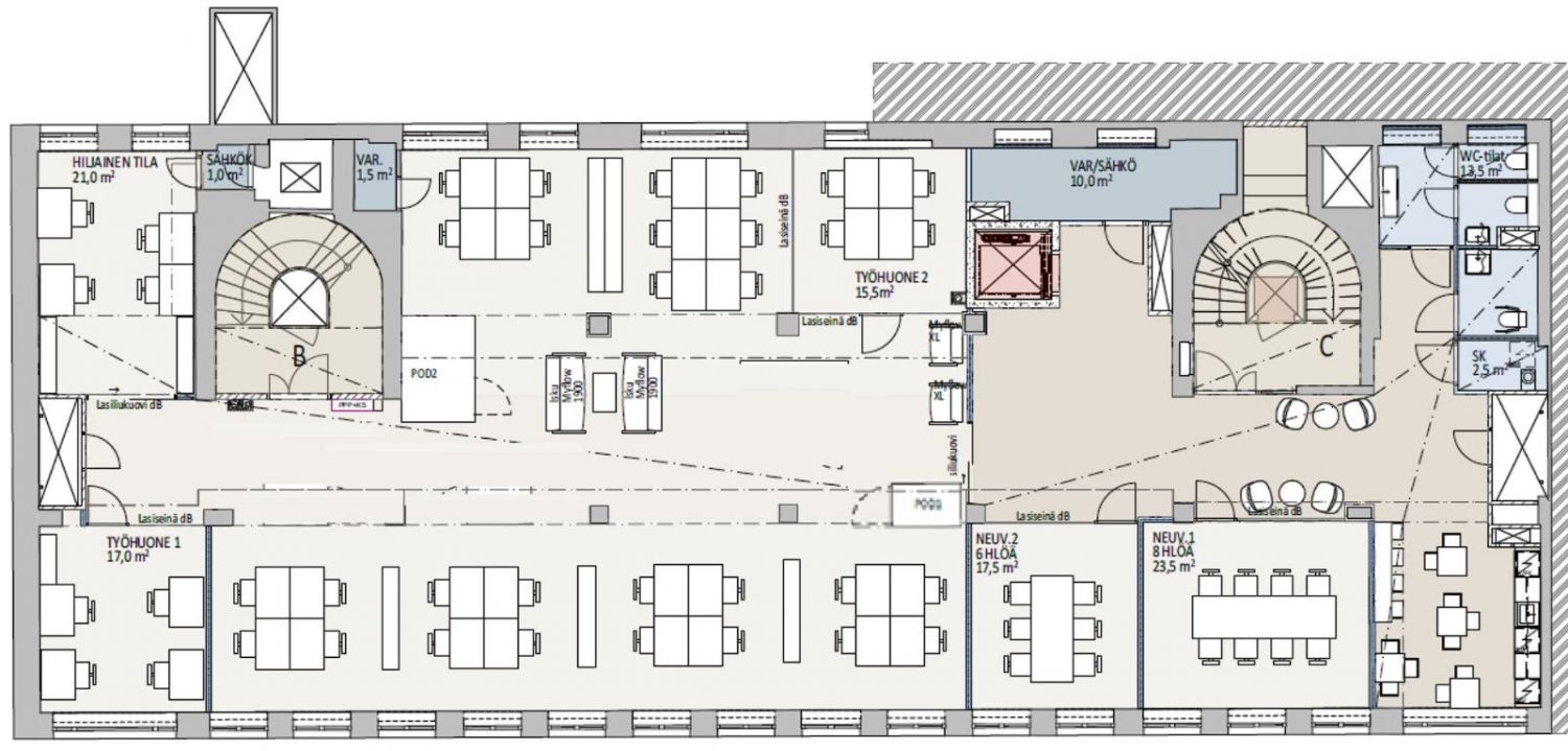
Vuokrataan Helsingin Kampista neljännen kerroksen 401 m² toimistotila.
Kiinteistö valmistui mittavasta remontista vuonna 2022. Toimistotila on remontoitu ja se viimeistellään vuokralaisen tarpeen mukaisesti.
Keskeisen sijaintinsa ansiosta kiinteistöön on helppo saapua ja kaikki Kampin palvelut ovat lähettyvillä. Raitiovaunut kulkevat aivan kiinteistön kupeessa, ja Kampin metro- sekä bussiasemalle on vain lyhyt kävelymatka.
Kiinteistön palveluina mm. kahvila, parkkihalli ja polkupyöräparkki.
Kysy rohkeasti lisätietoja ja sovitaan käynti kohteella jo tänään!
Hissi
Hausala Oy
Erkkilänkatu 11, 33100 Tampere
Näytä puhelinnumero
050 472 7077
Mika Savikko
Näytä puhelinnumero
050 472 7077
Mikko Ranta
Näytä puhelinnumero
050 360 6500
