Vuokrataan toimistotilat - Jyväskylä
Kauppakatu 28, Keskusta, 40100 Jyväskylä #10834028
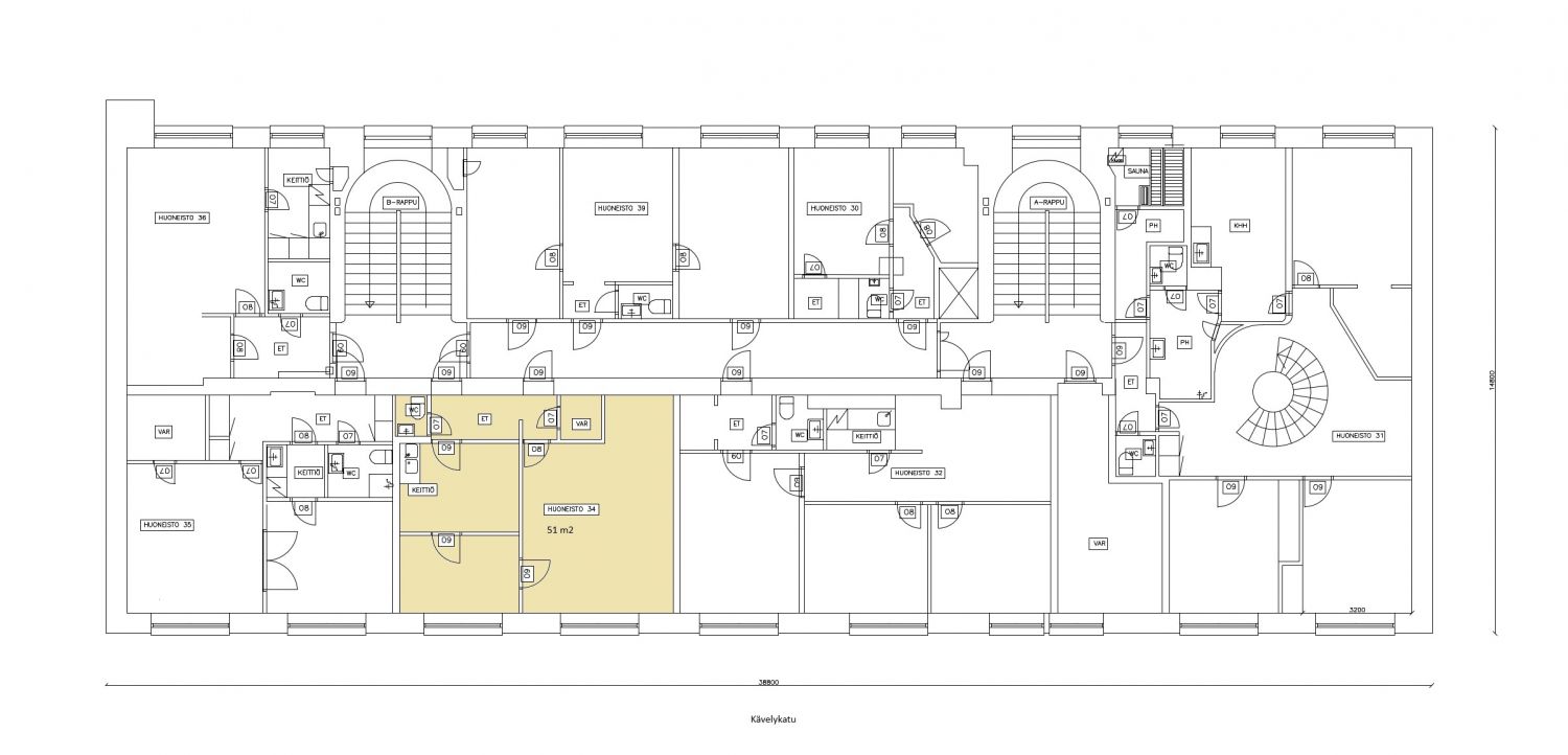
Tyylikkäästi remontoitu toimistotila Jyväskylän ydinkeskustasta
Osoite
Kauppakatu 28, 40100 Jyväskylä
Tilatyyppi
Toimistotilaa
51 m2
Vuokra
867.00
Vuosivuokra
10404.00
Muuta
Vuokrataan heti vapaa, neljännen kerroksen 51 m2, tyylikkäästi remontoitu toimistotila Jyväskylän keskustasta. Oma keittiö ja wc, kaksi erillistätyötilaa. Ikkunat kävelykadun suuntaan. Vuokra 867 eur/kk + alv. Soita ja kysy lisätietoja!
Vapautuu
Kysy
Kerros
4
Ota yhteyttä
Infonia Oy
Kauppakatu 18 A, 40100 Jyväskylä
Näytä puhelinnumero
+358503523143
Katja Shemeikka
Pyydä lisätietoa
