Vuokrataan toimistotilat - Helsinki
Tyynenmerenkatu 6, Jätkäsaari, 00220 Helsinki #10833967
Huipputyylikästä ja modernia toimistotilaa vanhassa makasiinirakennuksessa loistosijainnilta Jätkäsaaresta.
Lars Sonckin suunnittelema ja vuonna 1924 valmistunut L3 Makasiini on Jätkäsaaren vanhin rakennus. Rakennuksen päädyssä oleva nosturi jää muistoksi alueen ja kiinteistön aiemmasta käytöstä.
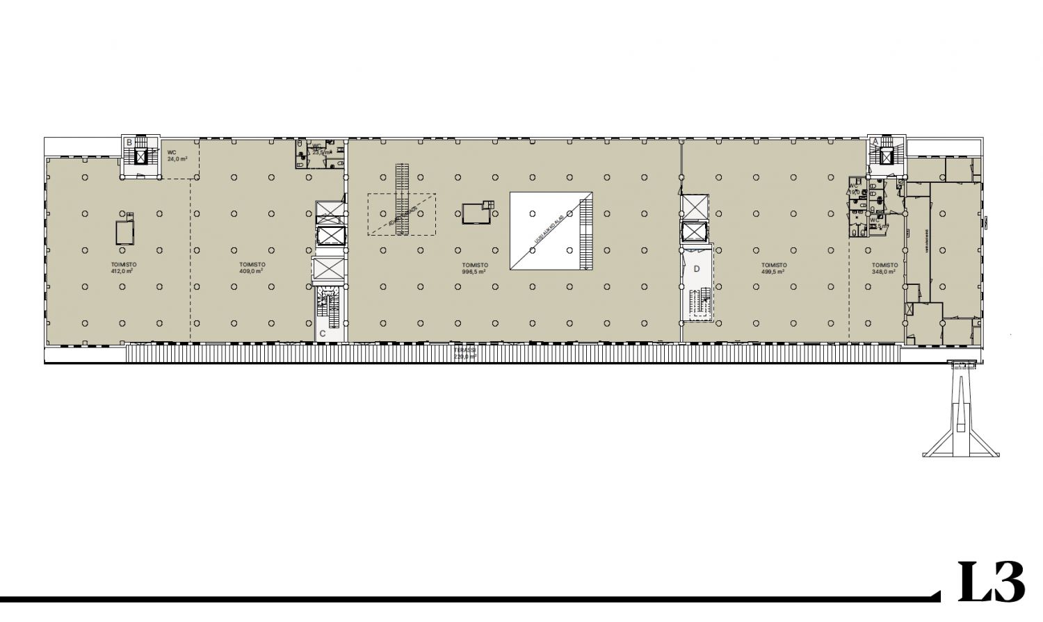
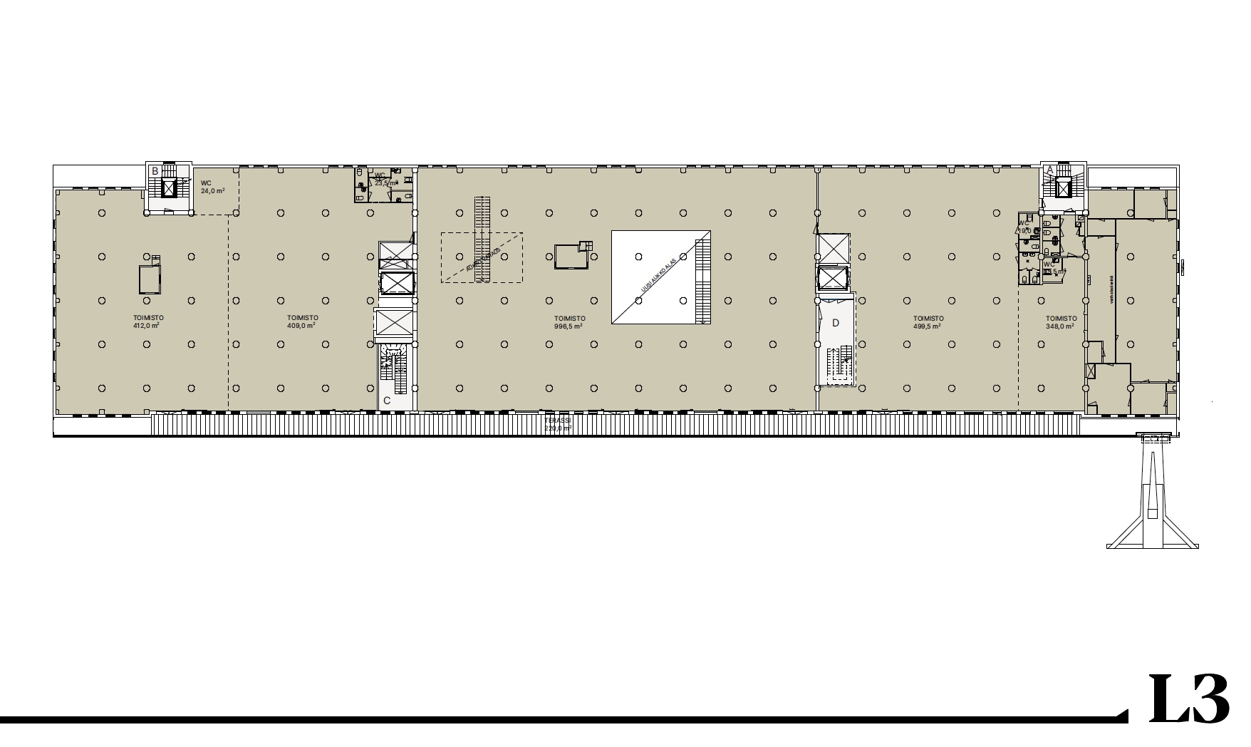
Rakennuksen 2. kerroksessa on vuokrattavana toimistotilaa jopa 3 000 m2 asti. Oma terassi ja näyttävä sisäänkäynti!
L3 näkee uuden elämän seuraavien 100 vuoden aikana nykyaikaisilla ja ajantasaisilla ympäristöystävällisillä teknisillä ratkaisuilla. Muun muassa kaukolämpö ja -jäähdytys, energian kierrätys, aurinkopaneelit ja vedensäästötoimenpiteet, sekä hiilineutraali jätehuolto
Näkyvällä paikalla
Jaettavissa
Hissi
ScanReal Oy LKV
Opus Business Park
Hitsaajankatu 24
00810 Helsinki
info@scanreal.fi
Puh:
Näytä puhelinnumero
020 730 8830
Sopivat toimitilat yhdellä otolla!
Kartoitamme toimitilatarpeesi ja etsimme yrityksellesi parhaiten sopivat vapaat toimitilat. Koska vuokranantajat maksavat palvelumme, on tämä yrityksellesi veloituksetonta.
OTA YHTEYTTÄ - SOVI NÄYTTÖ!
Kaikki kohteemme eivät ole netissä, kerro tilatarpeesi niin kartoitamme vaihtoehdot.
Palvelumme on tilanhakijalle ilmainen
