Vuokrataan toimistotilat - Espoo
Niittytaival 13, Niittykumpu, 02200 Espoo #10833925
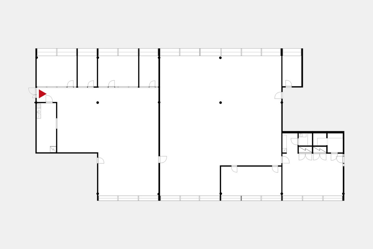
Niittytaival 13 on vuonna 2002 valmistunut toimistotalo Länsiväylän varrella. Hyväkuntoinen kiinteistö tarjoaa valoisaa toimitilaa erikokoisille yrityksille viihtyisässä työympäristössä. Valoisuuden lisäksi kohteen vahvuuksiin kuuluu hyvä sijainti, sillä esimerkiksi Länsiväylää pitkin Helsingin keskustaan ajaa vain noin 15 minuutissa, eikä kauppakeskus Isoon Omenaankaan kestä autolla kuin vajaat 10 minuuttia. Kiinteistön kattavaan palvelutarjontaan kuuluvat omasta takaa lounasravintola, catering-palvelut, sauna, siivouspalvelu, pukeutumis- ja pesutilat työmatkapyöräilijöille sekä vuokrattavia neuvottelutiloja. Lähialueen palvelutarjonta on myös erittäin kattava.
Me Croisettella autamme teitä löytämään teille parhaat tilat! Olemme puolueettomia asiantuntijoita ja tunnemme toimitilamarkkinat, talot sekä tilat vankalla kokemuksella. Meillä on välityksessä kaikki toimitilat ja tiedämme niiden alustavat vuokratasot.
Tehtävämme on tehdä toimitilahaustanne onnistunutta ja helppoa. Saamme palkkiomme kiinteistönomistajalta, joten sinulle palvelumme on täysin maksuton. Jos kiinnostuit, ota yhteyttä sähköpostitse osoitteeseen vuokraus@croisette.fi tai soita numeroon +358 4 00585857.
Croisette Real Estate Partner
Erottajankatu 5 A 6, 00130 Helsinki
Näytä puhelinnumero
+358 400 585 857
Croisette Vuokraus
Näytä puhelinnumero
+358400585857
