Vuokrataan toimistotilat - Helsinki
Siltasaarenkatu 12, Hakaniemi, 00530 Helsinki #10833786
Laadukas 307 m² toimisto paraatipaikalla Hakaniemessä.
Osoite
Siltasaarenkatu 12, 00530 Helsinki
Tilatyyppi
Toimistotilaa
307 m2
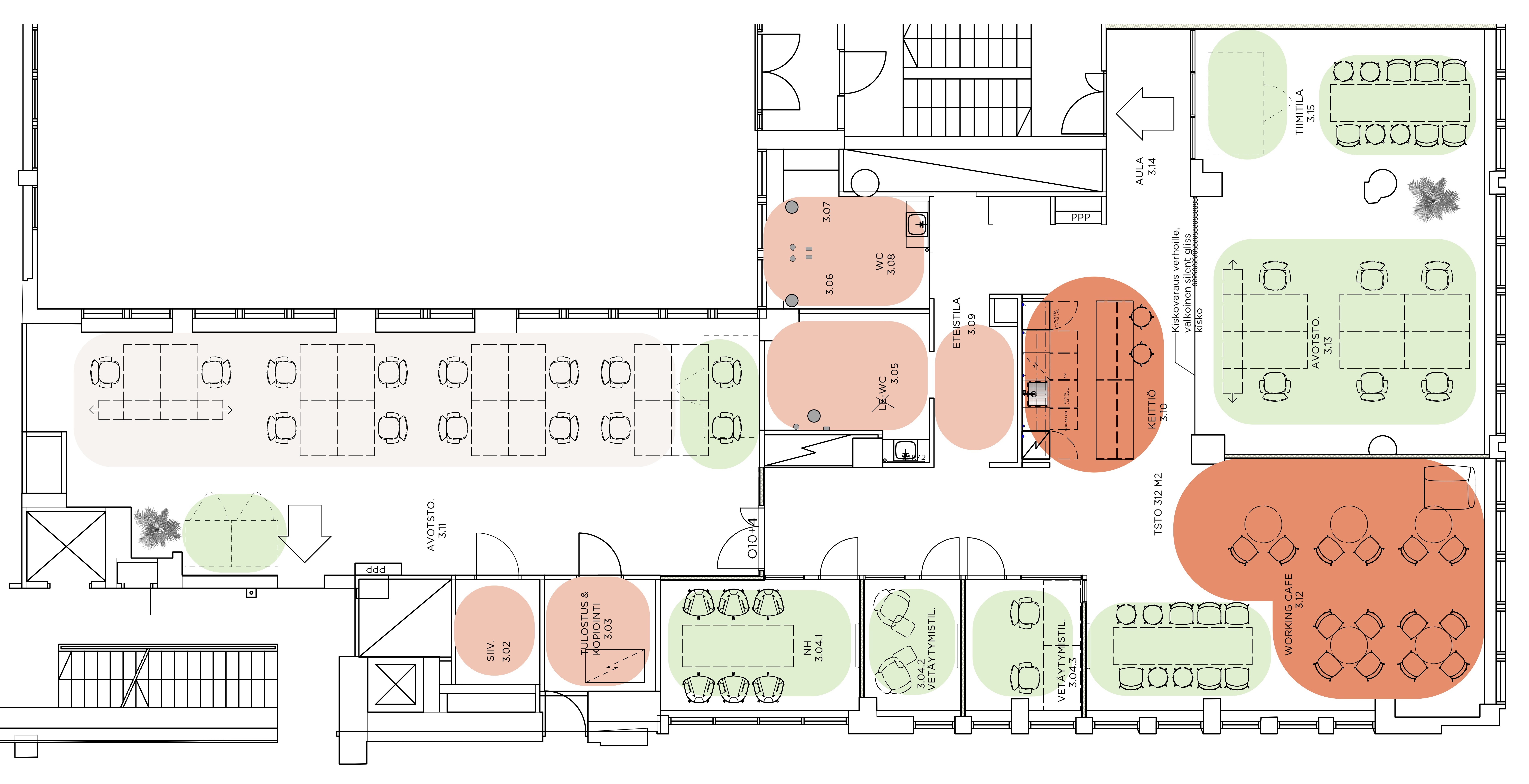
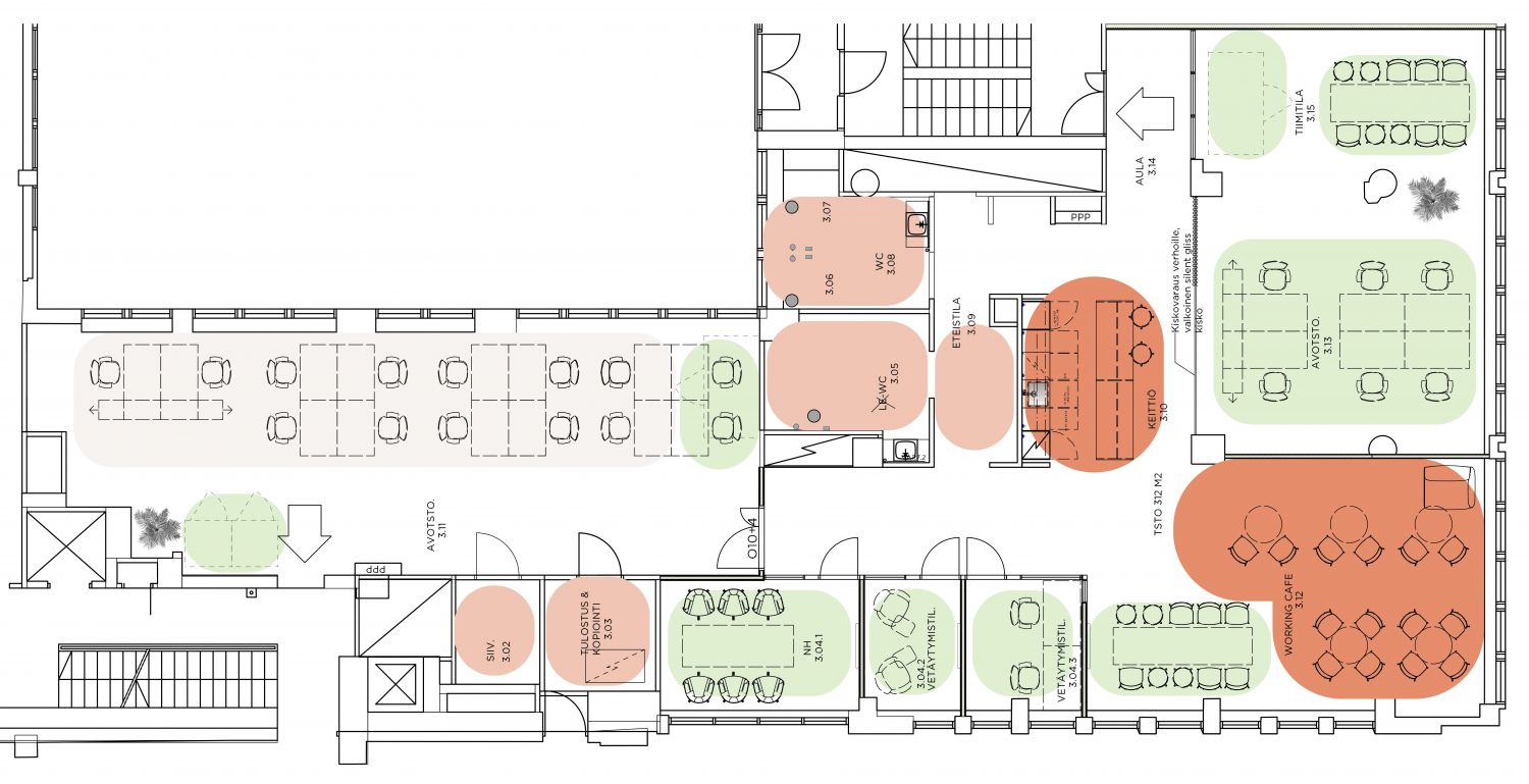
Pohjapiirros
Kiinteistö
Tila on upea ja täysin remontoitu Aina Valmis -konseptin mukaisesti laadukkailla ja vastuullisilla materiaaleilla ja toimiva tilaratkaisu vastaa nykytyöelämän vaatimuksia.
Toimistoa ympäröivät Hakaniemen monet palvelut ja mitä parhaimmat liikenneyhteydet – tavoitteena onkin mahdollistaa koko henkilöstölle hyvä ja sujuva arki.
Työpisteiden lukumäärä perustuu havainnekuvaan tehtyyn luonnokseen. Käyttäjä voi itse sijoittaa tilaan haluamansa määrän työpisteitä.
Paasitalo on uudistettu kiinteistön alkuperäistä henkeä kunnioittaen tämän
päivän tarpeisiin.
Mahdollisuus vuokrata pysäköintitilaa Merihaan pysäköintihallista.
Toimistoa ympäröivät Hakaniemen monet palvelut ja mitä parhaimmat liikenneyhteydet – tavoitteena onkin mahdollistaa koko henkilöstölle hyvä ja sujuva arki.
Työpisteiden lukumäärä perustuu havainnekuvaan tehtyyn luonnokseen. Käyttäjä voi itse sijoittaa tilaan haluamansa määrän työpisteitä.
Paasitalo on uudistettu kiinteistön alkuperäistä henkeä kunnioittaen tämän
päivän tarpeisiin.
Mahdollisuus vuokrata pysäköintitilaa Merihaan pysäköintihallista.
Kulkuyhteydet
Metroasema 100 m, Raitiovaunupysäkki alle 100 m, Bussipysäkki alle 100 m, Juna-asema 1 km, Lentoasema 17,9 km
Vapautuu
Heti
Rakennusvuosi
1952
Saneerausvuosi
2006
Kerros
3 / 8
Energiatehokkuusluokka
Ei lain edellyttämää energiatodistusta
Näkyvällä paikalla
Hissi
Ota yhteyttä
ScanReal Oy LKV
Opus Business Park
Hitsaajankatu 24
00810 Helsinki
info@scanreal.fi
Puh:
Näytä puhelinnumero
020 730 8830
Sopivat toimitilat yhdellä otolla!
Kartoitamme toimitilatarpeesi ja etsimme yrityksellesi parhaiten sopivat vapaat toimitilat. Koska vuokranantajat maksavat palvelumme, on tämä yrityksellesi veloituksetonta.
OTA YHTEYTTÄ - SOVI NÄYTTÖ!
Kaikki kohteemme eivät ole netissä, kerro tilatarpeesi niin kartoitamme vaihtoehdot.
Palvelumme on tilanhakijalle ilmainen
Pyydä lisätietoa
