Vuokrataan liiketilat - Rovaniemi
Rovakatu 14, Keskusta Rovaniemi, 96100 Rovaniemi #10833718
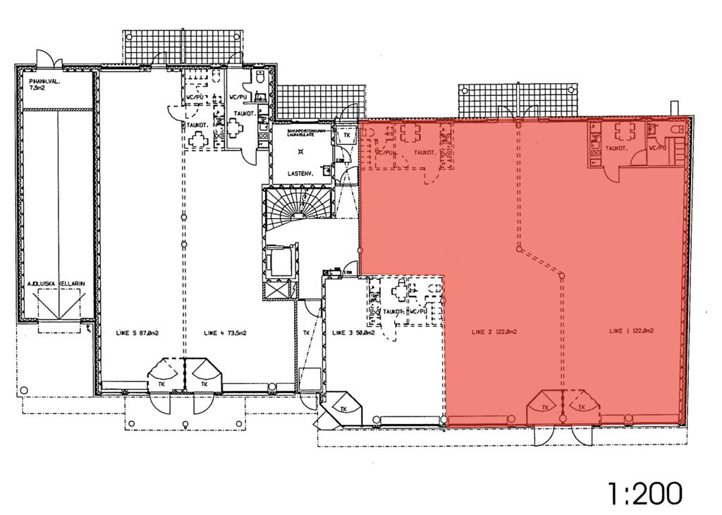
Vuokrattavana liiketilaa Rovaniemen keskustassa.
Tämä 244 m² liiketila sijaitsee asuintalon kivijalassa. Tilaan kuuluu omat sosiaalitilat. Ei sovellu ravintolakäyttöön. This premise is not suitable for a restaurant or a cafeteria. Vapautuminen 1.11.2025.
Rovakatu 14 on asuin- ja liikekiinteistö Rovaniemen keskustan alueella. Kiinteistö on valmistunut vuonna 2000 ja se koostuu 35 asuinhuoneistosta sekä liiketilasta. Kiinteistön lähellä sijaitsee Keskuskenttä ja Kauppakeskus Sampokeskukseen sekä Ounasjoen rantaan on alle puolen kilometrin matka.
Kysy lisää numerosta 044 723 4700 tai info@bref.fi. Palvelumme on tilanhakijoille ilmainen.
Bureau Real Estate Finland Oy
Lars Sonckin kaari 16, 02600 Espoo
Näytä puhelinnumero
0447234700
Bureau Real Estate Finland Oy
https://www.bref.fi