Vuokrataan liiketilat - Kaarina
Asianajajankatu 1, 20780 Kaarina #10833538
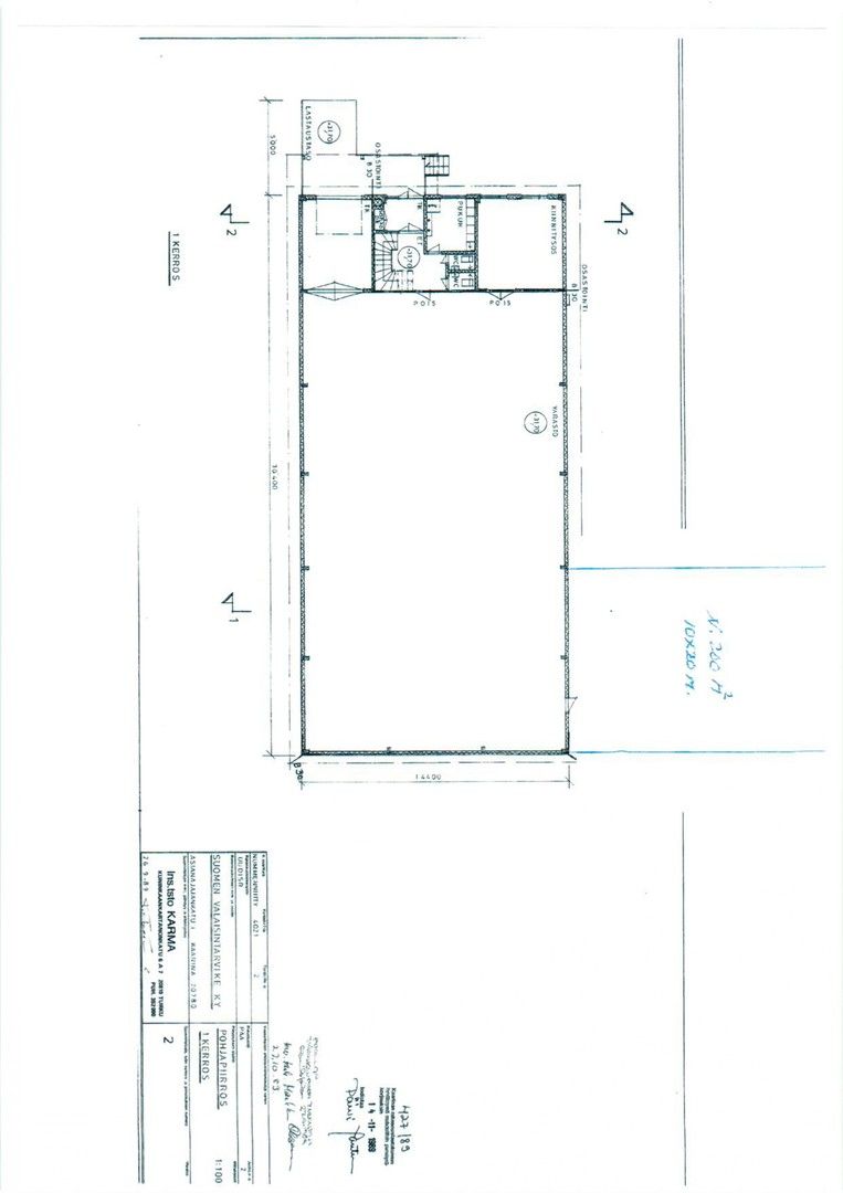
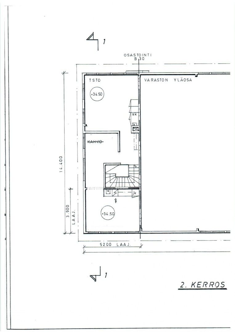
Kaarinassa Asianajajankatu 1, halli 508 m2, Korkea, 2 nosto-ovea, lastaus laituri,140 m2 + 158m² työtila+toimisto+sos.tila, 2 wc, iso piha.
Kiinteistöön voidaan tarvittaessa tehdä lisäsiipi 200m² ja sen valmistumisaika on n. 7kk
Tilaisuus Vuokrata tilava liiketila Kaarinan Asianajajankadulta! Tämä 508 neliömetrin tila sijaitsee katutasossa, kahden kerroksen rakennuksessa, ja on valmis vastaanottamaan uudet vuokralaiset sopimuksen mukaan.
Sijainti on erinomainen – lähellä Kaarinan kaupungin keskustaa, mikä takaa hyvät kulkuyhteydet ja asiakasvirrat. Tila tarjoaa runsaasti mahdollisuuksia monenlaisille kaupallisille toimille. Kaarinan alue on tunnettu vireästä yritystoiminnastaan ja hyvästä saavutettavuudestaan, mikä tekee tästä tilasta erityisen houkuttelevan.
Tartu tilaisuuteen ja tee tästä tilasta juuri sinun yrityksesi uusi koti !
Heti vapaa !
Palvelumme on maksuton ja etsimme juuri Teille sopivan tilan laajasta tilavalikoimastamme.
Tiedistelut ja esittelyt Jouko Reijonen 0400 570098 jouko.reijonen@tsvv.fi
