Vuokrataan liiketilat - Helsinki
Tyynenmerenkatu 3, Jätkäsaari, 00220 Helsinki #10833464
Valoisa katutason toimitila Jätkänsaaresta!
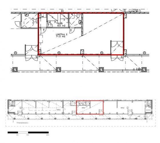
Nyt vuokrattavana heti vapaa, 71,5 m² kokoinen toimitila näkyvällä paikalla Helsingin Jätkänsaaresta. Tämä katutason tila sijaitsee asuin- ja liikekiinteistön kivijalassa, hyvien kulkuyhteyksien ja urbaanin elämän keskellä.
Kohteen sijainti on erinomainen. Lyhyen kävelymatkan päässä löytyvät niin raitiovaunu- ja bussipysäkit kuin Ruoholahden metroasema. Tila avautuu vilkkaalle kadulle, mikä tarjoaa hyvän näkyvyyden ja saavutettavuuden niin asiakkaille kuin työntekijöillekin. Keskustan palvelut, kulttuuritarjonta ja tiivis kaupunkirakenne ovat kaikki käden ulottuvilla, mikä tekee arjesta sujuvaa ja tehokasta.
Tämä toimistotila sopii erinomaisesti pienelle yritykselle tai palveluntarjoajalle, joka arvostaa keskeistä sijaintia ja helppoa saavutettavuutta. Tartu tilaisuuteen ja tule paikan päälle tutustumaan. Varaa esittely jo tänään!
Katutasossa
Näkyvällä paikalla
Hausala Oy
Erkkilänkatu 11, 33100 Tampere
Näytä puhelinnumero
050 472 7077
Mikko Ranta
Näytä puhelinnumero
050 360 6500
Mika Savikko
Näytä puhelinnumero
050 472 7077
