Vuokrataan toimistotilat - Helsinki
Korkeavuorenkatu 30, Kaartinkaupunki, 00130 Helsinki #10833462
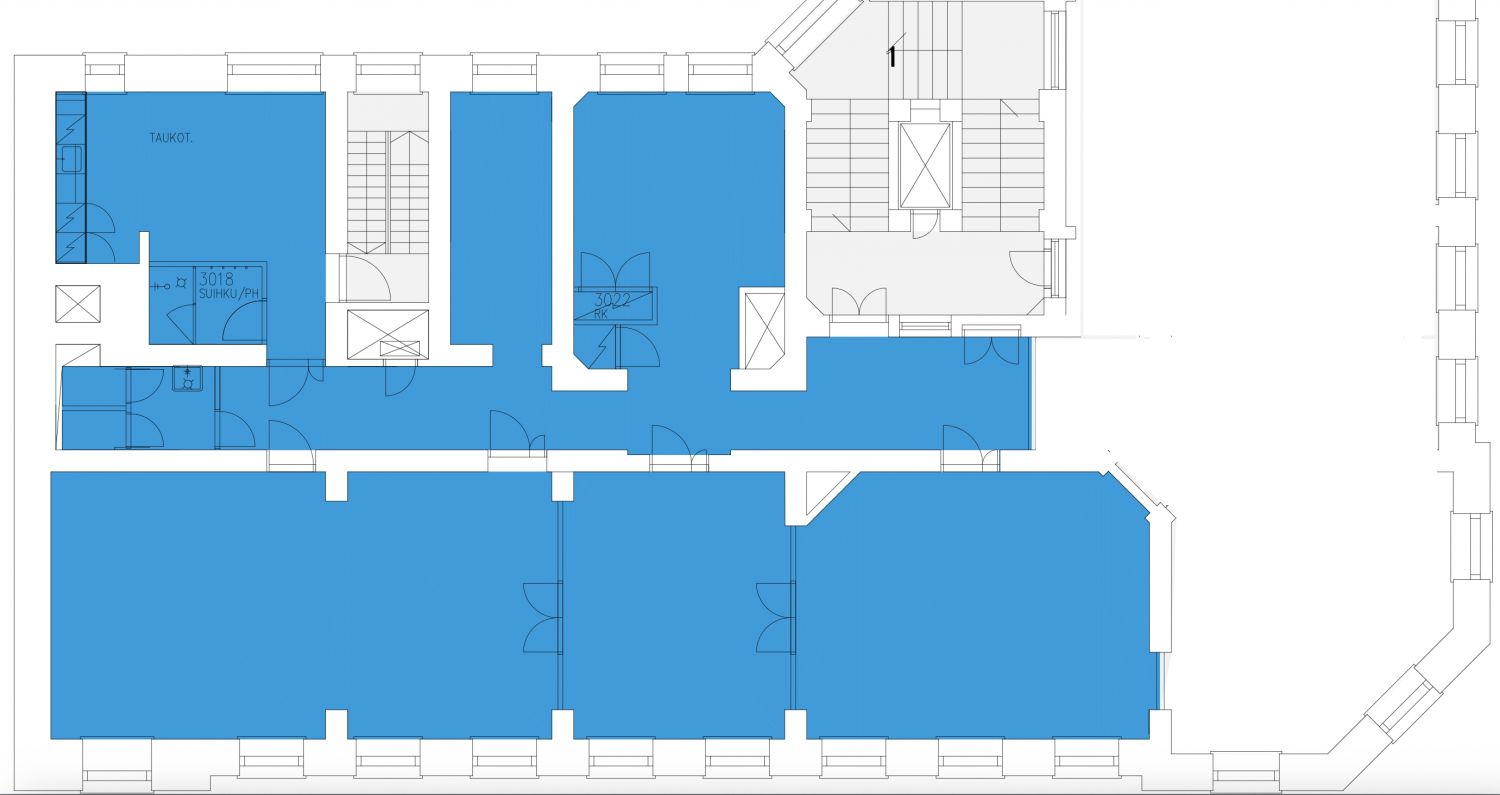
Edustava 213,5 m² toimistotila Kaartinkaupungissa.
Osoite
Korkeavuorenkatu 30, 00130 Helsinki
Tilatyyppi
Toimistotilaa
213,5 m2
Pohjapiirros
Kiinteistö
Upea toimistotila edustavalla sijainnilla.
Ludviginkadun puoleinen osa toimitilasta on lasiseinillä kolmeen osaan jaettua avotyötilaa.
Korkeat huoneet ja isot ikkunat luovat valoisiin työtiloihin avaran tunnelman. Sisäpihan puolella on taukotila/keittiö ja neuvotteluhuone.
Tässä toimitilassa on myös oma suihku & pukeutumistila.
Vuonna 1885 rakennettu arvokiinteistö sijaitsee Korkeavuorenkadun ja Ludviginkadun kulmassa, kivenheiton päässä ydinkeskustasta. Hyvät julkiset yhteydet.
Metroasema 700 m, Raitiovaunupysäkki 200 m, Bussipysäkki 200 m, Juna-asema 700 m, Lentoasema 20,1 km
Ludviginkadun puoleinen osa toimitilasta on lasiseinillä kolmeen osaan jaettua avotyötilaa.
Korkeat huoneet ja isot ikkunat luovat valoisiin työtiloihin avaran tunnelman. Sisäpihan puolella on taukotila/keittiö ja neuvotteluhuone.
Tässä toimitilassa on myös oma suihku & pukeutumistila.
Vuonna 1885 rakennettu arvokiinteistö sijaitsee Korkeavuorenkadun ja Ludviginkadun kulmassa, kivenheiton päässä ydinkeskustasta. Hyvät julkiset yhteydet.
Metroasema 700 m, Raitiovaunupysäkki 200 m, Bussipysäkki 200 m, Juna-asema 700 m, Lentoasema 20,1 km
Vapautuu
Heti
Kerros
3 / 5
Energiatehokkuusluokka
D
Näkyvällä paikalla
Hissi
Ota yhteyttä
ScanReal Oy LKV
Opus Business Park
Hitsaajankatu 24
00810 Helsinki
info@scanreal.fi
Puh:
Näytä puhelinnumero
020 730 8830
Sopivat toimitilat yhdellä otolla!
Kartoitamme toimitilatarpeesi ja etsimme yrityksellesi parhaiten sopivat vapaat toimitilat. Koska vuokranantajat maksavat palvelumme, on tämä yrityksellesi veloituksetonta.
OTA YHTEYTTÄ - SOVI NÄYTTÖ!
Kaikki kohteemme eivät ole netissä, kerro tilatarpeesi niin kartoitamme vaihtoehdot.
Palvelumme on tilanhakijalle ilmainen
Pyydä lisätietoa
