Vuokrataan toimistotilat - Helsinki
Vuorikatu 20, Keskusta, 00100 Helsinki #10833452
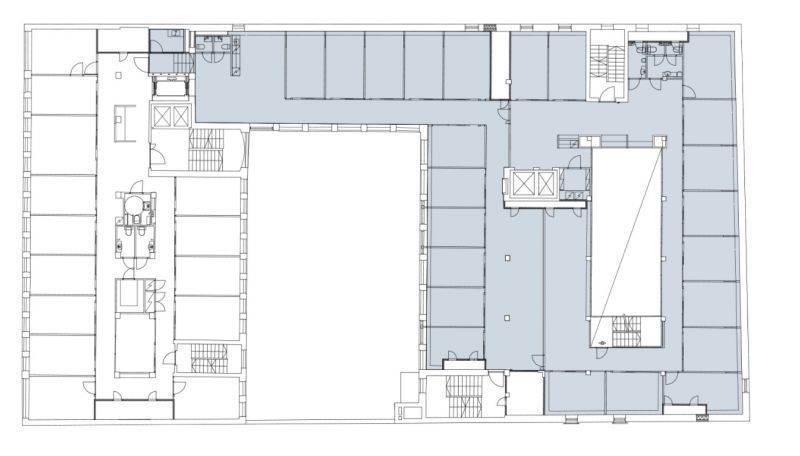
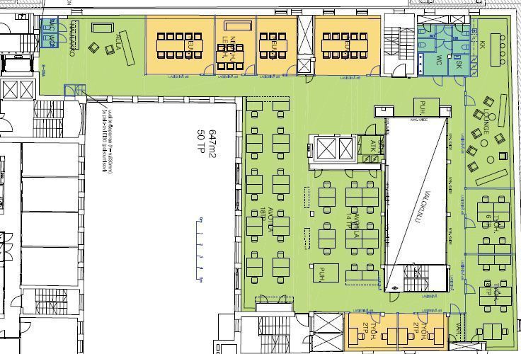
Toimiva 645 m² toimisto Helsingin ytimessä.
Osoite
Vuorikatu 20, 00100 Helsinki
Tilatyyppi
Toimistotilaa
645 m2
Pohjapiirros
Kiinteistö
Heti muuttovalmis moderni toimistotila. Tähän toimitilaan saa työpisteet n. 40-50 henkilölle ja lisäksi runsaasti ryhmätyö- ja neuvottelutiloja.
Loistava sijainti lähellä keskustan palveluita.
Näyttävä arvokiinteistö sijaitsee n. 50 metriä Yliopiston metroaseman sisäänkäynnistä ja 3 min kävelyn päässä rautatieasemalta Helsingin Kaisaniemessä.
Helsingin Vuorikatu 20:ssa sijaitseva kiinteistö on arkkitehti Jarl Eklundin (1876-1962) suunnittelema ja valmistui vuonna 1939. Rakennuksen rakennutti lääketukkuyhtiö Tampereen Rohdos Oy Helsingin sivutoimipisteeksi. Nykyisin yhtiö tunnetaan parhaiten nimella Tamro.
Tamron myytyä kiinteistön vuonna 1970 Suomen valtiolle se muutettiin laajassa peruskorjauksessa vuosina 1971-73 Helsingin yliopiston kemian laitoksen käyttöön. Vuonna 2005 tehtiin toinen suuri peruskorjaus, joilloin rakennus muutettiin nykyaikaiseen toimistokäyttöön soveltuvaksi. Viimeisin toimisto ja ravintolan saneeraus vuonna 2015.
Vuorikadulta on suora yhteys rautatieasemalle, metrotunnelin kauppoihin ja ravintoloihin sekä Yliopistonkadulle.
Kiinteistössä oma pysäköintihalli, 16 autopaikkaa. Joitakin vapaita paikkoja vuokrattavana. EuroPark Kluuvi 100 m kävelymatkan päässä. Mahdollisuus lyhytaikaiseen kadunvarsipysäköintiin.
Kiinteistössä oma lounasravintola. Helsingin ydinkeskusta, keskustan ravintolat ja palvelut kävelyetäisyydellä. Täältä on lyhyt matka mihin tahansa Helsingin keskustassa.
Loistava sijainti lähellä keskustan palveluita.
Näyttävä arvokiinteistö sijaitsee n. 50 metriä Yliopiston metroaseman sisäänkäynnistä ja 3 min kävelyn päässä rautatieasemalta Helsingin Kaisaniemessä.
Helsingin Vuorikatu 20:ssa sijaitseva kiinteistö on arkkitehti Jarl Eklundin (1876-1962) suunnittelema ja valmistui vuonna 1939. Rakennuksen rakennutti lääketukkuyhtiö Tampereen Rohdos Oy Helsingin sivutoimipisteeksi. Nykyisin yhtiö tunnetaan parhaiten nimella Tamro.
Tamron myytyä kiinteistön vuonna 1970 Suomen valtiolle se muutettiin laajassa peruskorjauksessa vuosina 1971-73 Helsingin yliopiston kemian laitoksen käyttöön. Vuonna 2005 tehtiin toinen suuri peruskorjaus, joilloin rakennus muutettiin nykyaikaiseen toimistokäyttöön soveltuvaksi. Viimeisin toimisto ja ravintolan saneeraus vuonna 2015.
Vuorikadulta on suora yhteys rautatieasemalle, metrotunnelin kauppoihin ja ravintoloihin sekä Yliopistonkadulle.
Kiinteistössä oma pysäköintihalli, 16 autopaikkaa. Joitakin vapaita paikkoja vuokrattavana. EuroPark Kluuvi 100 m kävelymatkan päässä. Mahdollisuus lyhytaikaiseen kadunvarsipysäköintiin.
Kiinteistössä oma lounasravintola. Helsingin ydinkeskusta, keskustan ravintolat ja palvelut kävelyetäisyydellä. Täältä on lyhyt matka mihin tahansa Helsingin keskustassa.
Vapautuu
Heti
Rakennusvuosi
1939
Saneerausvuosi
2019
Kerros
2 / 6
Energiatehokkuusluokka
Ei lain edellyttämää energiatodistusta
Näkyvällä paikalla
Hissi
Ota yhteyttä
ScanReal Oy LKV
Opus Business Park
Hitsaajankatu 24
00810 Helsinki
info@scanreal.fi
Puh:
Näytä puhelinnumero
020 730 8830
Sopivat toimitilat yhdellä otolla!
Kartoitamme toimitilatarpeesi ja etsimme yrityksellesi parhaiten sopivat vapaat toimitilat. Koska vuokranantajat maksavat palvelumme, on tämä yrityksellesi veloituksetonta.
OTA YHTEYTTÄ - SOVI NÄYTTÖ!
Kaikki kohteemme eivät ole netissä, kerro tilatarpeesi niin kartoitamme vaihtoehdot.
Palvelumme on tilanhakijalle ilmainen
Pyydä lisätietoa
