Vuokrataan varastotilat - Helsinki
Mekaanikonkatu 19, Herttoniemi, 00880 Helsinki #10833361
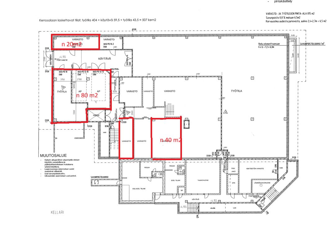
Vuokrataan Herttoniemessä n 40 m2 kellarivarastotilaa, ei sovellu työtilaksi. Korkeus n 2,2 m. Autolla pääsy ulko-ovelle. HUOM ! Katso pohjakuvaa, vapaa tila on rakennuksen keskellä oleva tila.
Kiinteistössä myös yksittäisiä toimistohuonetiloja vuokrattavana.
Yhteystiedot: p. 045 261 6555/Mika
Lisää kohteita: www.premises.fi
Kohteella ei ole lain edellyttämää energiatodistusta.Kerros: kellari
Osoite
Mekaanikonkatu 19, 00880 Helsinki
Tilatyyppi
Varastotilaa
40 m2
Kulkuyhteydet
Bussit ja Metro
Ota yhteyttä
CRE PREMISES
Puh. Näytä puhelinnumero 020 7290 710
Vantaankoskentie 14
01670 VANTAA
Pyydä lisätietoa
