Vuokrataan toimistotilat - Helsinki
Esterinportti 2, Pasila, 00240 Helsinki #10833339
Moderni ja tehokas 152,5 m² toimisto Pasilan ytimessä, Triplan vieressä
Osoite
Esterinportti 2, 00240 Helsinki
Tilatyyppi
Toimistotilaa
152,5 m2
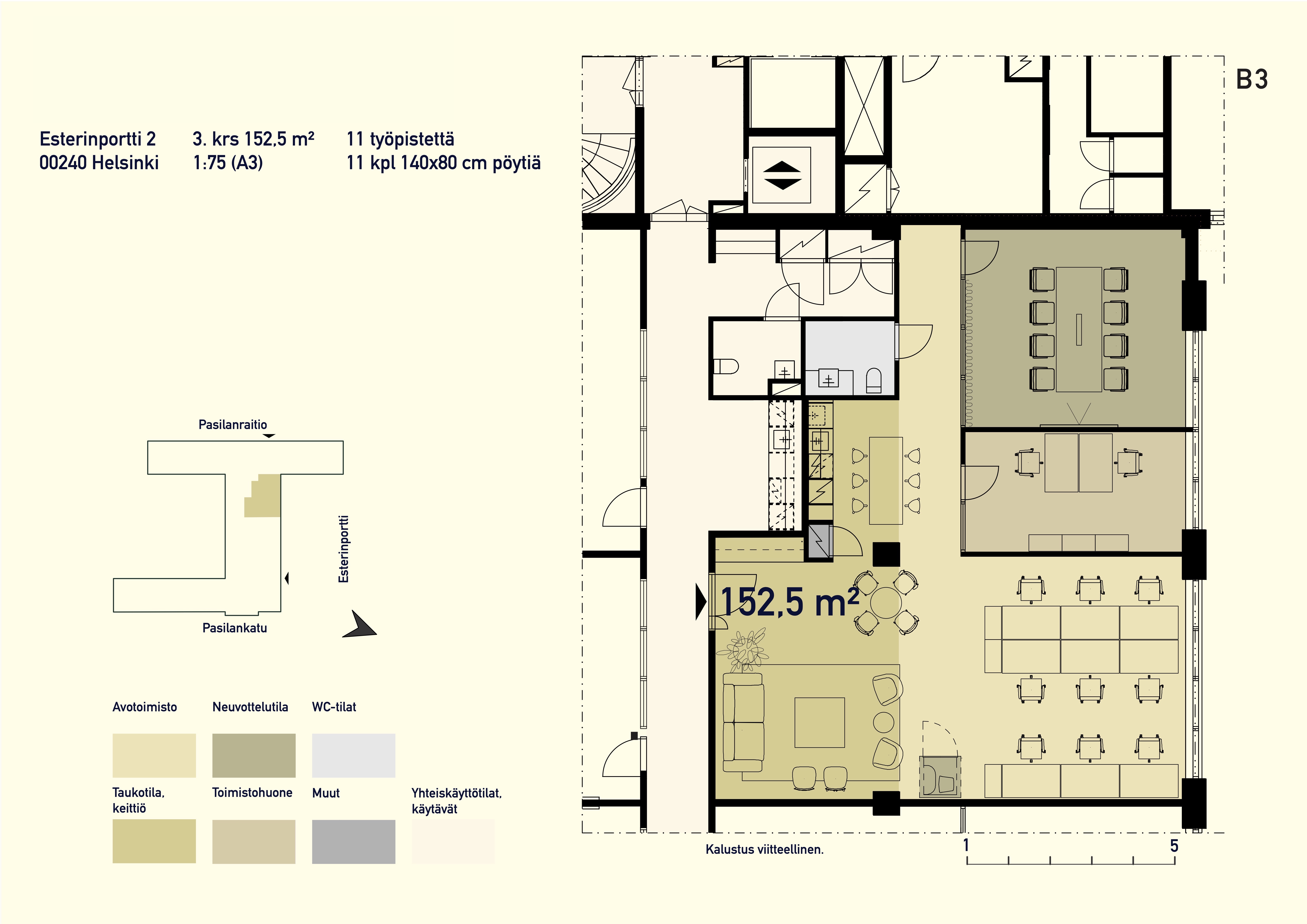
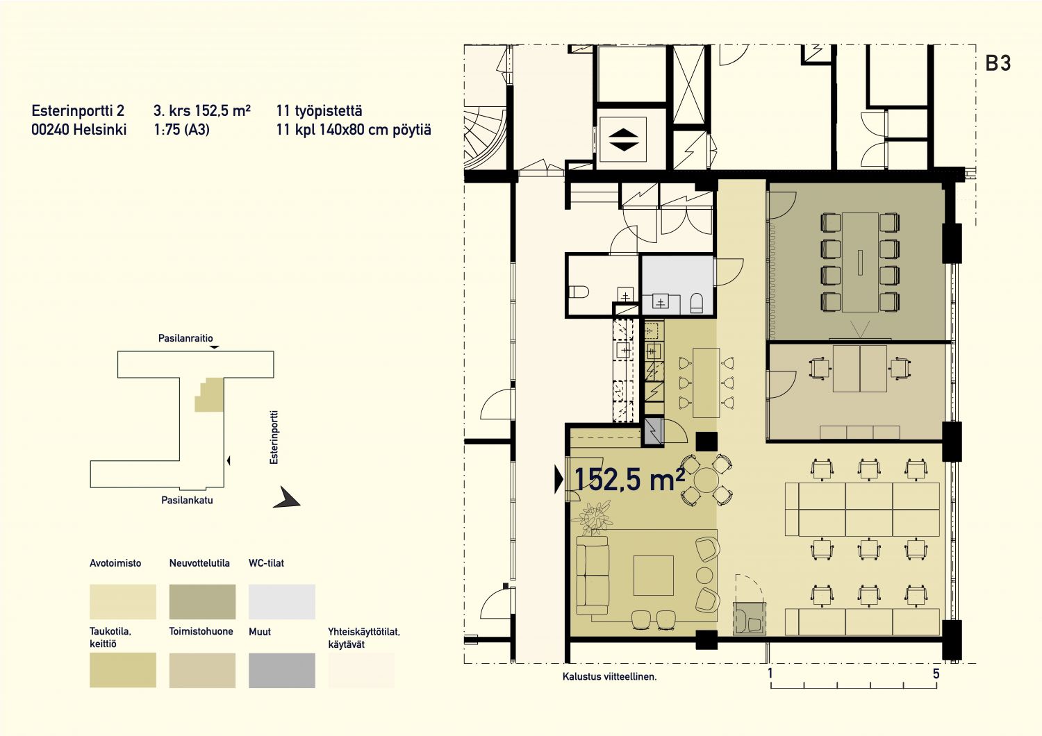
Pohjapiirros
Kiinteistö
Esterinportti 2:ssa, aivan Pasilan ytimessä, on vuokrattavana tehokas ja moderni 152,5 m² toimisto. Tila sijaitsee kiinteistön kolmannessa kerroksessa ja tarjoaa erinomaiset puitteet 11 työpisteelle. Toimistossa on valoisa avotila, yksi erillinen työhuone, neuvotteluhuone sekä viihtyisä taukotila keittiöllä. Kalustusratkaisut mahdollistavat tehokkaan työskentelyn niin tiimityössä kuin rauhallisissa palavereissa.
Kiinteistö on täysin saneerattu ja vastaa nykyaikaisen toimistotyön tarpeisiin. Tila on osa inspiroivaa pientoimistokonseptia, jossa yhdistyvät laadukkaat pintamateriaalit, viimeistellyt yksityiskohdat ja harkittu sisustussuunnittelu. Vuokralaisilla on käytössään yhteiskäyttöisiä neuvotteluhuoneita, laadukkaat sosiaalitilat, aulapalvelu, kuntosali sekä kiinteistön oma lounasravintola.
Sijainti Triplan ja Pasilan juna-aseman vieressä tarjoaa loistavat liikenneyhteydet niin julkisilla kuin omalla autolla. Raitiovaunupysäkit ja kauppakeskus Tripla löytyvät vain muutaman minuutin kävelymatkan päästä. Lisäksi kiinteistössä on pysäköintihalli, joka helpottaa saavutettavuutta entisestään.
Esterinportti 2 tarjoaa erinomaista toimistotilaa kasvaville yrityksille, jotka arvostavat helppoa saavutettavuutta, nykyaikaisia tilaratkaisuja ja monipuolisia kiinteistöpalveluita dynaamisessa ympäristössä.
Kiinteistö on täysin saneerattu ja vastaa nykyaikaisen toimistotyön tarpeisiin. Tila on osa inspiroivaa pientoimistokonseptia, jossa yhdistyvät laadukkaat pintamateriaalit, viimeistellyt yksityiskohdat ja harkittu sisustussuunnittelu. Vuokralaisilla on käytössään yhteiskäyttöisiä neuvotteluhuoneita, laadukkaat sosiaalitilat, aulapalvelu, kuntosali sekä kiinteistön oma lounasravintola.
Sijainti Triplan ja Pasilan juna-aseman vieressä tarjoaa loistavat liikenneyhteydet niin julkisilla kuin omalla autolla. Raitiovaunupysäkit ja kauppakeskus Tripla löytyvät vain muutaman minuutin kävelymatkan päästä. Lisäksi kiinteistössä on pysäköintihalli, joka helpottaa saavutettavuutta entisestään.
Esterinportti 2 tarjoaa erinomaista toimistotilaa kasvaville yrityksille, jotka arvostavat helppoa saavutettavuutta, nykyaikaisia tilaratkaisuja ja monipuolisia kiinteistöpalveluita dynaamisessa ympäristössä.
Vapautuu
Heti
Rakennusvuosi
1984
Kerros
3 / 5
Energiatehokkuusluokka
H (ei luokitusta)
Ota yhteyttä
ScanReal Oy LKV
Opus Business Park
Hitsaajankatu 24
00810 Helsinki
info@scanreal.fi
Puh:
Näytä puhelinnumero
020 730 8830
Sopivat toimitilat yhdellä otolla!
Kartoitamme toimitilatarpeesi ja etsimme yrityksellesi parhaiten sopivat vapaat toimitilat. Koska vuokranantajat maksavat palvelumme, on tämä yrityksellesi veloituksetonta.
Palvelumme on tilanhakijalle ilmainen
Pyydä lisätietoa
