Vuokrataan liiketilat - Lohja
Korjaamokuja 3, 08200 Lohja #10833292
Vuokrattavana monipuolinen ja nykyaikainen 300 m² liiketila erinomaisella sijainnilla Lohjan vilkkaassa yrityskeskittymässä, osoitteessa Korjaamokuja 3. Kiinteistö sijaitsee aivan Hangontien varrella, tarjoten helpon saavutettavuuden niin asiakkaille kuin tavaratoimituksillekin.
Osoite
Korjaamokuja 3, 08200 Lohja
Tilatyyppi
Liiketilaa
298 m2
Pohjapiirros
Kiinteistö
TILAN OMINAISUUDET
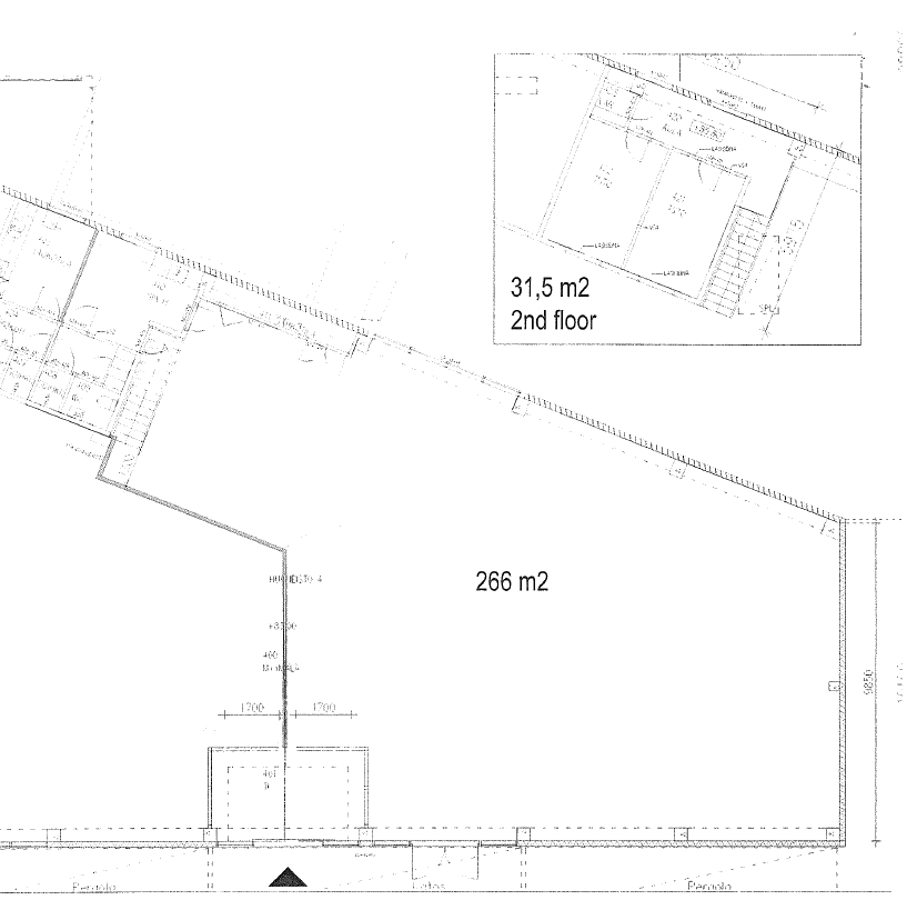
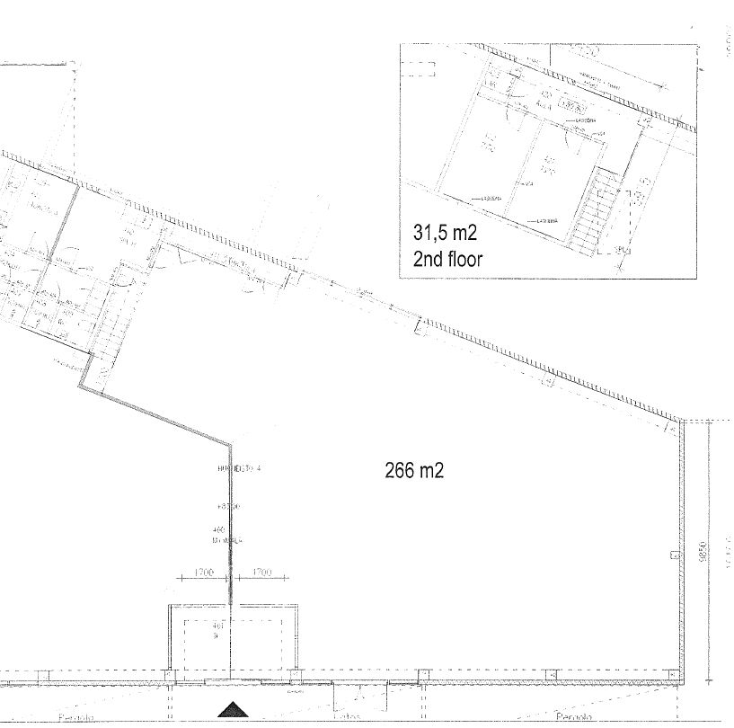
Tilan kokonaispinta-ala on 297,5 m² ja se jakautuu kahteen kerrokseen
Alakerrassa on avara ja helposti muunneltava myymälä-/liiketila 266 m² sisältäen myös henkilökunnan sosiaalitilat, joihin kuuluu pukuhuone, WC, suihku, sekä taukotila ja keittiö.
Yläkerrassa on kaksi toimistohuonetta yhteensä 31,5 m², jotka soveltuvat hyvin esimerkiksi hallinnolliseen työhön.
Valmis paketti käyttöön otettavaksi ilman muutostöitä.
TILAN LISÄEDUT
Sijainti kiinteistön päädyssä, eli ei seinänaapuria toisella puolella
Valoisa ja moderni tila, joka soveltuu monipuolisiin käyttötarkoituksiin
Helppo saavutettavuus ja hyvä näkyvyys liikenteelle
Tilan kokonaispinta-ala on 297,5 m² ja se jakautuu kahteen kerrokseen
Alakerrassa on avara ja helposti muunneltava myymälä-/liiketila 266 m² sisältäen myös henkilökunnan sosiaalitilat, joihin kuuluu pukuhuone, WC, suihku, sekä taukotila ja keittiö.
Yläkerrassa on kaksi toimistohuonetta yhteensä 31,5 m², jotka soveltuvat hyvin esimerkiksi hallinnolliseen työhön.
Valmis paketti käyttöön otettavaksi ilman muutostöitä.
TILAN LISÄEDUT
Sijainti kiinteistön päädyssä, eli ei seinänaapuria toisella puolella
Valoisa ja moderni tila, joka soveltuu monipuolisiin käyttötarkoituksiin
Helppo saavutettavuus ja hyvä näkyvyys liikenteelle
Sijainti
ERINOMAINEN SIJAINTI
Saman katon alla toimivat tunnetut ankkurivuokralaiset kuten Gigantti ja Power
Läheisyydessä myös alueen suurimmat päivittäistavarakaupat, mm. K-Citymarket ja Lidl
Vahvasti kehittyvä yritysalue, jossa toimii useita eri toimialojen yrityksiä
Saman katon alla toimivat tunnetut ankkurivuokralaiset kuten Gigantti ja Power
Läheisyydessä myös alueen suurimmat päivittäistavarakaupat, mm. K-Citymarket ja Lidl
Vahvasti kehittyvä yritysalue, jossa toimii useita eri toimialojen yrityksiä
Muuta
Tila tarjoaa yrityksellesi erinomaiset puitteet näkyvyyteen, saavutettavuuteen ja toiminnan sujuvuuteen vilkkaalla ja kehittyvällä yritysalueella.
Kysy lisää ja sovi esittely!
re@innovestor.fi
Lisätietoa kohteesta antaa:
Veeti Vuorenhela
Junior Asset Manager
veeti.vuorenhela@innovestor.fi
+358 45 891 8485
Toni Turpeenniemi
Asset Manager
toni.turpeenniemi@innovestor.fi
+358 40 415 4898
Kysy lisää ja sovi esittely!
re@innovestor.fi
Lisätietoa kohteesta antaa:
Veeti Vuorenhela
Junior Asset Manager
veeti.vuorenhela@innovestor.fi
+358 45 891 8485
Toni Turpeenniemi
Asset Manager
toni.turpeenniemi@innovestor.fi
+358 40 415 4898
Vapautuu
Kysy
Energiatehokkuusluokka
B
Katutasossa
Lastauslaituri
