Vuokrataan toimistotilat - Helsinki
Porkkalankatu 7, Ruoholahti, 00180 Helsinki #10833275
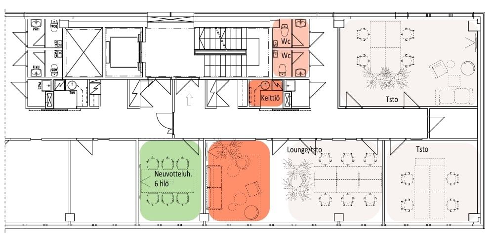
Porkkalankatu 7:ssä sijaitsevat toimitilat tarjoavat loistavat puitteet yritystoiminnalle Ruoholahden vilkkaassa liikekeskuksessa. Kaikki tarpeellinen on käden ulottuvilla – erinomaiset julkiset kulkuyhteydet, monipuoliset lounasravintolat sekä Ruoholahden kauppakeskus.
Rakennukselle on myönnetty arvostettu BREEAM In-Use -ympäristösertifikaatti, mikä takaa tilojen ympäristöystävällisyyden ja kestävän kehityksen mukaiset ratkaisut. Kiinteistön julkisivu on lisäksi täysin kunnostettu vuonna 2022, mikä varmistaa modernin ja edustavan ilmeen.
Me Croisettella autamme teitä löytämään teille parhaat tilat! Olemme puolueettomia asiantuntijoita ja tunnemme toimitilamarkkinat, talot sekä tilat vankalla kokemuksella. Meillä on välityksessä kaikki toimitilat ja tiedämme niiden alustavat vuokratasot.
Tehtävämme on tehdä toimitilahaustanne onnistunutta ja helppoa. Saamme palkkiomme kiinteistönomistajalta, joten sinulle palvelumme on täysin maksuton. Jos kiinnostuit, ota yhteyttä sähköpostitse osoitteeseen vuokraus@croisette.fi tai soita numeroon +358 40 005857.
Hissi
Croisette Real Estate Partner
Erottajankatu 5 A 6, 00130 Helsinki
Näytä puhelinnumero
+358 400 585 857
Croisette Vuokraus
Näytä puhelinnumero
+358400585857
