Vuokrataan toimistotilat, liiketilat, hoivatilat, muut tilat - Kuopio
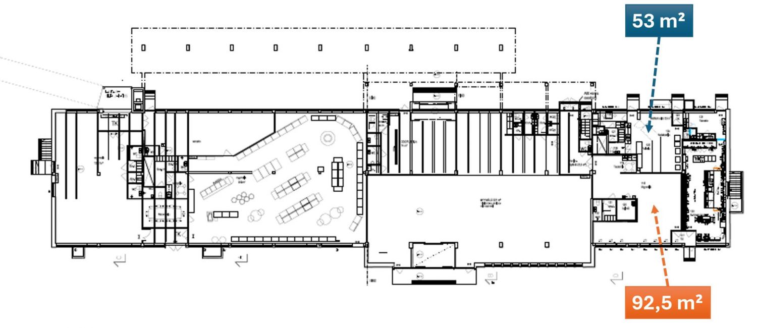
Puijonkatu 45 Toimitila 53 M², Keskusta, 70300 Kuopio #10833244
Liiketila & Toimistotila
Osoite
Puijonkatu 45 Toimitila 53 M², 70300 Kuopio
Tilatyyppi
Toimistotilaa
53 m2
Liiketilaa
53 m2
Hoivatilaa
53 m2
Muuta tilaa
53 m2
Yhteensä
53 m2
Tila soveltuu
Ravintola
Kiinteistö
Liiketila, myymälätila tai toimistotila asema-aukiolla
Linjuri kiinteistöllä asema-aukion puolella on vapaana n. 53 neliön liikehuoneisto, joka sopii hyvin asiakaspalveluun ja myymälätilaksi.
Hyvinvointipalveluille, fysioterapiaan, kauneudenhoitoon ja erilaisiin asiakkaan vastaanottopalveluihin tilat soveltuvat erittäin hyvin.
Tilaratkaisu sopii hyvin myös asiantuntijatyöhön toimistotilaksi ja fasiliteetit ovat valmiina. Ikkunat ovat idän suuntaan, joten aurinko ei paista sisätilaan häiritsevästi.
Hyvällä liikeidealla ja ennakkosuunnittelulla liiketilaan voidaan toteuttaa ravintola-/pikaruokapalvelulle toimitilaratkaisu.
Liikehuoneistossa on valmiina mm:
koneellinen ilmanvaihto
ilmastointi
hyvä valaistus
tasokaslattia
kuituyhteys kiinteistölle
kaksi sisäänkäyntiä
minikeittiö
loungetila
sosiaalitilat
siivouskomero
hälytinvalmius,
näkyvät valomainospaikat
Kiinteistö ja sijainti
Linjuri kiinteistö on saneerattu ja päivitetty nykyaikaan, joten tilat ovat kunnossa ja terveet. Sijainti on Puijonkadun pohjoispäässä ja kiinteistölle on vaivattomat kulkuyhteydet ja Matkakeskus on samalla aukiolla.
Parkkipaikat ovat kiinteistöllä ja tolppapaikkoja on saatavilla. Autolla pääsee käyntioven ja lastauskäytävän eteen. Tila on muuttovalmiina.
Ota yhteyttä ja puidaan lisää!
Linjuri kiinteistöllä asema-aukion puolella on vapaana n. 53 neliön liikehuoneisto, joka sopii hyvin asiakaspalveluun ja myymälätilaksi.
Hyvinvointipalveluille, fysioterapiaan, kauneudenhoitoon ja erilaisiin asiakkaan vastaanottopalveluihin tilat soveltuvat erittäin hyvin.
Tilaratkaisu sopii hyvin myös asiantuntijatyöhön toimistotilaksi ja fasiliteetit ovat valmiina. Ikkunat ovat idän suuntaan, joten aurinko ei paista sisätilaan häiritsevästi.
Hyvällä liikeidealla ja ennakkosuunnittelulla liiketilaan voidaan toteuttaa ravintola-/pikaruokapalvelulle toimitilaratkaisu.
Liikehuoneistossa on valmiina mm:
koneellinen ilmanvaihto
ilmastointi
hyvä valaistus
tasokaslattia
kuituyhteys kiinteistölle
kaksi sisäänkäyntiä
minikeittiö
loungetila
sosiaalitilat
siivouskomero
hälytinvalmius,
näkyvät valomainospaikat
Kiinteistö ja sijainti
Linjuri kiinteistö on saneerattu ja päivitetty nykyaikaan, joten tilat ovat kunnossa ja terveet. Sijainti on Puijonkadun pohjoispäässä ja kiinteistölle on vaivattomat kulkuyhteydet ja Matkakeskus on samalla aukiolla.
Parkkipaikat ovat kiinteistöllä ja tolppapaikkoja on saatavilla. Autolla pääsee käyntioven ja lastauskäytävän eteen. Tila on muuttovalmiina.
Ota yhteyttä ja puidaan lisää!
Vapautuu
Kysy
Kerros
Katutaso
Ota yhteyttä
LogisTila Oy
Ankkuritie 1, 70460 KUOPIO
Timo Puustinen
Näytä puhelinnumero
0400 33 00 30
Pyydä lisätietoa
