Vuokrataan toimistotilat - Helsinki
Henry Fordin katu 6, Hernesaari, 00150 Helsinki #10833205
Valoisa 449 m² toimisto uniikissa ympäristössä Hernesaaressa
Osoite
Henry Fordin katu 6, 00150 Helsinki
Tilatyyppi
Toimistotilaa
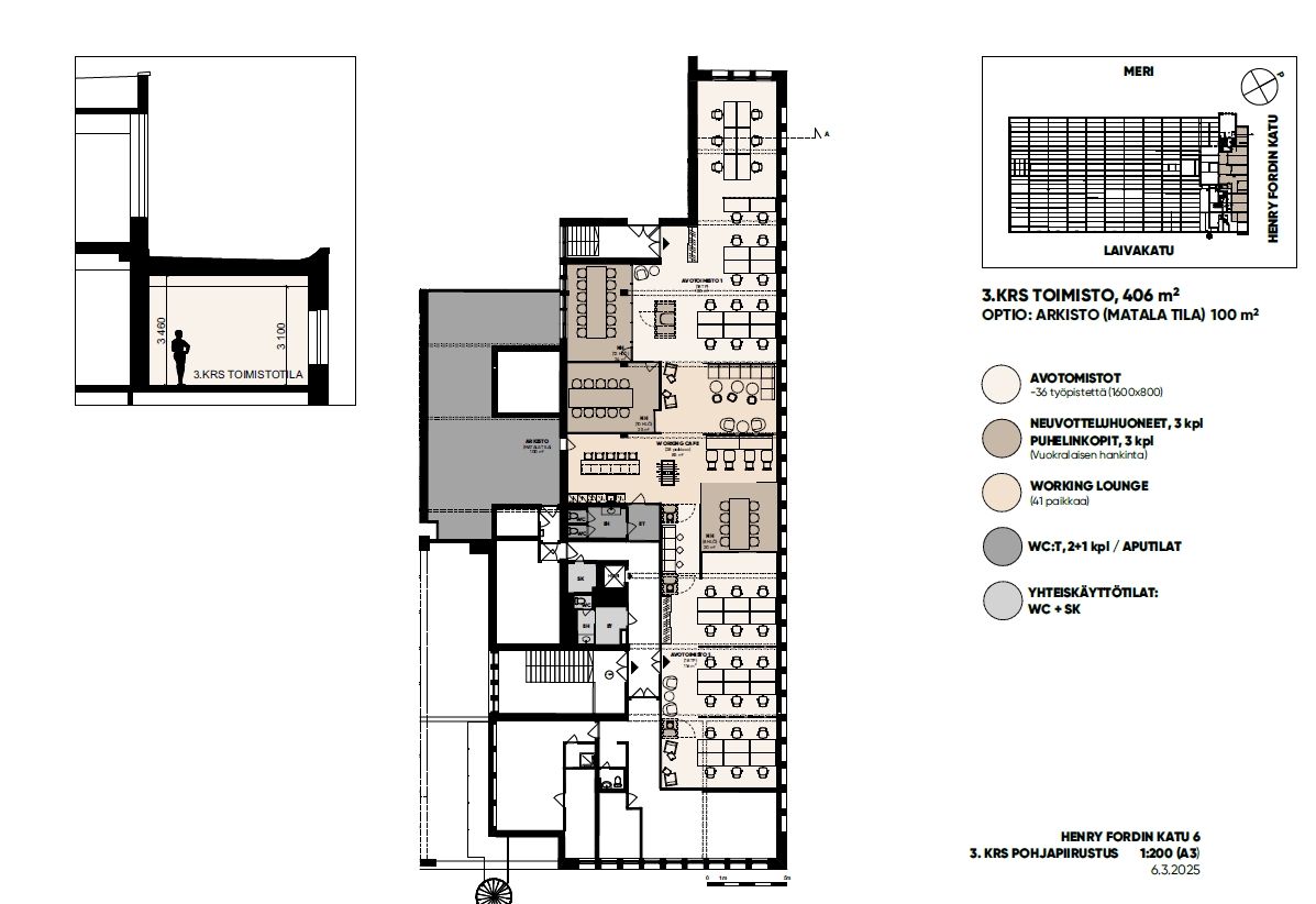
406 m2
Pohjapiirros
Kiinteistö
Merellinen. Ainutlaatuinen. Karismaattinen. Tämä on yksi Helsingin mieleenpainuvimmista ja persoonallisimmista toimistokokonaisuuksista.
Henry Fordin talo sijaitsee aivan ydinkeskustan vieressä ja hyvien kulkuyhteyksien päässä. Se on uniikki ja historiallinen osa nopeasti kehittyvää Hernesaaren aluetta. Kiinteistö tarjoaa aidon ja ikimuistoisen wow-elämyksen jokaiselle ensikertalaiselle vierailijalle.
Hernesaaresta rakennetaan kantakaupungin merellistä jatketta asuntoineen, toimistoineen ja tapahtumatiloineen. Ympäristössä tapahtuva jatkuva muutos tuo sekä vaihtelua, että inspiraatiota.
Tämä vapautuva toimistotila tarjoaa uniikkia industrial ulkonäköä yhdistäen talon historiaa että modernit puitteet.
Pihalla runsaasti parkkipaikkoja. Samassa rakennuksessa palvelut ovat laajat; mm. lounasravintola, padelkentät ja kuntosali.
Erinomaista tilaa yritykselle, joka haluaa toimistotilaltaan persoonallisuutta.
Tila on muuttovalmis tai muokattavissa tarpeen mukaan
Henry Fordin talo sijaitsee aivan ydinkeskustan vieressä ja hyvien kulkuyhteyksien päässä. Se on uniikki ja historiallinen osa nopeasti kehittyvää Hernesaaren aluetta. Kiinteistö tarjoaa aidon ja ikimuistoisen wow-elämyksen jokaiselle ensikertalaiselle vierailijalle.
Hernesaaresta rakennetaan kantakaupungin merellistä jatketta asuntoineen, toimistoineen ja tapahtumatiloineen. Ympäristössä tapahtuva jatkuva muutos tuo sekä vaihtelua, että inspiraatiota.
Tämä vapautuva toimistotila tarjoaa uniikkia industrial ulkonäköä yhdistäen talon historiaa että modernit puitteet.
Pihalla runsaasti parkkipaikkoja. Samassa rakennuksessa palvelut ovat laajat; mm. lounasravintola, padelkentät ja kuntosali.
Erinomaista tilaa yritykselle, joka haluaa toimistotilaltaan persoonallisuutta.
Tila on muuttovalmis tai muokattavissa tarpeen mukaan
Sijainti
Hyvien kulkuyhteyksien päässä Hernesaaressa.
Vapautuu
Heti
Kerros
3 / 3
Energiatehokkuusluokka
Ei lain edellyttämää energiatodistusta
Hissi
Ota yhteyttä
ScanReal Oy LKV
Opus Business Park
Hitsaajankatu 24
00810 Helsinki
info@scanreal.fi
Puh:
Näytä puhelinnumero
020 730 8830
Sopivat toimitilat yhdellä otolla!
Kartoitamme toimitilatarpeesi ja etsimme yrityksellesi parhaiten sopivat vapaat toimitilat. Koska vuokranantajat maksavat palvelumme, on tämä yrityksellesi veloituksetonta.
OTA YHTEYTTÄ - SOVI NÄYTTÖ!
Kaikki kohteemme eivät ole netissä, kerro tilatarpeesi niin kartoitamme vaihtoehdot.
Palvelumme on tilanhakijalle ilmainen
Pyydä lisätietoa
