Vuokrataan toimistotilat - Helsinki
Hämeentie 31, Sörnäinen, 00500 Helsinki #10833171
Tyylikäs 7. kerroksen 49,5 m² toimistotila hyvien kulkuyhteyksien varrella Sörnäisissä.
Osoite
Hämeentie 31, 00500 Helsinki
Tilatyyppi
Toimistotilaa
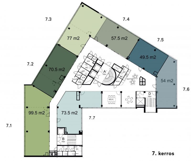
49,5 m2
Pohjapiirros
Kiinteistö
Tyylikästä toimistotilaa Helsingin Kalliossa, Sörnäisten kurvissa.
Rakennuksen seitemännestä kerroksesta on mahdollista vuokrata erikokoisia, tehokkaita toimistotiloja. Tyylikkäät ja huolella suunnitellut tilat tarjoavat viihtyisän ympäristön ja sujuvan työpäivän. Kerroksessa on yhteiskäyttöinen keittiö, neuvotelutila, puhelinkoppeja sekä wc:t.
Ilmoituksen kuvat ovat yleiskuvia kiinteistön eri tiloista.
Kiinteistö sijaitsee loistavien liikenneyhteyksien varrella Sörnäisten metroaseman vieressä, lähellä Hakaniemen palveluja.
Kiinteistössä on vasta uusittu ilmanvaihto ja modernisoitu talotekniikka.
Kiinteistön käyttäjille on vuokrattavissa talon ylimmistä kerroksista neuvottelutiloja sekä ylimmän kerroksen sauna ja tapahtumatilaa.
Toimitiloja on mahdollista muunnella ja personoida yrityksen tarpeiden mukaan.
Henkilöhissien lisäksi tavarahissi.
Rakennuksen seitemännestä kerroksesta on mahdollista vuokrata erikokoisia, tehokkaita toimistotiloja. Tyylikkäät ja huolella suunnitellut tilat tarjoavat viihtyisän ympäristön ja sujuvan työpäivän. Kerroksessa on yhteiskäyttöinen keittiö, neuvotelutila, puhelinkoppeja sekä wc:t.
Ilmoituksen kuvat ovat yleiskuvia kiinteistön eri tiloista.
Kiinteistö sijaitsee loistavien liikenneyhteyksien varrella Sörnäisten metroaseman vieressä, lähellä Hakaniemen palveluja.
Kiinteistössä on vasta uusittu ilmanvaihto ja modernisoitu talotekniikka.
Kiinteistön käyttäjille on vuokrattavissa talon ylimmistä kerroksista neuvottelutiloja sekä ylimmän kerroksen sauna ja tapahtumatilaa.
Toimitiloja on mahdollista muunnella ja personoida yrityksen tarpeiden mukaan.
Henkilöhissien lisäksi tavarahissi.
Palvelut
Monipuoliset palvelut ympäristössä.
Kulkuyhteydet
Sijaitsee loistavien kulkuyhteyksien varrella. Sörnäisten metroasema sijaitsee aivan vieressä ja vilkasta Hämeentietä kulkevat useat kaupunki- ja seutuliikenteen bussit sekä raitiovaunulinjat 6, 7A, 7B ja 8.
Metroasema 100 m, Raitiovaunupysäkki 100 m, Bussipysäkki 100 m, Juna-asema 2,4 km, Lentoasema 16,7 km
Metroasema 100 m, Raitiovaunupysäkki 100 m, Bussipysäkki 100 m, Juna-asema 2,4 km, Lentoasema 16,7 km
Muuta
Ei lain edellyttämää energiatodistusta
Vapautuu
Heti
Rakennusvuosi
1962
Kerros
7 / 9
Energiatehokkuusluokka
Ei lain edellyttämää energiatodistusta
Näkyvällä paikalla
Hissi
Ota yhteyttä
ScanReal Oy LKV
Opus Business Park
Hitsaajankatu 24
00810 Helsinki
info@scanreal.fi
Puh:
Näytä puhelinnumero
020 730 8830
Sopivat toimitilat yhdellä otolla!
Kartoitamme toimitilatarpeesi ja etsimme yrityksellesi parhaiten sopivat vapaat toimitilat. Koska vuokranantajat maksavat palvelumme, on tämä yrityksellesi veloituksetonta.
OTA YHTEYTTÄ - SOVI NÄYTTÖ!
Kaikki kohteemme eivät ole netissä, kerro tilatarpeesi niin kartoitamme vaihtoehdot.
Palvelumme on tilanhakijalle ilmainen
Pyydä lisätietoa
