Myydään toimistotilat, tuotantotilat, varastotilat - Helsinki
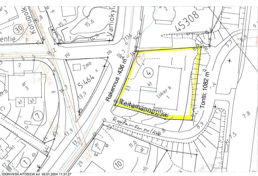
Vartiokyläntie 33, Vartioharju, 00950 Helsinki #10833151
Myydään erinomaisella sijainnilla Helsingin Vartioharjussa oleva vuokraoikeus. Vuokraoikeus pitää sisällään vuonna 1985 valmistuneen tiili ja betonipintaisen rakennuksen kahdessa kerroksessa.
Kohteen kokonaispinta-ala n. 436 m2. Rakennus on rinnetontilla siten, että myös alakerroksesta on käynti ulos.
Tilat jakaantuvat seuraavasti:
Katutasolla oleva tila: n. 236 m2, useita huoneita, neuvottelutilaa, keittiö, sauna sekä varasto.
Kellaritila: n. 200 m2 tuontatotilaa sekä varastotilaa, wc. Tilasta käynti ulos. Tilan korkeus n 2,1 m.
Hyvät piha-alueet.
Tilat käyvät monipuoliseen käyttöön. Nykyinen kaava KL liikerakennusten korttelialue.
Tontin koko 1082 m2.
Lisätiedot: p. 045 261 6555/Mika
Kohteella ei energiatodistusta tai sitä ei ole saatavilla.Kerros: Kaksi
CRE PREMISES
Puh. Näytä puhelinnumero 020 7290 710
Vantaankoskentie 14
01670 VANTAA
