Myydään liiketilat - Heinola
savontie 14, Keskusta, 18100 Heinola #10833013
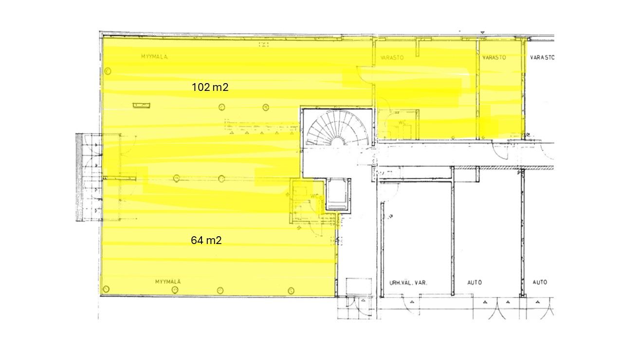
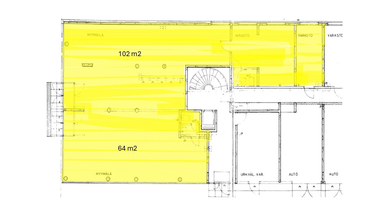
Heinolan keskustassa oleva ensimmäisen kerroksen liiketila, jossa kaksi osakehuoneistoa on yhdistetty yhdeksi liiketilaksi (64 m2 ja 102 m2).
Liiketila on nyt fysioterapeutin käyttööön tehty, mutta voidaan muuttaa helposti muuhunkin käyttöön. Tila voidaan ostaa yhtenä kokonaisuutena tai kumpikin erikseen omina tiloina.
Lisätiedot ja esittelyt 0207290710/0400891057
Lisää kohteita www.premises.fiKerros: 1
Osoite
savontie 14, 18100 Heinola
Tilatyyppi
Liiketilaa
64 - 166 m2
Ota yhteyttä
CRE PREMISES
Puh. Näytä puhelinnumero 020 7290 710
Vantaankoskentie 14
01670 VANTAA
Pyydä lisätietoa
