Vuokrataan toimistotilat - Pirkkala
Jasperintie 334 A, Vähä-Vaitti, 33960 Pirkkala #10833001
Vapautumassa vuokrattavaksi keväällä/kesällä selkeää ja korkeaa hallitilaa näkyvällä paikalla, suoraan ohitustien varrella Pirkkalassa. Kiinteistölle on helppo saavutettavuus joka puolelta kaupunkia. Hallin osuus n. 1450 m².
Osoite
Jasperintie 334 A, 33960 Pirkkala
Tilatyyppi
Toimistotilaa
2143 m2
Kiinteistö
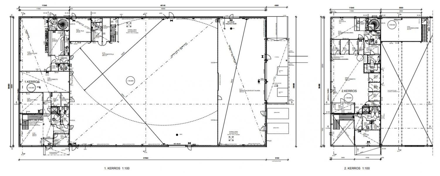
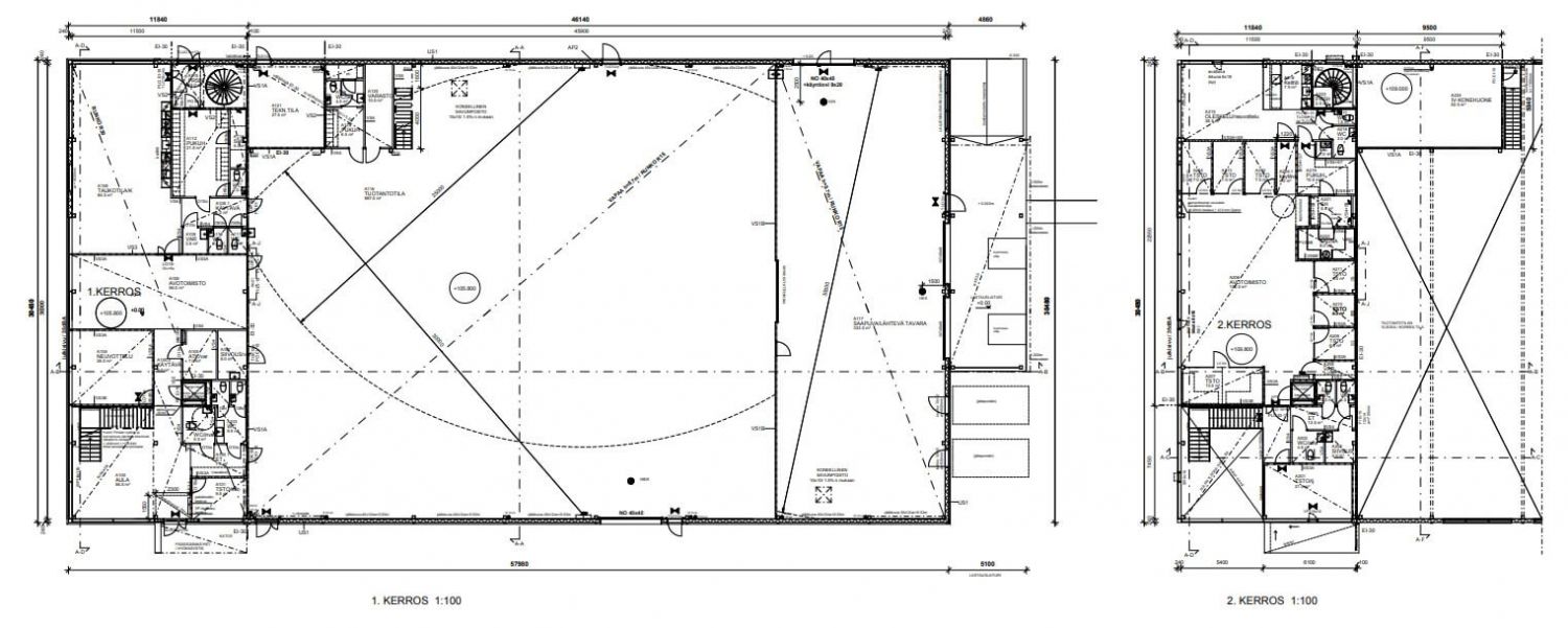
Vuokrattava varasto-, tuotanto- ja toimistotila 2143 m², Jasperintie 334 A, Pirkkala
Etsitkö kasvua tukevaa toimitilaa erinomaisella sijainnilla? Kesällä 2026 vapautumassa vuokrattavaksi selkeää ja korkeaa hallitilaa näkyvällä paikalla, suoraan ohitustien varrella. Kiinteistölle on helppo saavutettavuus joka puolelta kaupunkia.
Vuokrattavan toimitilan kokonaispinta-ala on 2143 m², josta noin 1450 m² on korkeaa ja avaraa hallitilaa. Toimistoa löytyy kahdessa kerroksessa yhteensä noin 682 m² – tilavat huoneet isoilla ikkunoilla tarjoavat valoisan ja viihtyisän työympäristön.
Hallissa on kaksi nosto-ovea sekä lastauslaituri, jossa kaksi kuormaussiltaa helpottavat tavaraliikennettä. Tilat on varustettu pukuhuoneilla sekä hallin että toimiston puolella – lisäksi käytössä on oma sauna ja edustustila.
Kohteella on hyvin parkkipaikkoja saatavilla.
Tutustu kaikkiin vapaisiin toimitiloihin: sagaxtilat.fi/toimitilat
Etsitkö kasvua tukevaa toimitilaa erinomaisella sijainnilla? Kesällä 2026 vapautumassa vuokrattavaksi selkeää ja korkeaa hallitilaa näkyvällä paikalla, suoraan ohitustien varrella. Kiinteistölle on helppo saavutettavuus joka puolelta kaupunkia.
Vuokrattavan toimitilan kokonaispinta-ala on 2143 m², josta noin 1450 m² on korkeaa ja avaraa hallitilaa. Toimistoa löytyy kahdessa kerroksessa yhteensä noin 682 m² – tilavat huoneet isoilla ikkunoilla tarjoavat valoisan ja viihtyisän työympäristön.
Hallissa on kaksi nosto-ovea sekä lastauslaituri, jossa kaksi kuormaussiltaa helpottavat tavaraliikennettä. Tilat on varustettu pukuhuoneilla sekä hallin että toimiston puolella – lisäksi käytössä on oma sauna ja edustustila.
Kohteella on hyvin parkkipaikkoja saatavilla.
Tutustu kaikkiin vapaisiin toimitiloihin: sagaxtilat.fi/toimitilat
Vapautuu
Kysy
Rakennusvuosi
2019
Ota yhteyttä
Sagax Finland
Aleksanterinkatu
Näytä puhelinnumero
19 00100
HELSINKI
Näytä puhelinnumero
010 3200 320
Pyydä lisätietoa
