Vuokrataan tuotantotilat - Oulu
Hiltusentie 20 Lt4, Takalaanila, 90620 Oulu #10832996
Osoite
Hiltusentie 20 Lt4, 90620 Oulu
Tilatyyppi
Tuotantotilaa
160 m2
Vuokra
1744,00 €/kk
Vuokraan sisältyy alv
Muuta
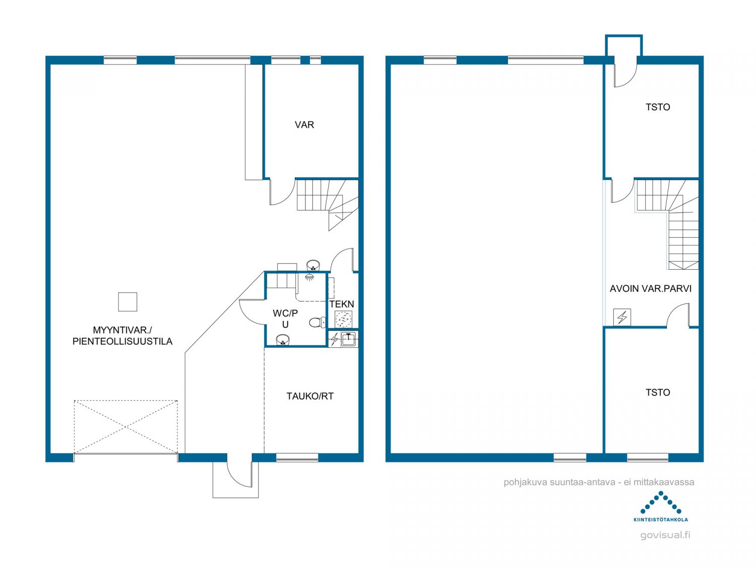
Vuokrataan 2016 valmistuneesta Ruskopark 2:sta monien mahdollisuuksien toimitila. Tilan katutasossa on korkeaa avotilaa, joka soveltuu liike-, toimisto- tai tuotantotilaksi. Lattiapinnat ovat tekstiilimatolla/laminaatilla, jotka on mahdollista poistaa halutessaan. Katutasossa on lisäksi erillinen tilava huone, keittiötila sekä WC/pukuhuone. 2. kerrokseen sijoittuu kaksi hyvän kokoista toimistohuonetta sekä parvitilaa. Isoon avotilaan on nosto-ovi mitoiltaan 3,5x4,65m, ja lisäksi erillinen käyntiovi. Tilaan saa näyttävät teippaukset ja tunnisteet yrityksellesi. Asfaltoidulla parkkialueella on autopaikkoja.
Tässä hieno mahdollisuus yrityksellesi! Tila on myös mahdollista ostaa omaksi.
Lisätiedot 040 5400 672 tai joni.romppainen@kiinteistotahkola.fi.
Eikö tämä ole sopiva? Kysy muita vaihtoehtojamme!
Tässä hieno mahdollisuus yrityksellesi! Tila on myös mahdollista ostaa omaksi.
Lisätiedot 040 5400 672 tai joni.romppainen@kiinteistotahkola.fi.
Eikö tämä ole sopiva? Kysy muita vaihtoehtojamme!
Vapautuu
01.08.2025
Rakennusvuosi
2016
Kerros
1
Ota yhteyttä
Kiinteistö-Tahkola Oy
Lumijoentie 1, 90400 Oulu
Näytä puhelinnumero
0207 480 250
Kiinteistötahkola Oulu
Näytä puhelinnumero
0401529999
Pyydä lisätietoa
