Myydään tuotantotilat, varastotilat, työtilat, autotalli/-hallitilat, muut tilat - Lohja
Sauvonrinne 2, 08500 Lohja #10832988
Myynnissä toimitilakokonaisuus sijoittajalle tai omaan käyttöön!
Osoite
Sauvonrinne 2, 08500 Lohja
Tilatyyppi
Tuotantotilaa
3500 m2
Varastotilaa
3500 m2
Työtilaa
3500 m2
Autotalli/-hallitilaa
3500 m2
Muuta tilaa
500 m2
Yhteensä
4000 m2
Myyntihinta
799'000 € (velaton myyntihinta)
Muuta
Lohjalla Muijalan teollisuus- ja toimitila-alueella on myynnissä monipuolinen toimitalo sijoituskohteeksi tai miksei omaankin käyttöön. Tilat ovat pääosin vuokrattu. Rakennus on jaettu noin 15 erilliseen vuokrattavaan tilaan ja näiden tilojen lisäksi rakennuksessa on 2 asuntoa.
Kiinteistössä on pitkäaikaiset vuokralaiset, jotka ovat sekä pk-yrityksiä että yksityishenkilöitä. Vuokrat ovat edulliset ja niissä on nostopotentiaalia.
Keskeiset kulut vuodessa ovat seuraavat:
Lämmitys 25’000-35’000 €
Kiinteistövero noin 6’500 €
Vesi 5’000 €
Sähkö 35’000-40’000 € (merkittävä osa koskee lämmitystä)
Jätehuolto 2’200 €
Muu hoito ja korjaukset 5’000-20’000 €
Toimitalo on rakennettu alun perin 1975. Osa rakennuksen tiloista on korjaamattomia alkuperäisessä kunnossa olevia tiloja vanhanaikaisella tekniikalla ja osa korjattuja/paranneltuja tiloja. Vuosien varrella siihen on tehty paljon muutos- ja remonttitöitä, kuten esimerkiksi kattopinnoitteen uusiminen noin 10 vuotta sitten. Kohteen lämmitys on uudistettu muutama vuosi sitten. Päälämmitysmuotona on öljylämmitys ja sen rinnalla on järeä ilmavesilämpöpumppujärjestelmä.
Hallin pinta-alaa ei ole tarkistusmitattu, joten kauppasumma ei ole neliöperusteinen.
Rakennukset sijaitsevat hyvällä paikalla aivan Lohjan keskustaan vievän Lohjanharjuntien kupeessa, ja moottoritielle E18 on lyhyt matka.
Hyvä kohde sijoittajalle tai omaan käyttöön!
Kohdetiedot
Sijainti
Katuosoite: Sauvonrinne 2, 08500 Lohja
Kaupunginosa: Muijala
Ympäristö: Teollisuus- ja toimitila-alue
Tontti
Pinta-ala: 10’100 m²
Omistus: Oma tontti
Kaava: K II e=0,4 (Liike- ja toimistorakennusten korttelialue)
Rakennus/huoneisto
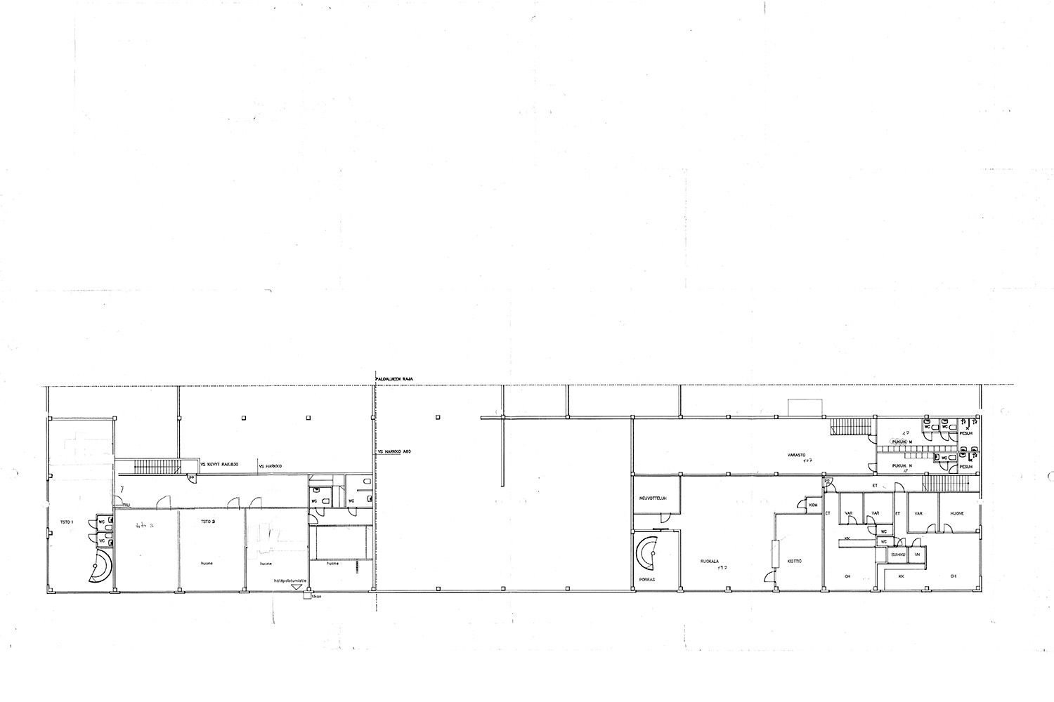
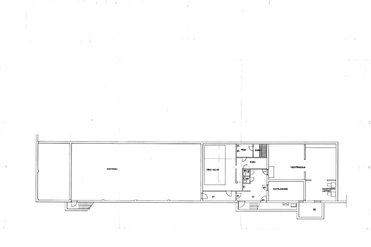
Pinta-alat: Noin 3’500 m² + kellari (kerrosalat 3’981 m² + kellari 500 m², mutta tiloja ei ole tarkistusmitattu)
Huoneistoselitelmä: Korkeaa ja matalaa hallitilaa, toimisto- ja työtiloja sekä 2 asuntoa
Kunto, varusteet ja palvelut: Osa tiloista alkuperäisessä kunnossa ja osa tiloista on paranneltuja
Pysäköinti: Pihassa
Vapautuminen: Sopimukset voimassa toistaiseksi voimassa olevin sopimuksen 1-6 kuukauden irtisanomisajoin
Muuta: Voidaan myydä kiinteistönä tai kiinteistöosakeyhtiön osakkeet
Myyntihinta ja kulut
Velaton myyntihinta: 799’000 €
Vuokratulot ja käyttökorvaukset: Noin 165’000 €/v + potentiaali vapaista tiloista noin 35’000 €/v
Hoitokulut: Noin 80’000 €/v (Ks. erittely ylhäällä tekstissä)
Muuta: Nettotuottoprosentti yli 10%
Kiinteistössä on pitkäaikaiset vuokralaiset, jotka ovat sekä pk-yrityksiä että yksityishenkilöitä. Vuokrat ovat edulliset ja niissä on nostopotentiaalia.
Keskeiset kulut vuodessa ovat seuraavat:
Lämmitys 25’000-35’000 €
Kiinteistövero noin 6’500 €
Vesi 5’000 €
Sähkö 35’000-40’000 € (merkittävä osa koskee lämmitystä)
Jätehuolto 2’200 €
Muu hoito ja korjaukset 5’000-20’000 €
Toimitalo on rakennettu alun perin 1975. Osa rakennuksen tiloista on korjaamattomia alkuperäisessä kunnossa olevia tiloja vanhanaikaisella tekniikalla ja osa korjattuja/paranneltuja tiloja. Vuosien varrella siihen on tehty paljon muutos- ja remonttitöitä, kuten esimerkiksi kattopinnoitteen uusiminen noin 10 vuotta sitten. Kohteen lämmitys on uudistettu muutama vuosi sitten. Päälämmitysmuotona on öljylämmitys ja sen rinnalla on järeä ilmavesilämpöpumppujärjestelmä.
Hallin pinta-alaa ei ole tarkistusmitattu, joten kauppasumma ei ole neliöperusteinen.
Rakennukset sijaitsevat hyvällä paikalla aivan Lohjan keskustaan vievän Lohjanharjuntien kupeessa, ja moottoritielle E18 on lyhyt matka.
Hyvä kohde sijoittajalle tai omaan käyttöön!
Kohdetiedot
Sijainti
Katuosoite: Sauvonrinne 2, 08500 Lohja
Kaupunginosa: Muijala
Ympäristö: Teollisuus- ja toimitila-alue
Tontti
Pinta-ala: 10’100 m²
Omistus: Oma tontti
Kaava: K II e=0,4 (Liike- ja toimistorakennusten korttelialue)
Rakennus/huoneisto
Pinta-alat: Noin 3’500 m² + kellari (kerrosalat 3’981 m² + kellari 500 m², mutta tiloja ei ole tarkistusmitattu)
Huoneistoselitelmä: Korkeaa ja matalaa hallitilaa, toimisto- ja työtiloja sekä 2 asuntoa
Kunto, varusteet ja palvelut: Osa tiloista alkuperäisessä kunnossa ja osa tiloista on paranneltuja
Pysäköinti: Pihassa
Vapautuminen: Sopimukset voimassa toistaiseksi voimassa olevin sopimuksen 1-6 kuukauden irtisanomisajoin
Muuta: Voidaan myydä kiinteistönä tai kiinteistöosakeyhtiön osakkeet
Myyntihinta ja kulut
Velaton myyntihinta: 799’000 €
Vuokratulot ja käyttökorvaukset: Noin 165’000 €/v + potentiaali vapaista tiloista noin 35’000 €/v
Hoitokulut: Noin 80’000 €/v (Ks. erittely ylhäällä tekstissä)
Muuta: Nettotuottoprosentti yli 10%
Vapautuu
Myydään vuokrattuna
Kerros
1 / 2
Katutasossa
Näkyvällä paikalla
Ota yhteyttä
Tilat.fi
KTM, LKV Antti Soivio
Näytä puhelinnumero
0400 446 553
OTM, LKV Riikka Tuominen
Näytä puhelinnumero
0400 551 790
KTM, LKV Maria-Sofia Puhakka
Näytä puhelinnumero
0400-150330
MBA Susanne Wallenius
Näytä puhelinnumero
0400-128877
Yrityksen virallinen nimi: LKV Tilat.fi Oy.
Toimitilojen välitykseen erikoistunut yritys.
Pyydä lisätietoa
