Vuokrataan toimistotilat - Pirkkala
Jasperintie 334 C, Vähä-Vaitti, 33960 Pirkkala #10832982
Vuokrattavana monikäyttöistä, selkeää ja korkeaa hallitilaa Pirkkalassa. Toimitila sisältää myös toimistoa. Tila on jaettavissa 1-3 käyttäjän kesken. Tila soveltuu monenlaiseen käyttöön ja hallitiloja voidaan muokata tarpeen mukaan.
Osoite
Jasperintie 334 C, 33960 Pirkkala
Tilatyyppi
Toimistotilaa
1030 m2
Kiinteistö
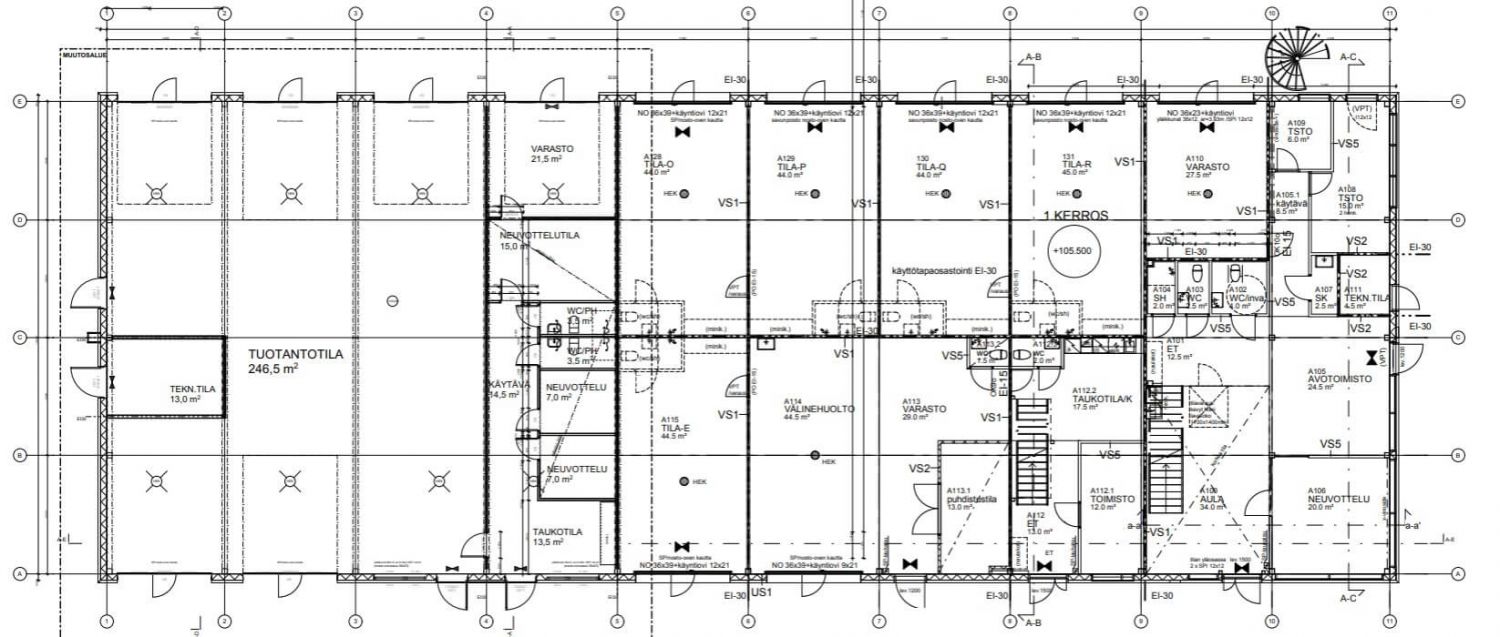
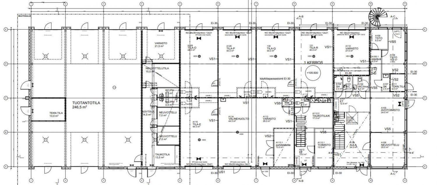
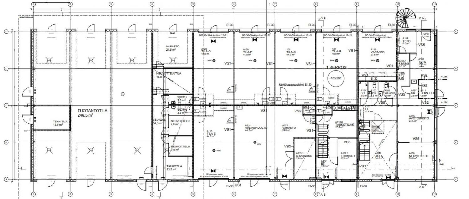
Vuokrattavana varasto-, tuotanto- ja toimistotila 1030 m², Jasperintie 334 C, Pirkkala
Etsitkö kasvua tukevaa toimitilaa erinomaisella sijainnilla? Keväällä 2026 vuokrattavaksi vapautumassa monikäyttöistä, selkeää ja korkeaa hallitilaa. Toimitila sisältää myös toimistoa. Tila on jaettavissa 1-3 käyttäjän kesken. Tila soveltuu monenlaiseen käyttöön ja hallitiloja voidaan muokata käyttötarkoituksen mukaisesti.
Toimitilassa on useita nosto-ovia katuyhteydellä.
Toimistotilat sijaitsevat sekä hallin puolella, että kohteen toisessa kerroksessa. Toimitilassa on hyvät WC- ja sosiaalitilat.
Kohteella on hyvin parkkipaikkoja saatavilla.
Tutustu kaikkiin vapaisiin toimitiloihin: sagaxtilat.fi/toimitilat
Etsitkö kasvua tukevaa toimitilaa erinomaisella sijainnilla? Keväällä 2026 vuokrattavaksi vapautumassa monikäyttöistä, selkeää ja korkeaa hallitilaa. Toimitila sisältää myös toimistoa. Tila on jaettavissa 1-3 käyttäjän kesken. Tila soveltuu monenlaiseen käyttöön ja hallitiloja voidaan muokata käyttötarkoituksen mukaisesti.
Toimitilassa on useita nosto-ovia katuyhteydellä.
Toimistotilat sijaitsevat sekä hallin puolella, että kohteen toisessa kerroksessa. Toimitilassa on hyvät WC- ja sosiaalitilat.
Kohteella on hyvin parkkipaikkoja saatavilla.
Tutustu kaikkiin vapaisiin toimitiloihin: sagaxtilat.fi/toimitilat
Vapautuu
Kysy
Rakennusvuosi
2021
Ota yhteyttä
Sagax Finland
Aleksanterinkatu
Näytä puhelinnumero
19 00100
HELSINKI
Näytä puhelinnumero
010 3200 320
Pyydä lisätietoa
