Vuokrataan liiketilat - Helsinki
Porkkalankatu 7, Ruoholahti, 00180 Helsinki #10832976
Katutason liiketila Porkkalankadun varrella.
Osoite
Porkkalankatu 7, 00180 Helsinki
Tilatyyppi
Liiketilaa
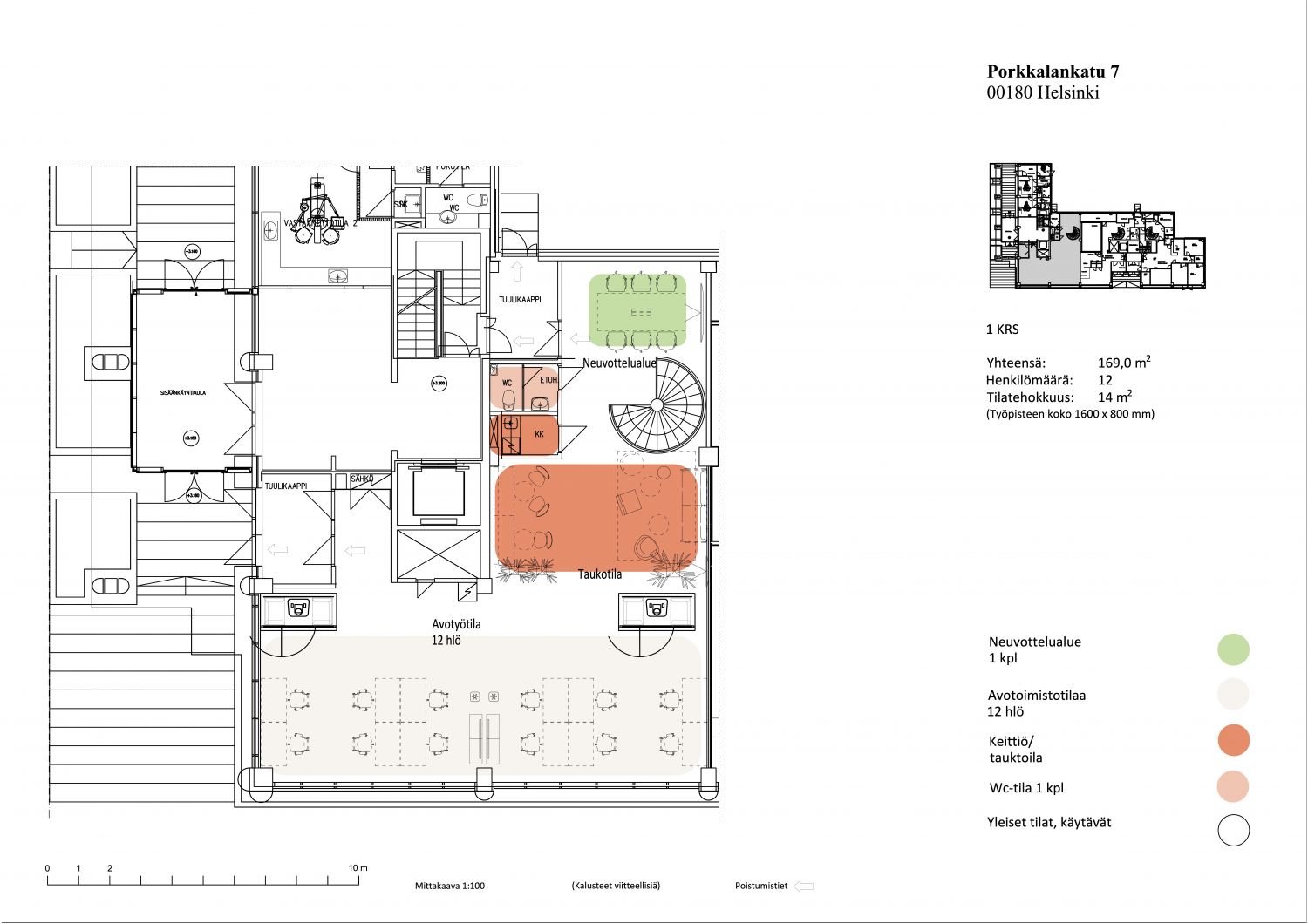
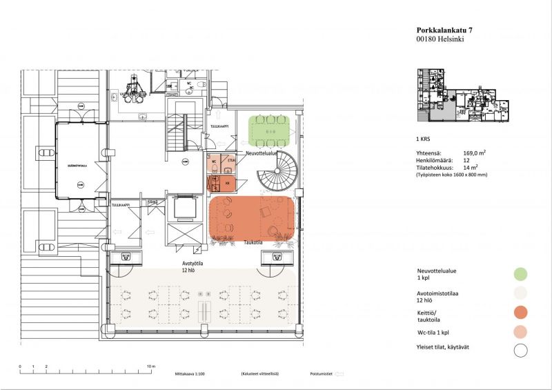
169 m2
Pohjapiirros
Kiinteistö
Katutasossa oleva tila, joka sopii moneen käyttötarkoitukseen esimerkiksi toimisto/showroom/liiketilaksi.
Tila ei sovellu ravintolaksi tai kahvilaksi.
Seitsemänkerroksisesta talosta avautuu upea näkymä Lauttasaaren sillan suuntaan ja Seurasaarenselälle. Kiinteistössä on toimistoille 4 300 m² tilaa ja liiketilaa 600 m². Yksi kerros on jaettavissa kolmeen noin 200-300 m²:n osaan.
Kiinteistö sijaitsee kätevästi keskustan palvelujen tuntumassa, mutta lounaalle tai muille asioille on helppo piipahtaa myös kadun toiselle puolelle Ruoholahden kauppakeskukseen.
Tila ei sovellu ravintolaksi tai kahvilaksi.
Seitsemänkerroksisesta talosta avautuu upea näkymä Lauttasaaren sillan suuntaan ja Seurasaarenselälle. Kiinteistössä on toimistoille 4 300 m² tilaa ja liiketilaa 600 m². Yksi kerros on jaettavissa kolmeen noin 200-300 m²:n osaan.
Kiinteistö sijaitsee kätevästi keskustan palvelujen tuntumassa, mutta lounaalle tai muille asioille on helppo piipahtaa myös kadun toiselle puolelle Ruoholahden kauppakeskukseen.
Vapautuu
Heti
Rakennusvuosi
1987
Kerros
1 / 7
Energiatehokkuusluokka
F2007
Katutasossa
Näkyvällä paikalla
Hissi
Ota yhteyttä
ScanReal Oy LKV
Opus Business Park
Hitsaajankatu 24
00810 Helsinki
info@scanreal.fi
Puh:
Näytä puhelinnumero
020 730 8830
Sopivat toimitilat yhdellä otolla!
Kartoitamme toimitilatarpeesi ja etsimme yrityksellesi parhaiten sopivat vapaat toimitilat. Koska vuokranantajat maksavat palvelumme, on tämä yrityksellesi veloituksetonta.
OTA YHTEYTTÄ - SOVI NÄYTTÖ!
Kaikki kohteemme eivät ole netissä, kerro tilatarpeesi niin kartoitamme vaihtoehdot.
Palvelumme on tilanhakijalle ilmainen
Pyydä lisätietoa
