Vuokrataan toimistotilat - Espoo
Sinikalliontie 4, Sinimäki, 02630 Espoo #10832937
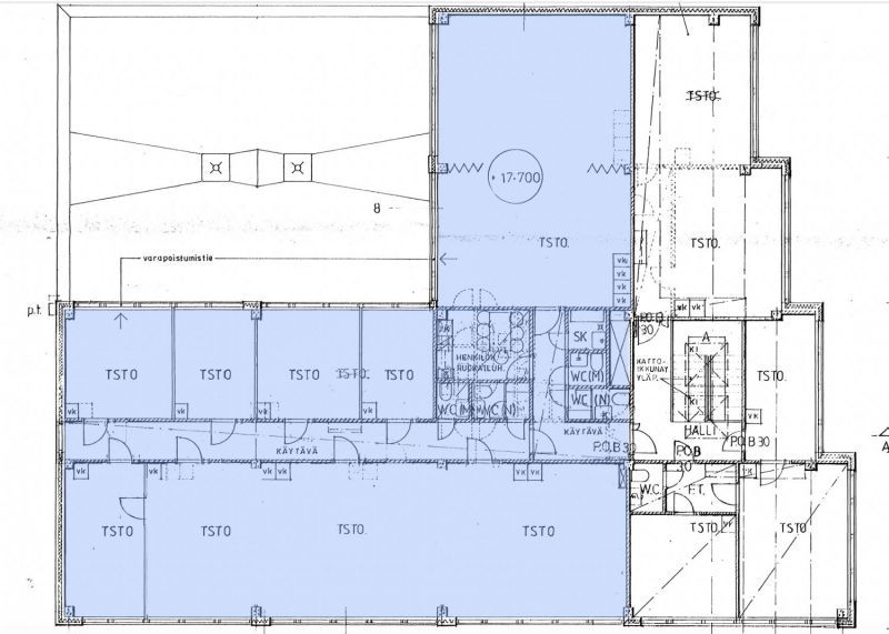
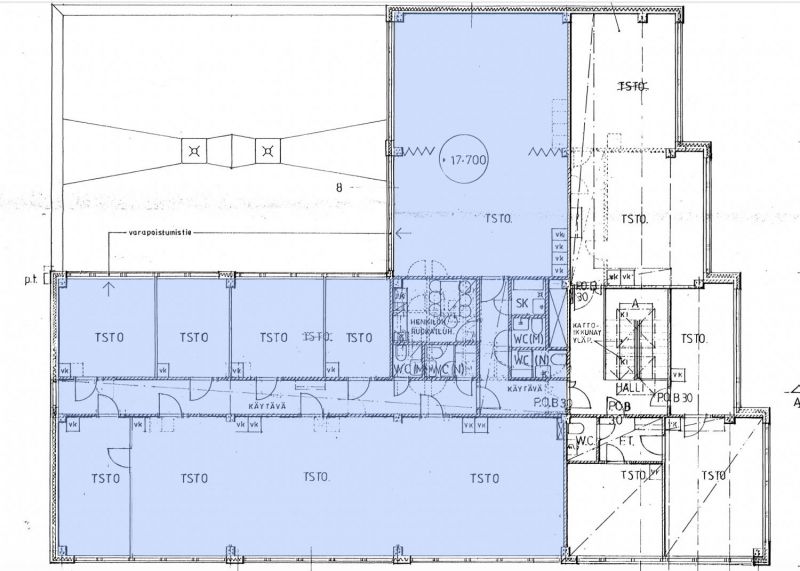
Monimuotoinen 3. kerroksen 274 m² toimitila Mankkaalla
Osoite
Sinikalliontie 4, 02630 Espoo
Tilatyyppi
Toimistotilaa
274 m2
Pohjapiirros
Tila soveltuu
Koulutus
Kiinteistö
Kolmannen kerroksen toimitila jossa isompia ja pienempiä huoneita, keittiö ja wc-tilat.
Tila voisi sopia erinomaisesti esim. joogastudiona tai pilatesstudiona.
Talossa ei ole hissiä.
Kiinteistö on pienempi toimisto- ja pienteollisuusrakennus, joka sijaitsee ihan K-Supermarket Mankkaata vastapäätä.
Tila voisi sopia erinomaisesti esim. joogastudiona tai pilatesstudiona.
Talossa ei ole hissiä.
Kiinteistö on pienempi toimisto- ja pienteollisuusrakennus, joka sijaitsee ihan K-Supermarket Mankkaata vastapäätä.
Pysäköinti
Autopaikkoja pihalla ja lämpimässä autohallissa.
Muuta
Kiinteistöön rakennettu aurinkosähköjärjestelmä vuonna 2017.
Vapautuu
Heti
Rakennusvuosi
1984
Saneerausvuosi
2012
Kerros
3 / 3
Energiatehokkuusluokka
Ei lain edellyttämää energiatodistusta
Näkyvällä paikalla
Ota yhteyttä
ScanReal Oy LKV
Opus Business Park
Hitsaajankatu 24
00810 Helsinki
info@scanreal.fi
Puh:
Näytä puhelinnumero
020 730 8830
Sopivat toimitilat yhdellä otolla!
Kartoitamme toimitilatarpeesi ja etsimme yrityksellesi parhaiten sopivat vapaat toimitilat. Koska vuokranantajat maksavat palvelumme, on tämä yrityksellesi veloituksetonta.
OTA YHTEYTTÄ - SOVI NÄYTTÖ!
Kaikki kohteemme eivät ole netissä, kerro tilatarpeesi niin kartoitamme vaihtoehdot.
Palvelumme on tilanhakijalle ilmainen
Pyydä lisätietoa
