Vuokrataan toimistotilat - Helsinki
Mannerheimintie 15 B, Töölö, 00260 Helsinki #10832923
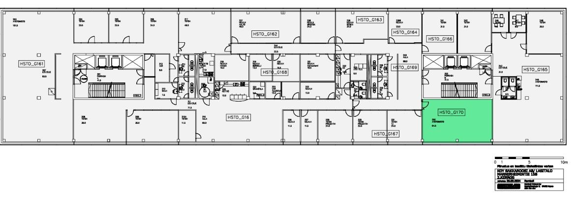
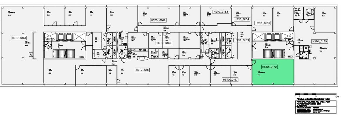
Upealla sijainnilla keskustan kupeessa, puistomaisessa miljöössä Töölönlahden rannalla toimistotilaa. Toimistohuone sijaitsee lasitalossa ja siihen kuuluu yhteiskäyttöiset keittiö- ja wc-tilat. Ohessa kuvia kiinteistön tiloista. Lähialueella paljon lounaspaikkoja ja hyvät liikenneyhteydet.
Lisätiedot ja kohde-esittelyt 020 7290 710, lisää kohteita premises.fi
Kohteella ei ole lain edellyttämää energiatodistusta tai energialuokka ei tiedossa.Kerros: 2
Osoite
Mannerheimintie 15 B, 00260 Helsinki
Tilatyyppi
Toimistotilaa
65,5 m2
Ota yhteyttä
CRE PREMISES
Puh. Näytä puhelinnumero 020 7290 710
Vantaankoskentie 14
01670 VANTAA
Pyydä lisätietoa
