Vuokrataan toimistotilat - Helsinki
Tammasaarenlaituri 3, Salmisaari, 00180 Helsinki #10832913
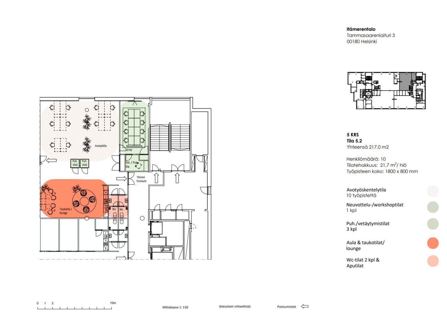
Viidennen kerroksen avotoimisto yhdellä isolla neuvotteluhuoneella B-rapussa.
Itämerentalo sijaitsee merellisessä ympäristössä huippupaikalla Ruoholahdessa, aivan Lauttasaarensillan vieressä. Rakennus on saneerattu vuonna 2002 ja se vastaa olosuhteiltaan hyvin tämän päivän toimistotyön tarpeita. Talon käyttäjiä palvelee mm. aulavastaanotto, kokouskeskus ja lounasravintola. Lisäksi kauppakeskus Ruoholahden palvelut ovat kävelymatkan päässä. Rakennuksessa on hissi, kaukolämpö ja jäähdytetty ilmavaihto.
Lisätietoja numerosta 020 7290 710. Lisää kohteita osoitteessa www.premises.fi.
Kohteella ei ole lain edellyttämää energiatodistusta tai energialuokka ei tiedossa.Kerros: 5
CRE PREMISES
Puh. Näytä puhelinnumero 020 7290 710
Vantaankoskentie 14
01670 VANTAA
