Vuokrataan liiketilat, varastotilat - Lahti
Vieterikatu 2, 15700 Lahti #10832907
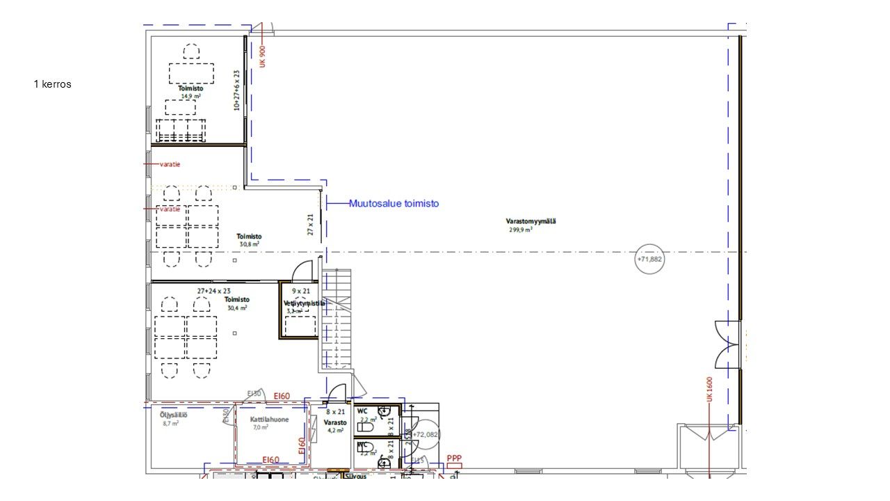
Lahden Jokimaan alueella on vapautumassa sopimuksen mukaan erittäin siistiä liiketilaa (myymälä 300 m2, toimistot 148 m2). Liiketilan ensimmäisessä kerroksessa on myymälätilan lisäksi 3 toimistoa ja näiden päällä on parvi jossa on avotilaa ja pientä toimistoa.
Myymälätilan päädyssä on kaksi nosto-ovellista varastoa, joista toinen on nyt vuokrattu ja toinen vapautuu sopimuksen mukaan.
Lisätiedot ja esittelyt kohteesta 0400 891 057/0207290710
lisää kohteita www.premises.fiKerros: 1
Osoite
Vieterikatu 2, 15700 Lahti
Tilatyyppi
Liiketilaa
448 m2
Varastotilaa
448 m2
Yhteensä
448 m2
Kulkuyhteydet
Lahden keskustaan 7 km, Renkomäen kauppakeskuksiin 3 km
Ota yhteyttä
CRE PREMISES
Puh. Näytä puhelinnumero 020 7290 710
Vantaankoskentie 14
01670 VANTAA
Pyydä lisätietoa
