Vuokrataan toimistotilat - Espoo
Lars Sonckin kaari 10-16, Leppävaara, 02600 Espoo #10832897
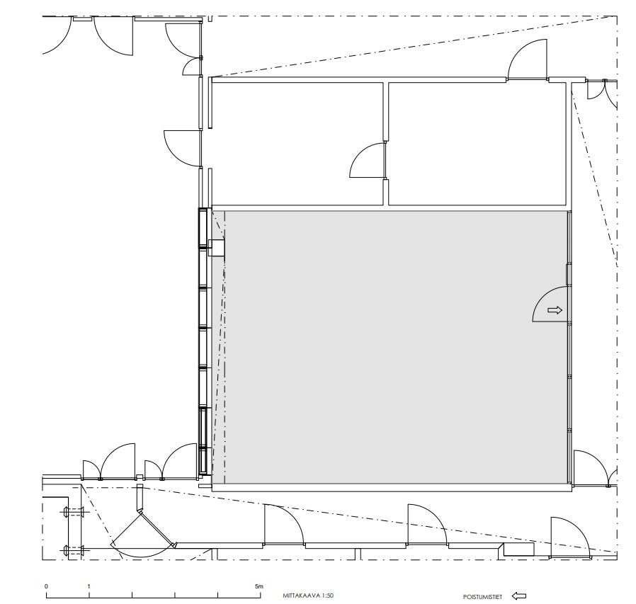
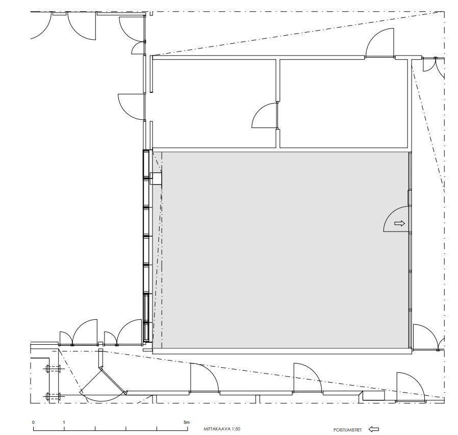
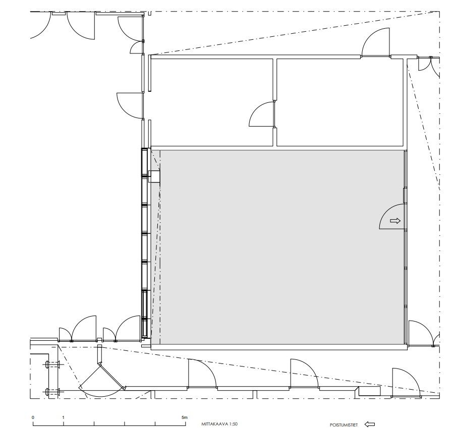
Vuokrattavana kompakti ja viihtyisä avotoimistotila kiinteistön ensimmäisestä kerroksesta.
Stellasta löytyvät mm. aulapalvelu, vuokrattavia neuvottelutiloja, auditorio, kaksi lounasravintolaa, kampaamo, kuntosali, saunaosasto, varatotilaa, autopesula sekä pihalla lastaustila. Ohessa havainnollistavia kuvia Stellan tiloista.
Stella Business Parkin toimitilat ovat helposti muunneltavissa, yrityksesi tarpeisiin sopiviksi. Stellassa tilat muuttuvat joustavasti yrityksesi elinkaaren mukaan. Tämän mahdollistaa esimerkiksi väliseinien helppo siirreltävyys.
Lisätiedot 020 7290 710 ja lisää kohteita premises.fi
Kohteella ei ole lain edellyttämää energiatodistusta tai energialuokka ei tiedossa.Kerros: 1
CRE PREMISES
Puh. Näytä puhelinnumero 020 7290 710
Vantaankoskentie 14
01670 VANTAA
